Chain-free three-bedroom detached house with double garages and workshop, ideal for refurbishment..
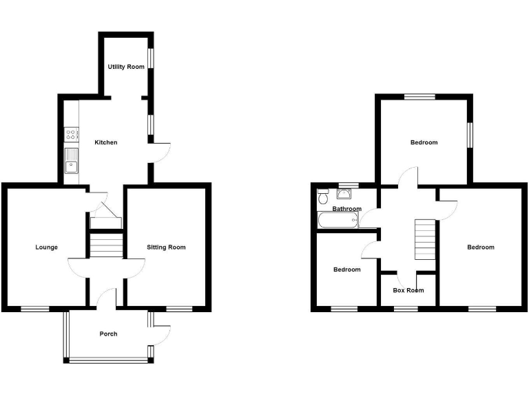
Three bedrooms plus small box room, useful nursery or study
Two reception rooms with period features and good natural light
Large plot with enclosed rear garden and scenic views
Double garages and substantial outbuilding/workshop (potential stpp)
Chain free — available with no upper chain
Requires refurbishment throughout; sold as a renovation project
Mixed heating: air source heat pump, electric radiators, oil boiler remains
Energy performance mixed (EER 40E ground, 70C upper)
A detached three-bedroom family home with generous reception space, double garages and a large workshop set on a substantial plot. The property offers character features—ornamental fireplace, picture rails and a traditional porch—plus an enclosed rear garden with far-reaching views. It is offered chain free, making it suitable for buyers wanting a quicker move.
The house requires updating throughout and would suit someone prepared to refurbish; the interior is a blank canvas with good natural light and solid period bones. Heating is electric with an air-source heat pump and there is an oil boiler in the utility; the energy performance rating is mixed (40E / 70C) and the box room lacks heating and modern glazing.
Practical assets include a shared driveway to rear double garages, potential extended parking (subject to planning), and a large outbuilding/workshop with scope for conversion (stpp). The village location provides basic amenities and easy access to scenic walking and cycling in the nearby Brecon Beacons, appealing to families and outdoor enthusiasts.
3 bedroom detached house for sale in Llandeilo Road, Upper Brynamman, Ammanford, Carmarthenshire., SA18 — £185,000 • 3 bed • 1 bath • 1292 ft²
3 bedroom semi-detached house for sale in Glyn Road, Lower Brynamman, Ammanford, SA18 1SR, SA18 — £189,950 • 3 bed • 1 bath • 1370 ft²
5 bedroom detached house for sale in Pantydwr, Llandeilo Road, Upper Brynamman, Ammanford, SA18 — £350,000 • 5 bed • 3 bath • 2369 ft²
3 bedroom detached house for sale in Llwyn Y Bryn, Ammanford, SA18 — £225,000 • 3 bed • 1 bath • 1281 ft²
3 bedroom detached house for sale in Bryn Bach Road, Upper Brynamman, Ammanford, Carmarthenshire, SA18 — £250,000 • 3 bed • 2 bath • 1185 ft²
3 bedroom semi-detached house for sale in Barry Road, Lower Brynamman, Ammanford, SA18 — £199,950 • 3 bed • 1 bath • 1065 ft²






















































