**Standout Features:**
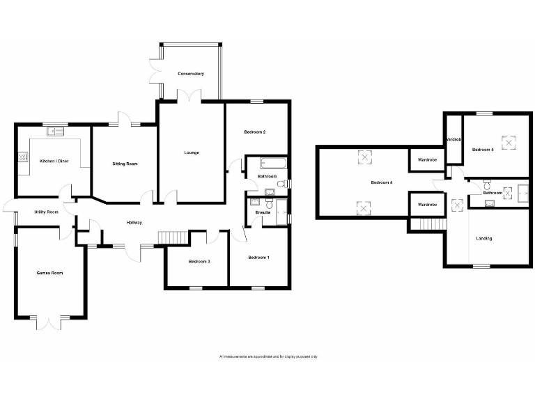
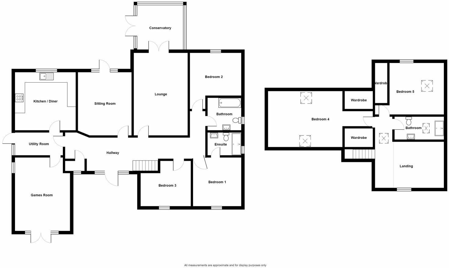
- Detached 5-bedroom, 3-bathroom house, ideal for families or potential rental
- Versatile former garage, currently a games room, with various use options (subject to planning permission)
- Attractive conservatory providing additional living space
- Generous garden space with an open aspect to the rear
- Located in a peaceful cul-de-sac near the Brecon Beacons National Park
- Ample off-street parking available
**Concise Summary:**
Discover this deceptively spacious, detached 5-bedroom bungalow located on a serene cul-de-sac just off Llandeilo Road in Brynamman, walking distance from the stunning Brecon Beacons National Park. With three well-appointed bathrooms, this property offers a wealth of versatile accommodation perfect for family living or as a potential investment. The former garage, currently a games room, holds exciting renovation possibilities for additional living or recreational spaces (subject to planning permission).
While this home does require some cosmetic upgrades, it boasts a charming conservatory and a generous garden with an inviting open rear aspect—a blank canvas for outdoor enthusiasts. Benefit from the tranquility and low crime rates of rural village life, making this an excellent family-friendly environment. Don't miss out on this unique opportunity to create your dream home in a picturesque location; schedule your internal viewing today!
5 bedroom detached bungalow for sale in Llwyn Y Bryn, Ammanford, SA18 — £389,950 • 5 bed • 3 bath • 1838 ft²
3 bedroom detached house for sale in Llandeilo Road, Upper Brynamman, Ammanford, Carmarthenshire., SA18 — £185,000 • 3 bed • 1 bath • 1292 ft²
4 bedroom detached bungalow for sale in Aberlash Road, Ammanford, SA18 — £385,000 • 4 bed • 2 bath • 1597 ft²
3 bedroom detached house for sale in Llwyn Y Bryn, Ammanford, SA18 — £225,000 • 3 bed • 1 bath • 1281 ft²
5 bedroom detached bungalow for sale in Abercrave, Swansea, SA9 — £494,950 • 5 bed • 1 bath • 2932 ft²
4 bedroom detached house for sale in New Road, Gwaun Cae Gurwen, Ammanford, SA18 — £310,000 • 4 bed • 3 bath • 837 ft²






















































































