Spacious four-bedroom village house with large garden and separate workspace.
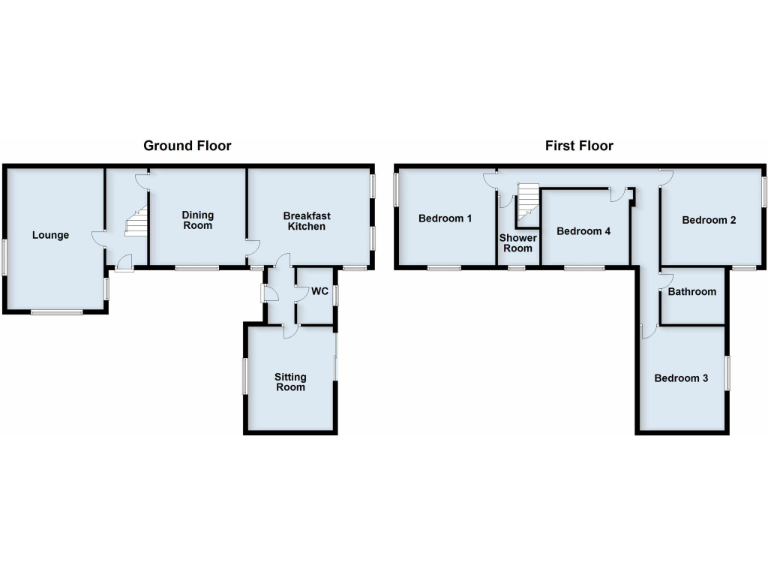
Four good double bedrooms across the first floor
Three reception rooms, including garden‑facing sitting room
Generous, well maintained rear garden with paved patio
Garage plus separate office/workshop with power connected
Ample off‑street parking behind gated access and hard standing
EPC rated F; expect lower energy efficiency and higher running costs
Council tax band F — higher annual local tax payable
Services/boiler not inspected; buyers should verify condition and compliance
A spacious, characterful detached cottage set on a generous plot in quiet North Frodingham. The house offers flexible family living across three reception rooms and four double bedrooms, ideal for daily life and occasional entertaining. The large, well‑maintained rear garden and separate office/workshop add valuable outdoor and workspace versatility.
Built in traditional brick with many original features, the accommodation includes a sizable lounge with multi‑aspect windows, a breakfast kitchen and a sitting room opening onto the garden. There is scope to extend or reconfigure (subject to consents) given the plot size and L-shaped layout.
Practical notes are factual: the property currently has an EPC rating of F and sits in council tax band F, so heating efficiency and running costs should be considered. Double glazing is fitted to most windows and gas central heating serves radiators, but the services and boiler have not been checked. The former double garage has been subdivided to provide a garage plus an external office/workshop.
This home will suit families seeking village life with good primary schools nearby, or buyers wanting a roomy, character property that offers potential for improvement. Serious buyers should factor in upgrade costs and confirm services and planning history before committing.
4 bedroom detached house for sale in 6 Foston Lane, North Frodingham, Driffield, YO25 8JZ, YO25 — £390,000 • 4 bed • 2 bath • 1873 ft²
4 bedroom semi-detached house for sale in Foston Lane, North Frodingham, YO25 8JZ, YO25 — £485,000 • 4 bed • 3 bath • 3519 ft²
3 bedroom link detached house for sale in Cross Lane, North Frodingham , YO25 — £375,000 • 3 bed • 1 bath • 371 ft²
4 bedroom detached house for sale in Foston Lane, North Frodingham YO25 8JZ, YO25 — £400,000 • 4 bed • 2 bath • 1999 ft²
4 bedroom semi-detached house for sale in Cross Lane, North Frodingham, YO25 — £235,000 • 4 bed • 1 bath • 1044 ft²
3 bedroom semi-detached house for sale in 5 Eastfield Close, North Frodingham, Driffield, YO25 8ND, YO25 — £210,000 • 3 bed • 1 bath • 906 ft²


















































































