**Standout Features:**
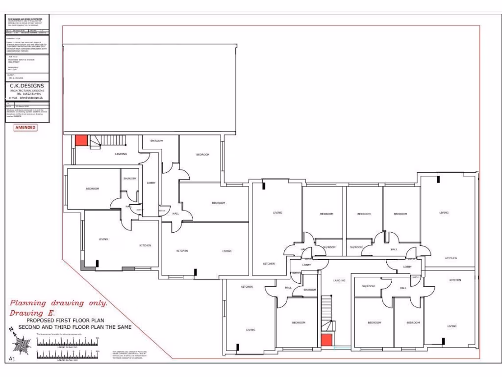
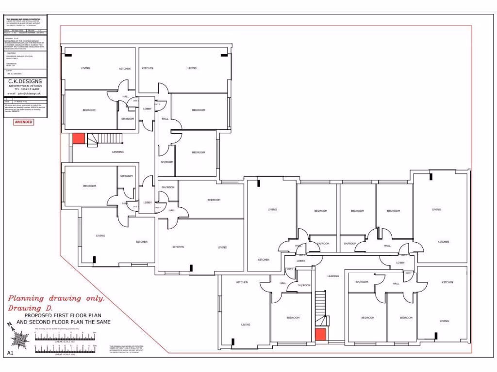
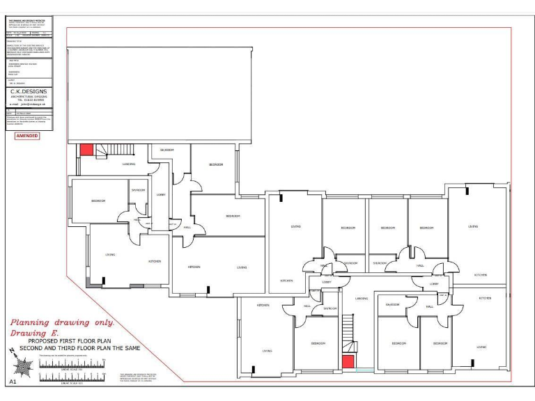
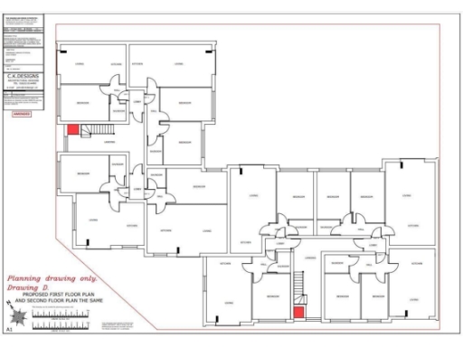
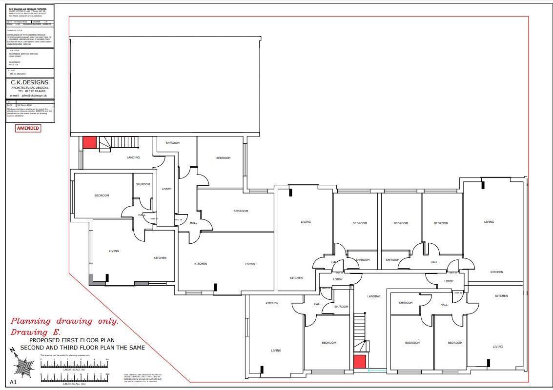
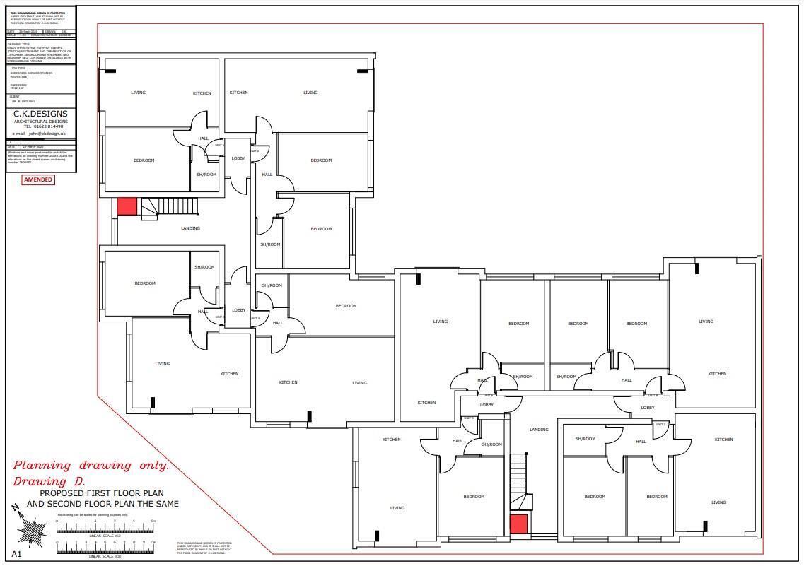
- Outline planning permission for 22 residential units: 13 one-bedroom and 9 two-bedroom flats
- Large development site located in the heart of Sheerness
- Potential for alternative uses, subject to planning
- Freehold sale includes existing commercial business
- Central position with excellent access to local amenities
- Proposed underground parking addition
**Considerations:**
- Local area shows signs of high crime and deprivation
- Schools nearby have mixed Ofsted ratings, with some requiring improvement
Discover a lucrative investment opportunity at 240-248 High Street, Sheerness, offering outline planning permission for the construction of 22 modern flats, including 13 one-bedroom and 9 two-bedroom layouts. This sizeable freehold development site is situated in a prime location, surrounded by a vibrant mix of local amenities, making it an attractive prospect for potential residents.
While the area does face challenges such as higher crime rates and pockets of deprivation, the development is well-positioned to meet the growing demand for housing. With the added bonus of existing commercial space included in the sale, this property represents a versatile investment with the potential for further development down the line. Those seeking a transformative project will find this opportunity irresistible, but interested parties should act swiftly, as projects with this potential don’t last long in today’s market.
Plot for sale in London Road, Sittingbourne, Kent, ME10 1NA, ME10 — £250,000 • 3 bed • 2 bath
Commercial property for sale in Sittingbourne, Kent, ME10 — £900,000 • 1 bed • 1 bath • 808 ft²
Land for sale in High Street / Rhode Street, Chatham,, ME4 — £3,000,000 • 1 bed • 1 bath • 1400 ft²
Residential development for sale in Old Road, Chatham, Kent, ME4 — £320,000 • 1 bed • 1 bath • 1140 ft²
Land for sale in West Road, Westcliff-on-sea, SS0 — £900,000 • 1 bed • 1 bath • 12500 ft²
Property for sale in London Road, Southend-On-Sea, SS1 — £1,050,000 • 1 bed • 1 bath






















































































