### Standout Features:
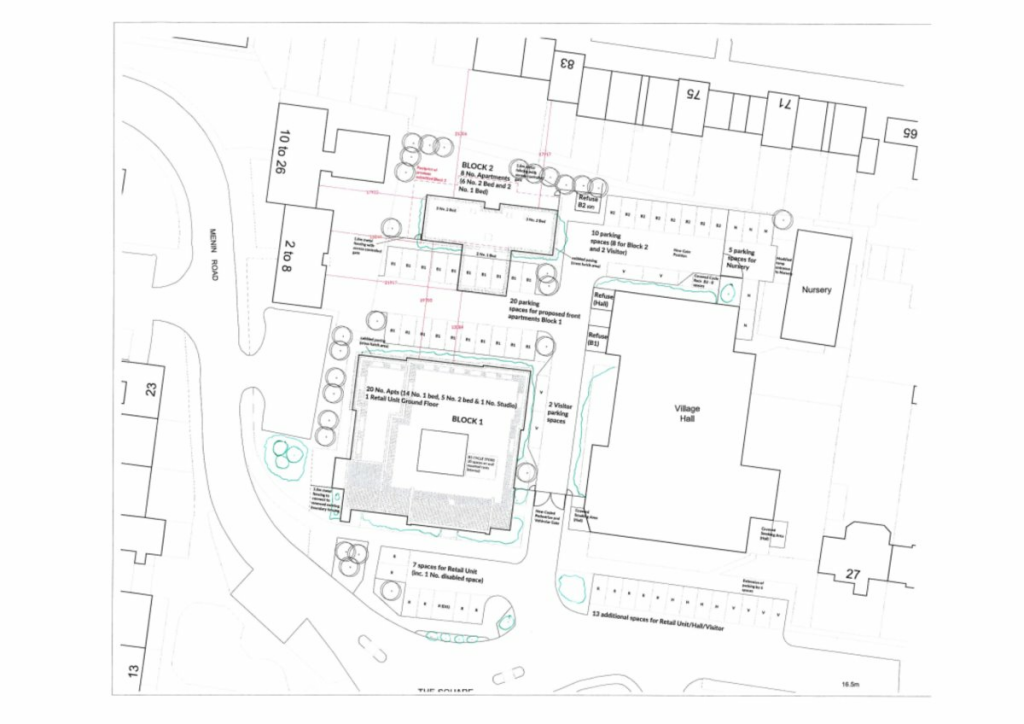
- **Planning Permission Approved**: Full approval for 28 residential units and ground-floor retail space.
- **Prime Location**: Nestled in a popular residential area, just 2 miles to the mainline train station and close to major roads (1 mile to A249, 6 miles to M2, and 12.5 miles to M20).
- **Strong Rental Potential**: Positioned in a desirable rental area with good capital appreciation prospects.
- **Off-Street Parking & Communal Areas**: The development includes designated parking and landscaped areas for residents.
### Summary:
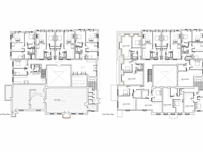
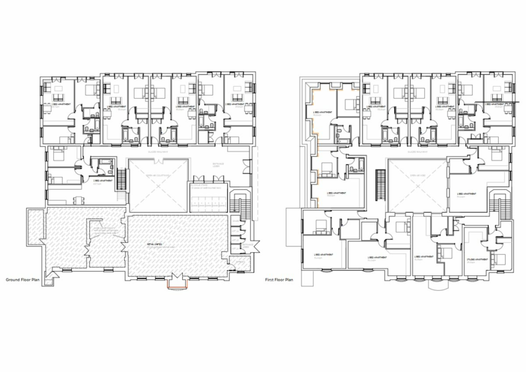
Seize a rare development opportunity in the thriving ME10 2SL postcode! This spacious property, formerly a public house, comes with full planning permission for a mixed-use project featuring 28 modern residential units, including 5 two-bedroom apartments, 14 one-bedroom units, and a studio, alongside a retail space leased to a major supermarket chain. The plot offers off-street parking and beautifully landscaped communal areas, catering to families and professionals alike.
Set within a multi-ethnic community and surrounded by reputable schools, this property promises to be a haven for potential tenants. With excellent transport links, low crime rates, and amenities nearby, it appeals to both investors seeking strong rental yield and future capital appreciation. However, it's essential to note the building's existing condition—with double glazing installed pre-2002 and cavity walls lacking insulation—which may require attention during the development phase. Don't miss this unique chance to transform a promising site into a desirable residential hub. Contact us today to learn more about this investment opportunity!
Commercial property for sale in Sittingbourne, ME10 — £400,000 • 1 bed • 1 bath
Land for sale in East Street, Sittingbourne, Kent, ME10 4RT, ME10 — £400,000 • 1 bed • 1 bath • 2088 ft²
Land for sale in Kemsley Arms, Kemsley, Sittingbourne, Kent, ME10 2SL, ME10 — £900,000 • 1 bed • 1 bath • 1000 ft²
Land for sale in Frindsbury Road, Rochester, Kent, ME2 — £400,000 • 1 bed • 1 bath
Commercial development for sale in Residential Development Opportunity, M Mid Kent, Maidstone, ME16 — £1,220,000 • 1 bed • 1 bath • 3218 ft²
Plot for sale in London Road, Sittingbourne, Kent, ME10 1NA, ME10 — £250,000 • 3 bed • 2 bath


















































