Large 3.2‑acre self‑build plot with full permission for a 5‑bed family home..
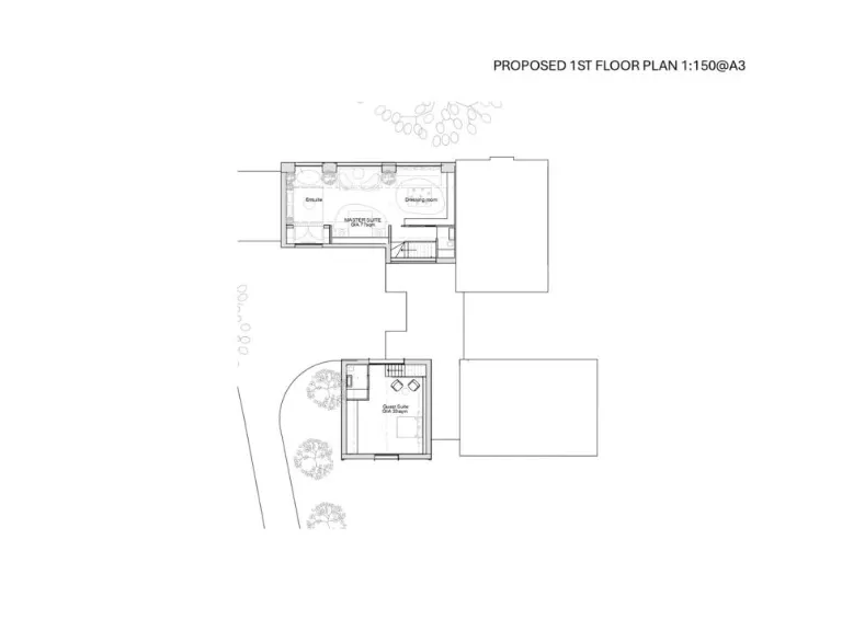
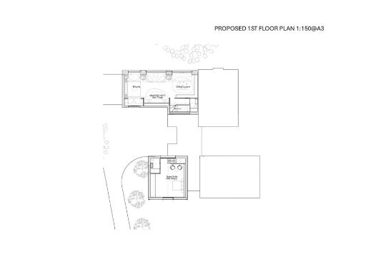
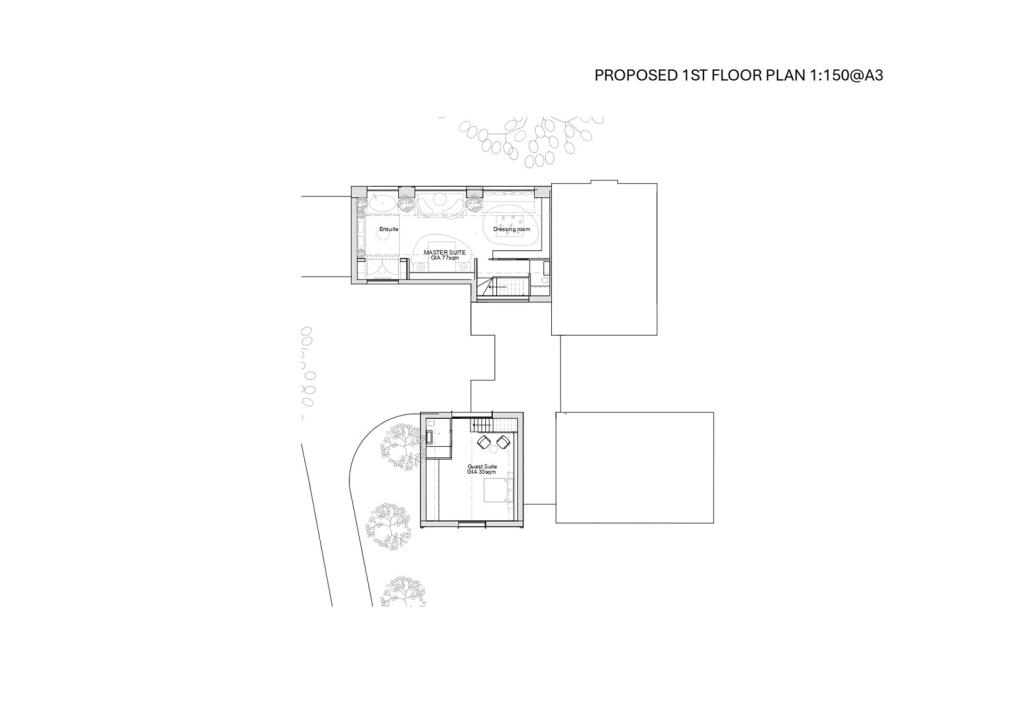
Full planning permission for a five‑bedroom house (ref: SDNP/24/02818/FUL)
Approximately 3.2 acres with extensive rural and woodland views
Substantial 4,307 sq ft footprint; design focuses on family living and entertaining
Potential annexe possible subject to separate planning permission
CGI images for guidance only — final build may differ
Very slow broadband and average mobile signal; consider service upgrades
Freehold tenure; no reported flooding risk
Nearest town Petersfield under four miles, good schools nearby
Set on about 3.2 acres in the South Downs National Park, this substantial self-build plot benefits from full planning permission (ref: SDNP/24/02818/FUL) for a 4,307 sq ft, five‑bedroom family home. The approved design emphasises generous reception spaces, glazed links and courtyard arrangements to maximise the far-reaching rural views and natural light. CGI images are provided for guidance only.
This site will be a single dwelling within a sought-after parish close to Petersfield, local schools and countryside amenities. There is potential for an annexe subject to separate planning consent, and local architects with site knowledge can assist further. The plot offers strong privacy and scope for landscaping, outbuildings or equestrian use (subject to consents).
Practical considerations include very slow broadband and average mobile signal; purchasers should factor utility connections and any landscaping or access works into budgets. The land is freehold and reported to have no flooding risk, but buyers should rely on their own due diligence regarding services, planning conditions and build costs.
Detached house for sale in Site South of Wilsom Farmhouse, 60 Wilsom Road, Alton, Hampshire, GU34 — £400,000 • 1 bed • 1 bath
Detached house for sale in Northern Plot North Of Wilsom Farmhouse, 60 Wilsom Road, Alton, Hampshire, GU34 — £375,000 • 1 bed • 1 bath
Plot for sale in Willow Drive, Soberton, Southampton, Hampshire, SO32 — £450,000 • 1 bed • 1 bath • 3750 ft²
Plot for sale in Howards Lane, Holybourne, Alton, Hampshire, GU34 — £600,000 • 1 bed • 1 bath • 3000 ft²
Land for sale in 33 Aveley Lane, Lower Bourne, Farnham, GU9 — £500,000 • 4 bed • 3 bath • 2778 ft²
Plot for sale in Arford Common, GU35 — £275,000 • 1 bed • 1 bath


























































