Quiet, well-presented home with garage and excellent commuter links.
Three bedrooms, cosy footprint — approx 732 sq ft
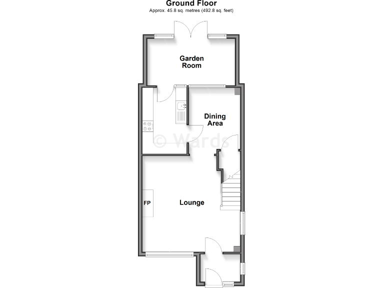
Light and practical, this three-bedroom semi-detached home sits at the end of a quiet cul-de-sac in Maidstone. Neutral decor and well-presented rooms create a ready-to-live-in feel, with a garden room at the rear that extends entertaining and family space. The plot and overall footprint are modest (approximately 732 sq ft) so rooms feel cosy rather than expansive.
Parking is a strong practical advantage: a garage, car port and side driveway mean easy off-street parking for families and commuters. Commuter links are excellent with the M20 and Maidstone East station close by, while local schools — including two rated Outstanding and several Good primary and secondary options — make this neighbourhood attractive to families.
Built in the mid-20th century with filled cavity walls and double glazing, the house is freehold and heated by a mains gas boiler and radiators. The exterior shows mid-century styling and may benefit from cosmetic updating; interior presentation is neutral and move-in ready. Broadband speeds are average and the property sits in a very low-crime, very affluent area. Note there is a single bathroom which could be restrictive for larger families or buyers wanting more ensuite options.
3 bedroom link detached house for sale in Foxglove Rise, MAIDSTONE, Kent, ME14 — £475,000 • 3 bed • 1 bath • 741 ft²
3 bedroom semi-detached house for sale in Chipstead Close, Allington, Maidstone, Kent, ME16 — £350,000 • 3 bed • 1 bath • 706 ft²
3 bedroom detached house for sale in St. Catherine's Road, Maidstone, Kent, ME15 — £350,000 • 3 bed • 2 bath • 485 ft²
3 bedroom semi-detached house for sale in Roman Way, Maidstone, ME17 — £385,000 • 3 bed • 2 bath • 1337 ft²
3 bedroom end of terrace house for sale in Wainscott Walk, Wainscott, Rochester, Kent, ME2 — £325,000 • 3 bed • 1 bath • 754 ft²
3 bedroom semi-detached house for sale in Middlesex Road, Maidstone, Kent, ME15 — £325,000 • 3 bed • 1 bath • 690 ft²






























































