Three-bedroom semi with garden backing onto recreation grounds and strong school links..
- Backs onto recreational grounds, great for families and dogs
- Quiet cul-de-sac location with very low local crime
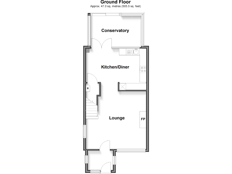
- Open-plan kitchen/diner plus conservatory extends living space
- Off-street driveway parking and garage space
- Freehold, built in 1970, approx 706 sq ft (small overall size)
- Single bathroom and compact bedroom sizes may limit families
- Requires cosmetic updating/refurbishment to modernise interiors
- Broadband average; mobile signal excellent
Tucked at the end of a quiet cul-de-sac in Allington, this three-bedroom semi-detached home backs directly onto recreational grounds — a clear draw for families and dog owners. The property offers a practical layout with an open-plan kitchen/diner, a light lounge and a conservatory that extends living space onto a small rear garden. Off-street parking and a driveway with garage space add everyday convenience.
Built in the 1970s and approximately 706 sq ft, the house benefits from double glazing and gas central heating but shows its age in parts. The interior is tidy and liveable but will suit buyers planning cosmetic updating or modest refurbishment rather than those seeking a turnkey modern home. The single bathroom and smaller bedroom sizes reflect the property’s compact overall footprint.
Location is a strong asset: very low local crime, easy access to the M20 and Mid Kent shopping, plus several well-rated primary and secondary schools within reach — including two rated Outstanding. Broadband is average and mobile signal is excellent, supporting remote working or family connectivity. Tenure is freehold and there is no flood risk recorded.
This house offers a cost-effective route into an affluent, settled suburb with scope to add value through targeted modernisation. It’s best suited to first-time buyers or young families who prioritise location, outside space and good schools, and who are comfortable investing in some updating to maximise the property’s potential.
3 bedroom semi-detached house for sale in Ash Grove, Maidstone, Kent, ME16 — £525,000 • 3 bed • 1 bath • 1249 ft²
3 bedroom detached house for sale in Beaver Road, Allington, Maidstone, Kent, ME16 — £435,000 • 3 bed • 2 bath • 905 ft²
4 bedroom detached house for sale in Lamberhurst Road, Maidstone, Kent, ME16 — £525,000 • 4 bed • 1 bath • 1400 ft²
2 bedroom semi-detached house for sale in Newbury Avenue, Maidstone, Kent, ME16 — £300,000 • 2 bed • 1 bath • 646 ft²
3 bedroom detached house for sale in Hawkwood, Maidstone, Kent, ME16 — £425,000 • 3 bed • 1 bath • 948 ft²
4 bedroom detached house for sale in Corben Close, Allington, Maidstone, Kent, ME16 — £550,000 • 4 bed • 2 bath • 1065 ft²






























































































