**Standout Features:**
- **Development Opportunity:** Planning permission for a major refurbishment and conversion.
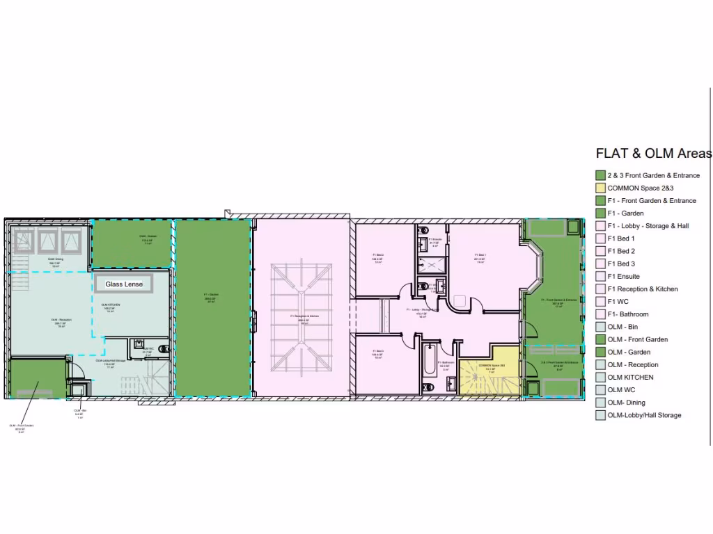
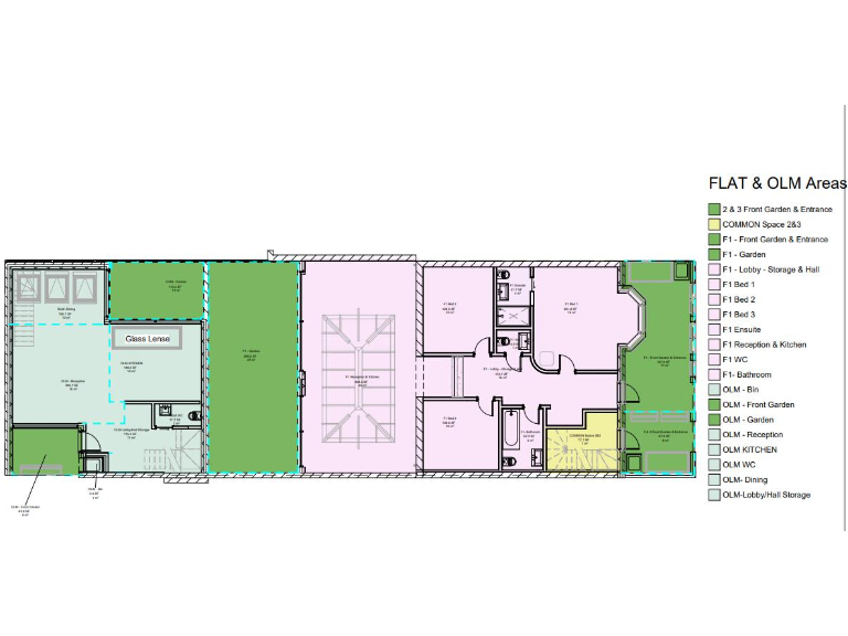
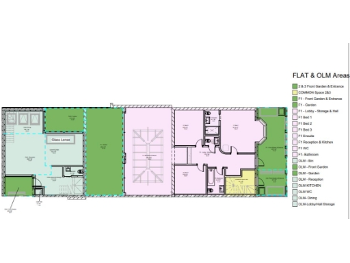
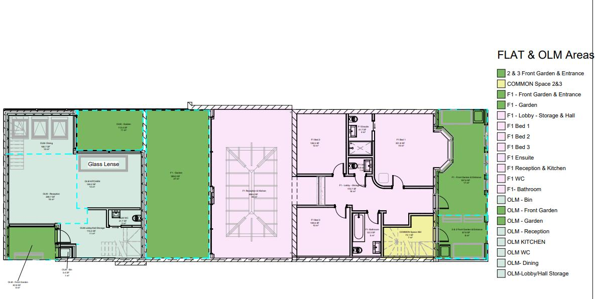
- **Current Layout:** Includes a three-bedroom garden flat, two-bedroom first-floor flat, and a two-bedroom top-floor flat.
- **Freehold Unit:** A separate unit at the rear with private entrance enhances rental potential.
- **Location:** Situated on a sought-after street in Chiswick, close to amenities and transport links.
- **Price:** Available at a competitive price of £2.5 million with a potential GDV of £4.5 million.
- **Chain Free:** Offers a smoother acquisition process.
**Summary:**
Seize the rare opportunity to develop a spacious terraced house on Devonshire Road, Chiswick. This unique property, currently featuring nine bedrooms and seven bathrooms, is primed for transformation with planning permission expected to be granted. The proposed layout includes three residential units, ideal for maximizing rental income in a vibrant, high-demand area.
While the property requires significant renovation, its prime location near Chiswick High Road ensures strong long-term growth potential in a cosmopolitan inner-city environment. Future residents will appreciate nearby amenities, schools, and swift transport links. With freehold tenure and no chain involved, this is an exceptional investment that invites architectural creativity and offers the promise of modern living in one of London’s coveted neighborhoods. Don’t miss out on this incredible chance to make your mark in Chiswick!
5 bedroom semi-detached house for sale in Homefield Road, London, W4 — £2,500,000 • 5 bed • 4 bath • 2496 ft²
4 bedroom terraced house for sale in Devonshire Road, London, W4 — £1,450,000 • 4 bed • 2 bath • 1354 ft²
Detached house for sale in Devonshire Road, London, W4., W4 — £1,700,000 • 1 bed • 1 bath • 6425 ft²
2 bedroom flat for sale in Lefroy Road, London, W12 — £625,000 • 2 bed • 1 bath • 1403 ft²
Residential development for sale in Lefroy Road, London, W12 — £625,000 • 1 bed • 1 bath • 1403 ft²
5 bedroom semi-detached house for sale in Devonshire Gardens, London, W4 — £2,000,000 • 5 bed • 3 bath • 2627 ft²










































