### Standout Features:
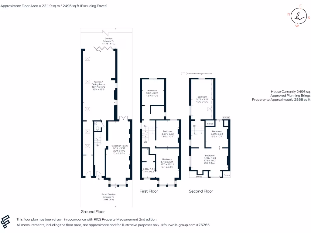
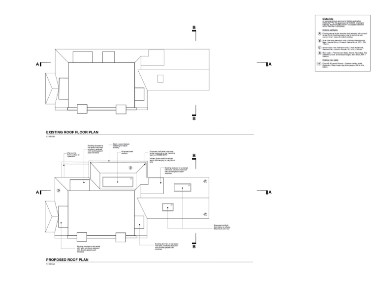
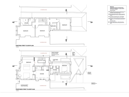
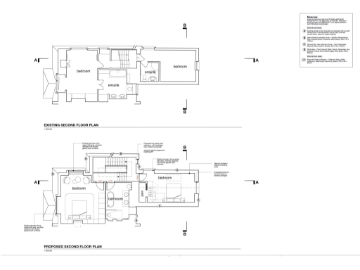
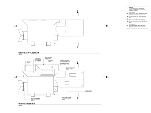
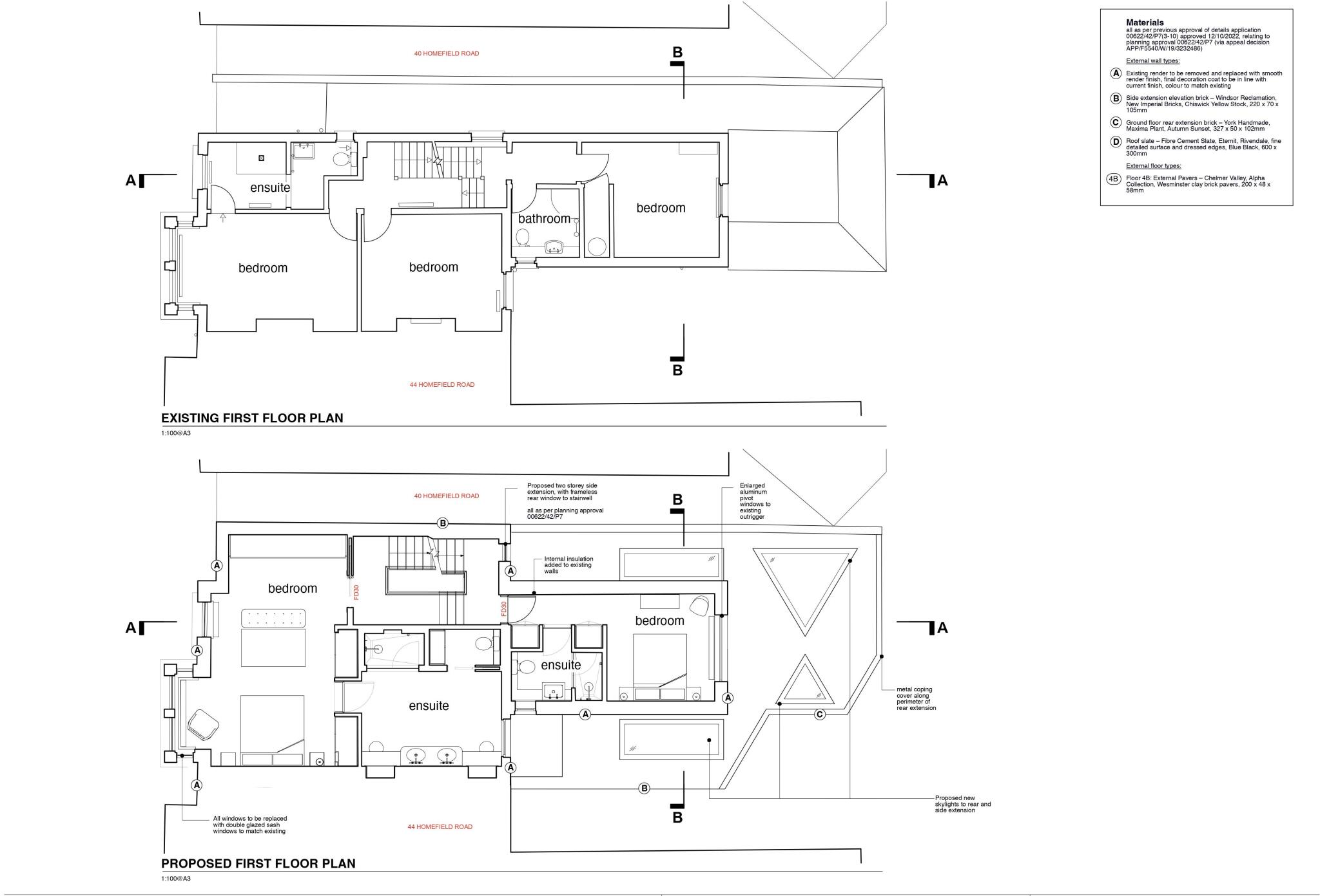
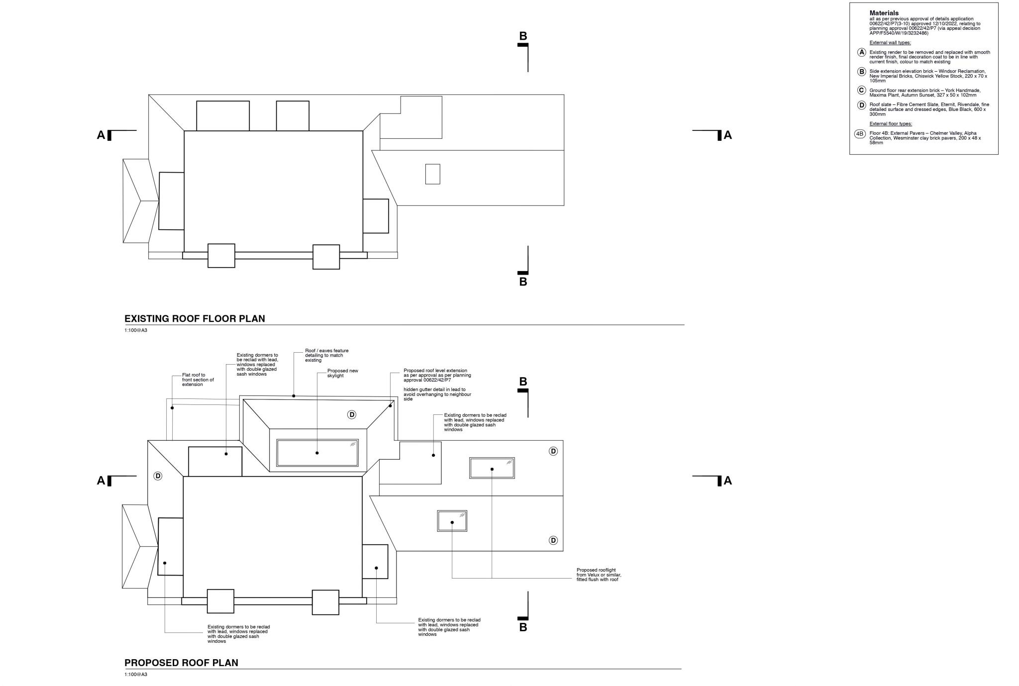
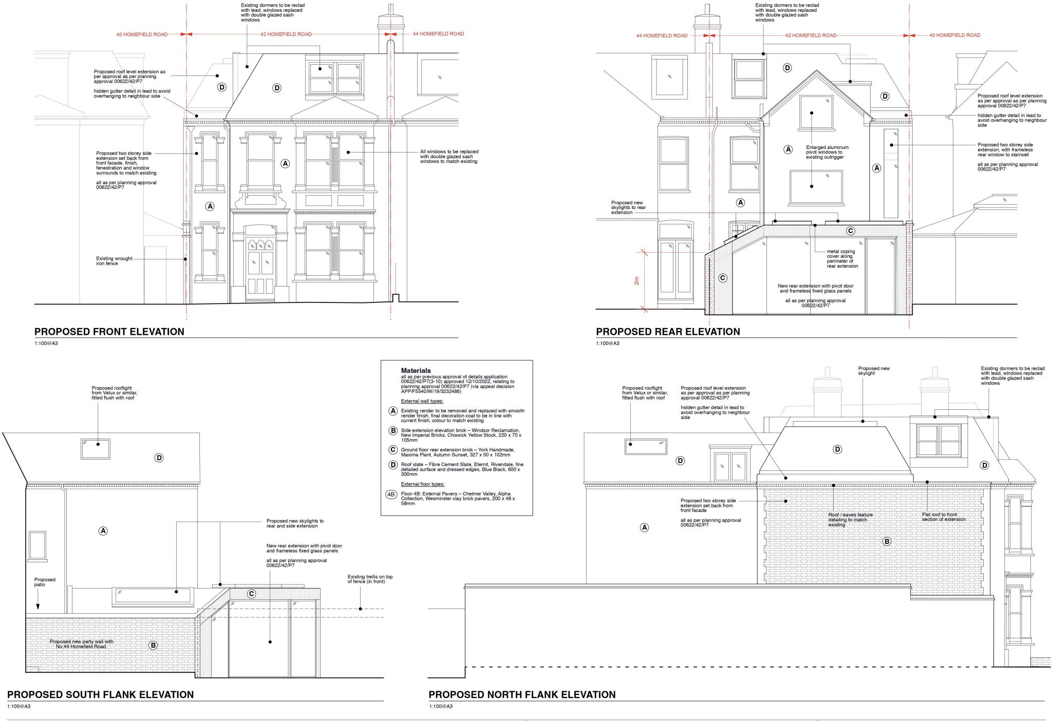
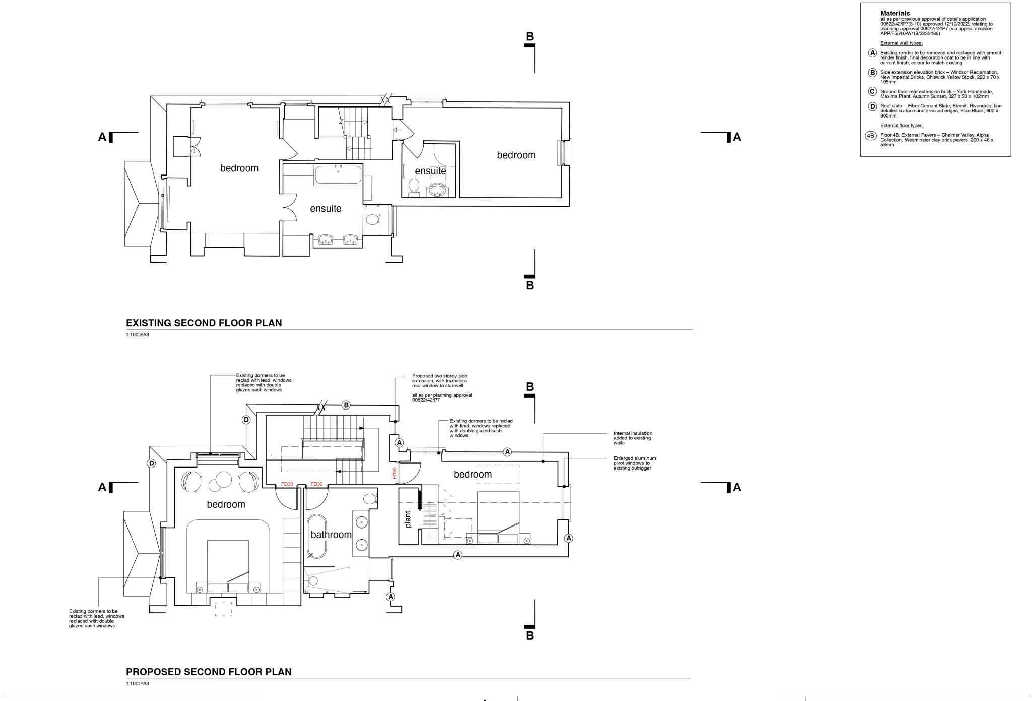
- **Size:** 5 bedrooms, currently 2,496 sq. ft with planning approved to expand to approximately 2,868 sq. ft.
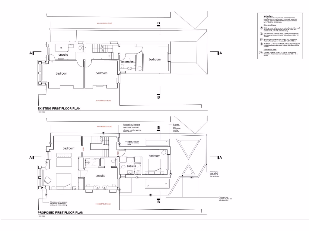
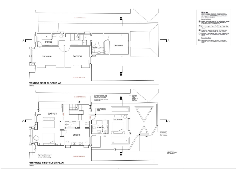
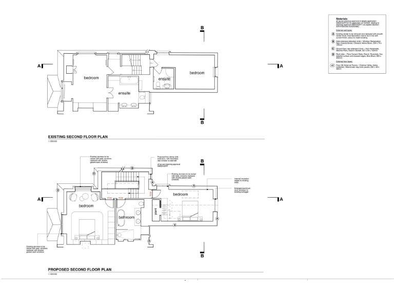
- **Development Opportunity:** Planning permission granted for two side extensions.
- **Garden:** 40 ft rear garden with a sunken seating area and potential for a summer house or home office.
- **Location:** Situated in a prime area of Chiswick, close to local amenities, schools, and transport links.
### Summary:
Discover a rare opportunity with this impressive five-bedroom semi-detached house on the highly desirable Homefield Road in Chiswick. The property boasts significant development potential, with approved planning for two extensions that will enhance the already generous living space from 2,496 to approximately 2,868 sq. ft. Ideal for families or investors, each room benefits from ample natural light and offers serene views overlooking gardens and the nearby Hogarth Tennis Club.
Enjoy the charm of a Victorian home combined with modern conveniences, including a spacious garden perfect for summer gatherings or creating a dedicated workspace. While the property is in good condition, plans for renovation can accommodate your personal touch over time. With excellent transport links nearby, including Stamford Brook tube station just 0.3 miles away, and an array of highly-rated schools in the vicinity, this home promises both comfort and convenience. Don’t miss out on this fantastic opportunity to shape your dream home in one of London’s most sought-after neighborhoods!
9 bedroom terraced house for sale in Devonshire Road, Chiswick, London, W4 — £2,500,000 • 9 bed • 7 bath • 453 ft²
4 bedroom semi-detached house for sale in Staveley Road, London, W4 — £1,595,000 • 4 bed • 3 bath • 2449 ft²
6 bedroom end of terrace house for sale in Mayfield Avenue, London, W4 — £1,995,000 • 6 bed • 3 bath • 2127 ft²
5 bedroom semi-detached house for sale in Bedford Road, Chiswick, W4 — £3,950,000 • 5 bed • 3 bath • 3167 ft²
3 bedroom semi-detached house for sale in Lawford Road, Chiswick, W4 — £1,150,000 • 3 bed • 1 bath • 1129 ft²
5 bedroom semi-detached house for sale in Thornton Avenue, Chiswick, London, W4 — £2,000,000 • 5 bed • 2 bath • 2000 ft²






































































