Build a low-energy bespoke home steps from Sandhead's sandy beach.
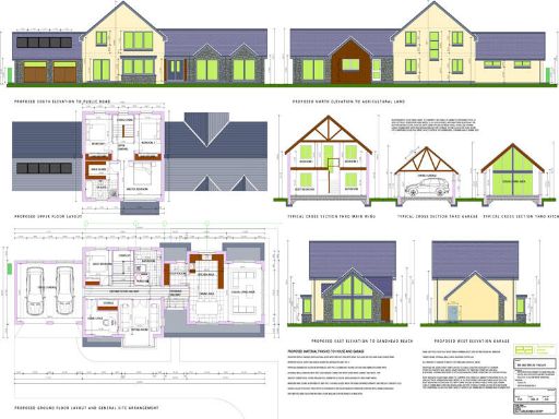
Full planning permission for bespoke four-bedroom two-storey house (ref 24/0104/FUL)
A rare coastal development opportunity with full planning permission (ref: 24/0104/FUL) to build a bespoke four-bedroom, two-storey house close to Sandhead’s sandy beach. The approved designs include living, dining, utility, office space and a detached double garage on a substantial 1.877-acre plot, offering privacy and uninterrupted coastal views.
The scheme is specified for modern, low-energy performance: on-roof high-efficiency solar panels and an air-source heat pump are integral to the design, lowering long-term running costs and supporting sustainable credentials. The site sits without immediate neighbours and provides direct access to coastal walking and local amenities in Sandhead and nearby Logan Botanic Garden.
Buyers should note material constraints: the existing Atcost agricultural building with brick walls must be demolished as part of the approved works, broadband speeds are slow, and mobile signal is only average. The wider area is classified as very deprived and remote, which may affect resale speed and local services, though commuting links are described as an easy drive to major routes.
This plot suits an investor or developer seeking a turnkey planning position for a high-spec coastal home, or a private buyer wanting to construct a low-energy, architect-designed house in a secluded seaside setting. Full drawings and conditions are available on Dumfries & Galloway planning portal under the stated reference.
Plot for sale in Plot 2 Auchenmalg, Auchenmalg, Glenluce, Newton Stewart, Dumfries and Galloway, DG8 — £115,000 • 1 bed • 1 bath
Plot for sale in Damknowe Development Site, Drummore, Stranraer, DG9 9HG, DG9 — £100,000 • 2 bed • 1 bath
Plot for sale in Kirkmaiden, Drummore, DG9 — £55,000 • 1 bed • 1 bath • 9264 ft²
Land for sale in St Ninian's Place, Portpatrick, DG9 — £60,000 • 1 bed • 1 bath
Plot for sale in Plot at Challoch & Allandoo, DG9 — £150,000 • 1 bed • 1 bath
Land for sale in Meikle Float Steading, Sandhead, DG9 9LF, DG9 — £250,000 • 1 bed • 1 bath






























