Spacious three-bed family home near Gillingham Park, ideal to modernise..
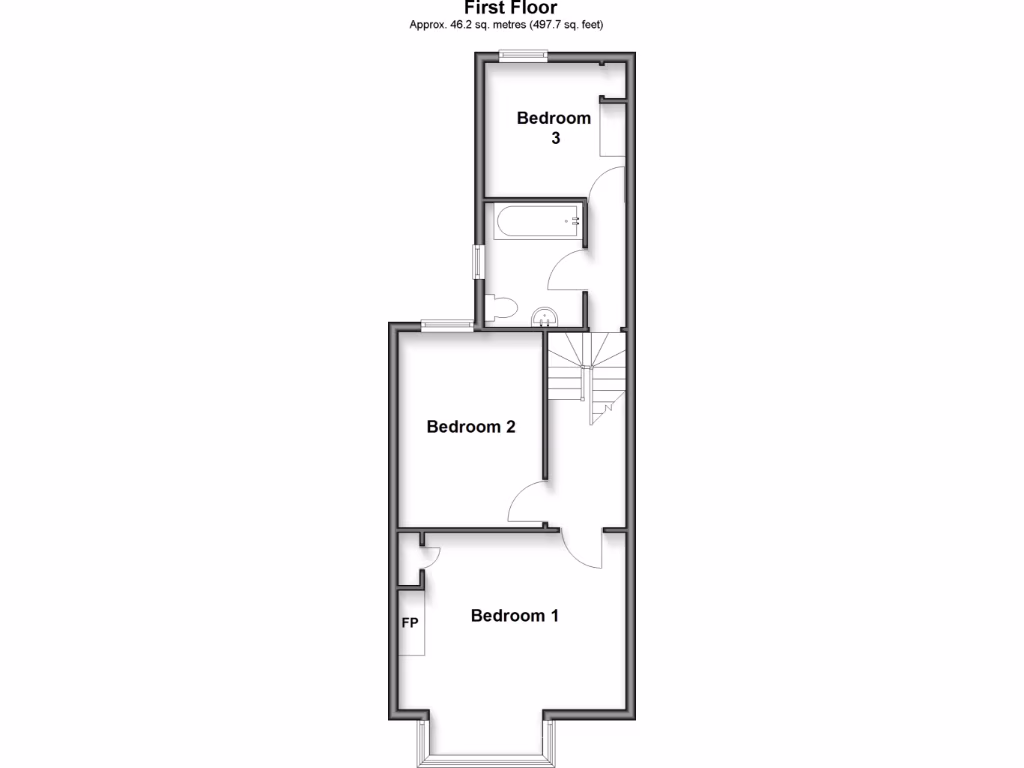
- Three-bedroom Edwardian mid-terrace with period bay window
- Three reception rooms plus separate kitchen and upstairs bathroom
- 1,023 sq ft overall; average-sized footprint with small garden
- Gas central heating and double glazing already fitted
- Solid brick walls likely without cavity insulation (assumed)
- Double glazing installed before 2002 may need upgrading
- High local crime and area deprivation may impact value
- On-street parking only; no off-street or garage space
A spacious Edwardian mid-terrace offering three bedrooms, three reception rooms and a rear garden, set a short walk from Gillingham Park. The house retains period character with a bay-fronted principal room and generous room proportions for its age, while a modern kitchen provides immediate everyday practicality.
This property suits first-time buyers seeking a family home or investors wanting a straightforward buy-to-let. The layout is traditional with separate bedrooms and an upstairs bathroom, and gas central heating plus double glazing are already installed. Room sizes and the 1,023 sq ft footprint give scope for flexible living and modest improvement works.
Buyers should be aware of material considerations: the building has solid brick walls likely without cavity insulation, the double glazing predates 2002, and the plot is small with on-street parking. The area records higher crime and local deprivation indicators, which may affect long-term resale values and tenant demand. All measurements, tenure and services should be independently verified.
3 bedroom terraced house for sale in Milburn Road, Gillingham, Kent, ME7 — £270,000 • 3 bed • 1 bath • 872 ft²
5 bedroom end of terrace house for sale in Gillingham Road, Gillingham, Kent, ME7 — £375,000 • 5 bed • 3 bath • 1382 ft²
3 bedroom terraced house for sale in Junction Road, Gillingham, Kent, ME7 — £280,000 • 3 bed • 2 bath • 1013 ft²
3 bedroom end of terrace house for sale in King Edward Road, Gillingham, Kent, ME7 — £260,000 • 3 bed • 1 bath • 648 ft²
3 bedroom terraced house for sale in Linden Road, Gillingham, Kent, ME7 — £300,000 • 3 bed • 1 bath • 1100 ft²
3 bedroom terraced house for sale in Milburn Road, Gillingham, Kent, ME7 — £178,500 • 3 bed • 1 bath • 872 ft²


































