Characterful starter home a short walk from station and High Street.
Three bedrooms with larger-than-average layout and breakfast/utility room
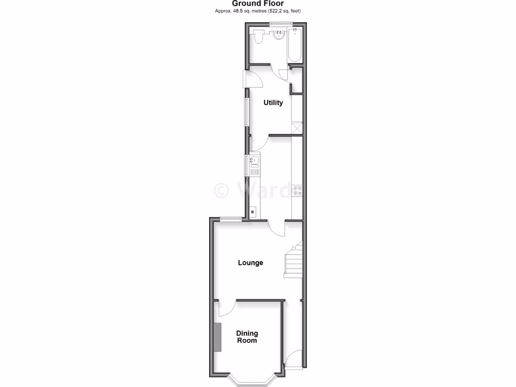
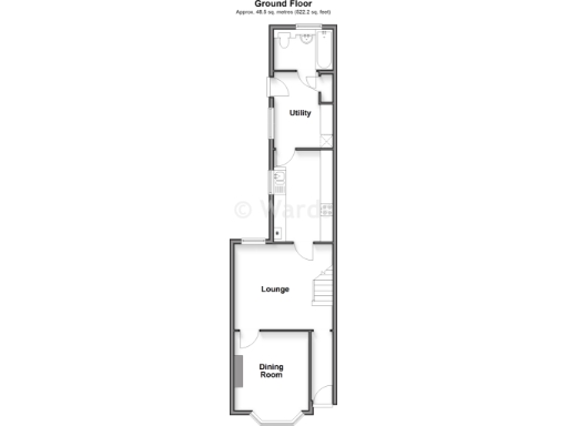
A larger-than-average Victorian mid-terrace, this three-bedroom home offers an accessible step onto the property ladder close to Gillingham High Street and the mainline station. The layout includes a bay-fronted dining room, separate lounge, modern kitchen and an additional breakfast/utility room — useful for flexible living and storage.
The property benefits from gas central heating, double glazing and a modern bathroom, with character features such as a bay window and solid brick walls. A small front garden and a low-maintenance rear garden with shed provide outdoor space in an urban setting.
Buyers should note material considerations: the area has very high reported crime levels and is classed as deprived, which may affect insurance and resale times. The house was built 1930–49 with solid brick walls that likely lack cavity insulation; further energy improvements may be needed to reduce running costs. There is one bathroom and a relatively small plot, which may limit extension options.
Overall, the house suits first-time buyers seeking a characterful, ready-to-move-in home close to transport and local amenities, with potential to improve energy efficiency and personalise interiors over time.
3 bedroom terraced house for sale in Milburn Road, Gillingham, Kent, ME7 — £178,500 • 3 bed • 1 bath • 872 ft²
3 bedroom terraced house for sale in Louisville Avenue, Gillingham, Kent, ME7 — £280,000 • 3 bed • 2 bath • 687 ft²
3 bedroom terraced house for sale in Junction Road, Gillingham, Kent, ME7 — £280,000 • 3 bed • 2 bath • 1013 ft²
3 bedroom terraced house for sale in Stafford Street, Gillingham, Kent, ME7 — £250,000 • 3 bed • 1 bath • 921 ft²
3 bedroom terraced house for sale in Frederick Road, Gillingham, Kent, ME7 — £245,000 • 3 bed • 1 bath • 825 ft²
3 bedroom terraced house for sale in Sidney Road, Gillingham, Kent, ME7 — £237,500 • 3 bed • 1 bath • 1180 ft²


















































