**Standout Features:**
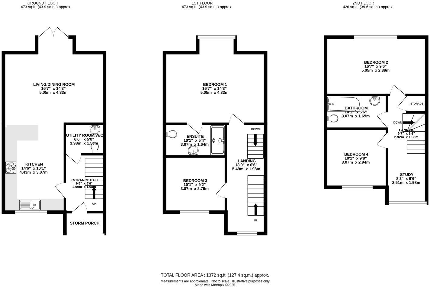
- Spacious modern townhouse spanning 1372 sq ft
- Three stories of stylish accommodation
- Four generous double bedrooms, including an en-suite master
- Open-plan living/dining area with underfloor heating
- Attractive landscaped west-facing garden
- Two allocated parking spaces
- Located in a private gated community
- Close to excellent schools and vibrant local amenities
Discover the epitome of contemporary urban living in this exceptional three-story townhouse, ideally situated near the vibrant heart of West Didsbury. With 1372 sq ft of intelligently designed space, this property features a welcoming entrance, a chic open-plan living/dining area with underfloor heating, and a stylish modern kitchen perfect for entertaining. The first floor boasts two spacious double bedrooms, including a luxurious master suite with an upgraded en-suite bathroom. Ascend to the second floor, where you’ll find two additional double bedrooms and a family bathroom, all enhancing comfort and privacy.
Step outside to enjoy the beautifully landscaped west-facing garden, perfect for relaxing evenings. The two allocated parking spaces add convenience to this stunning home set within an exclusive gated community. With excellent transport connections, nearby amenities, and top-rated schools, this property is an ideal choice for families and first-time buyers alike. Don’t miss your chance to secure a home that combines style, space, and unparalleled location—schedule your viewing today!
4 bedroom town house for sale in Highmarsh Crescent, West Didsbury, Manchester, M20 — £430,000 • 4 bed • 2 bath • 1228 ft²
3 bedroom terraced house for sale in The Beeches Mews, West Didsbury, M20 — £450,000 • 3 bed • 1 bath • 1251 ft²
3 bedroom semi-detached house for sale in Robert Harrison Avenue, West Didsbury, M20 — £475,000 • 3 bed • 2 bath • 1340 ft²
3 bedroom semi-detached house for sale in Georgia Avenue, West Didsbury, M20 — £550,000 • 3 bed • 2 bath • 1802 ft²
5 bedroom end of terrace house for sale in Burton Road, West Didsbury, M20 — £549,950 • 5 bed • 3 bath • 1574 ft²
5 bedroom house for sale in Houseman Crescent, West Didsbury, M20 — £550,000 • 5 bed • 2 bath • 1444 ft²










































































































