Quiet cul-de-sac position, minutes from Burton Road cafes and transport.
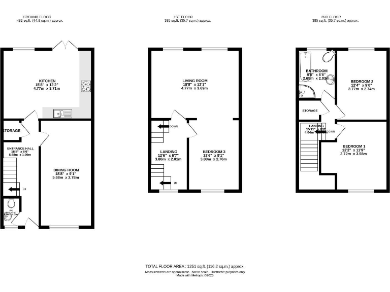
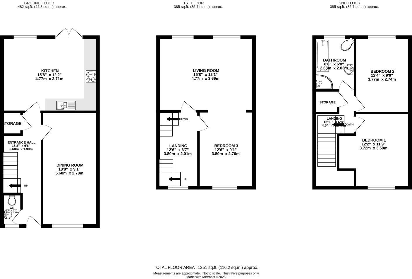
1,251 sq ft over three floors
Set across three floors and extending to 1,251 sq ft, this modernised terrace blends period-inspired Tudor detailing with practical family space. The ground floor opens to a bright dining room and a contemporary kitchen with integrated appliances and French doors onto a private south-easterly decked garden — ideal for morning sun and easy outdoor entertaining. Off-street parking to the front adds everyday convenience on this quiet cul-de-sac.
Upstairs provides three genuine double bedrooms and a generous dual-aspect living room with tree-lined views, while a stylish four-piece bathroom serves the household. The property benefits from mains gas central heating, cavity wall insulation (assumed), and fast broadband and mobile coverage suited to home working or streaming.
Practical matters are straightforward: the house is leasehold with 967 years remaining and a below-average service charge of £900. There is one family bathroom for three bedrooms and the double glazing install date is unknown, which buyers may wish to confirm. Positioned a short walk from Burton Road’s cafes, bars and transport links, this property suits growing families seeking space and local amenities in an affluent neighbourhood.
3 bedroom semi-detached house for sale in Georgia Avenue, West Didsbury, M20 — £550,000 • 3 bed • 2 bath • 1802 ft²
3 bedroom semi-detached house for sale in Georgia Avenue, West Didsbury, M20 — £450,000 • 3 bed • 2 bath • 1137 ft²
3 bedroom end of terrace house for sale in Westbourne Grove, West Didsbury, Manchester, M20 — £675,000 • 3 bed • 2 bath • 1388 ft²
3 bedroom terraced house for sale in Disley Avenue, West Didsbury, M20 — £465,000 • 3 bed • 1 bath • 961 ft²
3 bedroom terraced house for sale in Arley Avenue, West Didsbury, M20 — £465,000 • 3 bed • 1 bath • 1172 ft²
5 bedroom semi-detached house for sale in Broxbourne Close, Manchester, M20 — £690,000 • 5 bed • 3 bath • 1419 ft²






















































































