Move-in ready two-bed flat with private garden and excellent transport links.
Two double bedrooms with generous storage
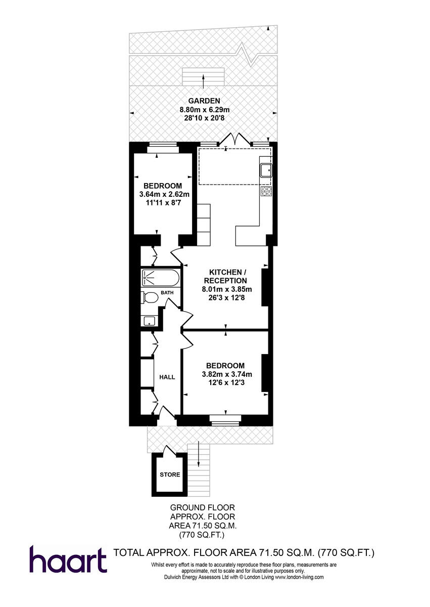
This well-presented two-bedroom garden flat sits in a desirable SE15 pocket just off Queens Road, combining period charm with contemporary upgrades. The open-plan living space is bright and airy, finished to a high standard with underfloor heating in the kitchen, living area and bathroom, and a sleek fitted kitchen that opens directly onto a private rear garden — a rare find for this location.
Both bedrooms are double-sized and offer generous storage, while the single modern bathroom and the apartment’s 770 sq ft layout make it comfortable for a small family, couple or professionals sharing. The property forms part of a share of freehold and is constructed in solid brick with internal insulation, reflecting its early-20th-century build with modern improvements such as double glazing.
Transport and local amenities are a strong selling point: Queens Road Peckham and Peckham Rye stations are within easy reach with direct links to central London, plus multiple bus routes and fast broadband and mobile signal. Nearby schools include several Ofsted-rated good and outstanding primary and secondary options, useful for families.
Buyers should consider local context: the immediate area is classed as very deprived and records above-average crime levels, which may affect long-term resale or rental yield expectations. There is only one bathroom and the layout is traditional, so those seeking larger or more contemporary open-plan proportions might want to view carefully. Overall, this is a move-in-ready, high-spec garden flat that suits buyers seeking convenience, outdoor space and strong transport links in SE15.
2 bedroom property for sale in Asylum Road, London, SE15 — £750,000 • 2 bed • 1 bath • 890 ft²
2 bedroom flat for sale in St. Mary's Road, Peckham, SE15 — £695,000 • 2 bed • 1 bath • 923 ft²
2 bedroom ground floor flat for sale in Queens Road, London, SE15 — £500,000 • 2 bed • 1 bath • 826 ft²
2 bedroom apartment for sale in Kinsale Road, London, SE15 — £650,000 • 2 bed • 2 bath • 797 ft²
2 bedroom apartment for sale in Whorlton Road, London, SE15 — £550,000 • 2 bed • 1 bath • 1520 ft²
2 bedroom flat for sale in Asylum Road, Peckham, London, SE15 — £425,000 • 2 bed • 1 bath • 616 ft²






































































































