Compact, energy-efficient three-bedroom home with en suite and off-street parking — ideal first purchase..
Three-storey new-build with energy-efficient design
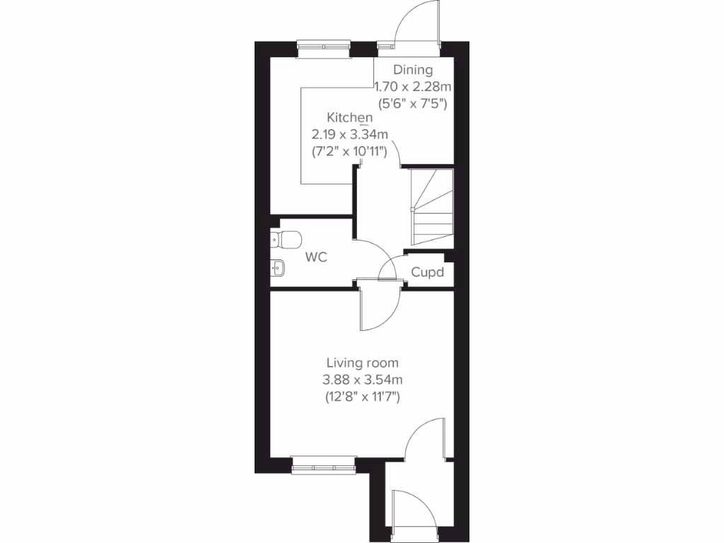
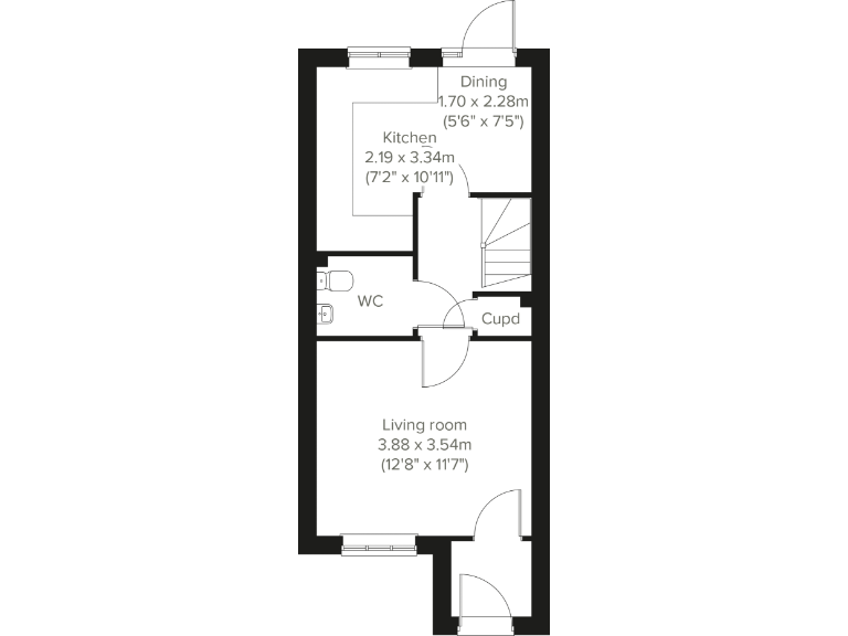
This attractive three-storey new-build Saunton offers efficient, low-maintenance living across 771 sq ft. The open-plan kitchen/dining room with direct garden access and a front-aspect living room give flexible downstairs space for everyday family life or entertaining. A handy downstairs WC, three storage cupboards and allocated off-street parking add practical convenience.
The top-floor principal bedroom includes an en suite, providing privacy for parents or a home-office option. Two further double bedrooms on the first floor work well for children, guests or a study. The property is energy efficient and set in a quiet, very low-crime suburb with good broadband and nearby shops, including an Aldi.
Be aware the house and plot are small for a three-bedroom layout: overall size is compact and some rooms have modest dimensions. Annual service charge is £90 and council tax banding is not yet confirmed. The straightforward, modern finish suits first-time buyers or families seeking a low-maintenance home; buyers wanting larger gardens or more generous living space should consider this when viewing.
3 bedroom end of terrace house for sale in Caspian Crescent,
Scartho Top,
Grimsby,
DN33 3RZ, DN33 — £197,500 • 3 bed • 1 bath • 1311 ft²
3 bedroom terraced house for sale in Caspian Crescent,
Scartho Top,
Grimsby,
DN33 3RZ, DN33 — £188,000 • 3 bed • 1 bath • 1307 ft²
3 bedroom detached house for sale in Caspian Crescent,
Scartho Top,
Grimsby,
DN33 3RZ, DN33 — £245,000 • 3 bed • 1 bath • 1039 ft²
3 bedroom semi-detached house for sale in Caspian Crescent,
Scartho Top,
Grimsby,
DN33 3RZ, DN33 — £212,500 • 3 bed • 1 bath • 615 ft²
4 bedroom detached house for sale in Caspian Crescent,
Scartho Top,
Grimsby,
DN33 3RZ, DN33 — £286,000 • 4 bed • 1 bath • 2022 ft²
3 bedroom semi-detached house for sale in Caspian Crescent,
Scartho Top,
Grimsby,
DN33 3RZ, DN33 — £212,500 • 3 bed • 1 bath • 1382 ft²














































