Energy-efficient three-bedroom end-terrace with driveway and en suite in peaceful Scartho Top..
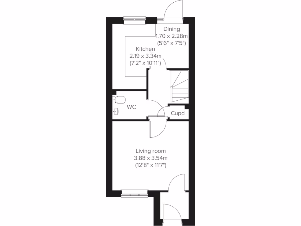
Three-storey new-build end-of-terrace with 1,311 sq ft
Open-plan kitchen/dining room with outside access
Top-floor principal bedroom with en suite
Family bathroom plus modern fixtures throughout
Three useful internal storage cupboards and enclosed porch
Off-street driveway; small, easy-maintenance garden
Energy-efficient construction; below-average £90 annual service charge
Small plot and limited outdoor space compared with larger homes
A contemporary three-storey end-of-terrace, this new-build Saunton offers efficient, low-maintenance living across 1,311 sq ft. The ground floor has an open-plan kitchen/dining room with outside access, a front-aspect living room and a handy downstairs WC, making daily life practical for busy households.
The top-floor principal bedroom includes an en suite, with two further well-sized bedrooms on the first floor and a separate family bathroom fitted with modern fixtures. Built-in storage is good for a home of this size, with three cupboards and an enclosed porch adding everyday convenience.
Outside, the property benefits from an off-street driveway and a modest enclosed garden — a small plot but easy to maintain. Energy-efficient construction and a below-average annual service charge of £90 help keep running costs down. The house is freehold and sits in a very low-crime, comfortable suburb in Scartho Top, close to local shops and schools.
Potential buyers should note the compact plot and relatively limited outdoor space compared with larger family homes. Council tax band information will be available post-occupation. Overall, this is a sensible choice for families or professionals seeking a modern, low-care home in an affluent, well-connected neighbourhood.
3 bedroom end of terrace house for sale in Caspian Crescent,
Scartho Top,
Grimsby,
DN33 3RZ, DN33 — £195,000 • 3 bed • 1 bath • 771 ft²
3 bedroom terraced house for sale in Caspian Crescent,
Scartho Top,
Grimsby,
DN33 3RZ, DN33 — £188,000 • 3 bed • 1 bath • 1307 ft²
3 bedroom semi-detached house for sale in Caspian Crescent,
Scartho Top,
Grimsby,
DN33 3RZ, DN33 — £212,500 • 3 bed • 1 bath • 615 ft²
3 bedroom detached house for sale in Caspian Crescent,
Scartho Top,
Grimsby,
DN33 3RZ, DN33 — £245,000 • 3 bed • 1 bath • 1039 ft²
3 bedroom semi-detached house for sale in Caspian Crescent,
Scartho Top,
Grimsby,
DN33 3RZ, DN33 — £212,500 • 3 bed • 1 bath • 1382 ft²
4 bedroom detached house for sale in Caspian Crescent,
Scartho Top,
Grimsby,
DN33 3RZ, DN33 — £286,000 • 4 bed • 1 bath • 2022 ft²














































