Efficient new-build three-bed with large top-floor bedroom and allocated parking..
Three-storey new-build with flexible top-floor principal bedroom
Energy-efficient design and freehold tenure
Allocated off-street parking; very low local crime
Single family bathroom; may be tight for larger families
Small plot and compact dining/kitchen areas
Three useful storage cupboards plus downstairs WC
Annual service charge £90 (below average)
Fast broadband and nearby supermarkets including Aldi
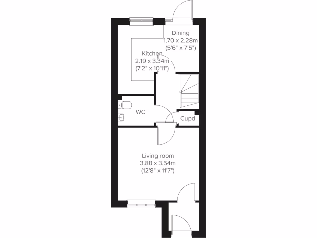
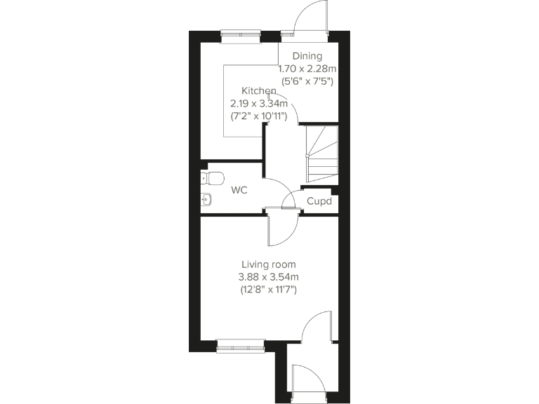
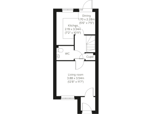
Step into this three-storey new-build terraced home in Regency Meadows, Scartho Top — a compact, modern family layout with practical storage and allocated parking. The Braunton-style top-floor principal bedroom is unusually large and versatile, ideal as a private suite, teenage retreat or home office. Ground-floor living is arranged around a front-aspect living room and a kitchen/diner with outside access, making daily life and entertaining straightforward.
The house is energy-efficient and freehold with an annual service charge of £90. There are three bedrooms, one bathroom and a downstairs WC, plus three handy storage cupboards across the floors. The property sits in a very low-crime, affluent suburb with fast broadband and easy access to local shops including an Aldi, making it well suited to families or buyers seeking a low-maintenance, contemporary home.
Practical realities: the plot is small, and the property has a single family bathroom which may require planning for busy households. Room sizes are modest — the kitchen/diner and dining area are compact — so buyers wanting large open-plan space should take a careful look. Council tax band won’t be confirmed until after occupation. Overall this is a sensible, efficient new home with room to personalise and strong everyday convenience.
3 bedroom semi-detached house for sale in Caspian Crescent,
Scartho Top,
Grimsby,
DN33 3RZ, DN33 — £212,500 • 3 bed • 1 bath • 615 ft²
3 bedroom detached house for sale in Caspian Crescent,
Scartho Top,
Grimsby,
DN33 3RZ, DN33 — £245,000 • 3 bed • 1 bath • 1039 ft²
3 bedroom semi-detached house for sale in Caspian Crescent,
Scartho Top,
Grimsby,
DN33 3RZ, DN33 — £212,500 • 3 bed • 1 bath • 1382 ft²
3 bedroom end of terrace house for sale in Caspian Crescent,
Scartho Top,
Grimsby,
DN33 3RZ, DN33 — £195,000 • 3 bed • 1 bath • 771 ft²
3 bedroom end of terrace house for sale in Caspian Crescent,
Scartho Top,
Grimsby,
DN33 3RZ, DN33 — £197,500 • 3 bed • 1 bath • 1311 ft²
3 bedroom terraced house for sale in Caspian Crescent,
Scartho Top,
Grimsby,
DN33 3RZ, DN33 — £185,000 • 3 bed • 1 bath • 2750 ft²














































