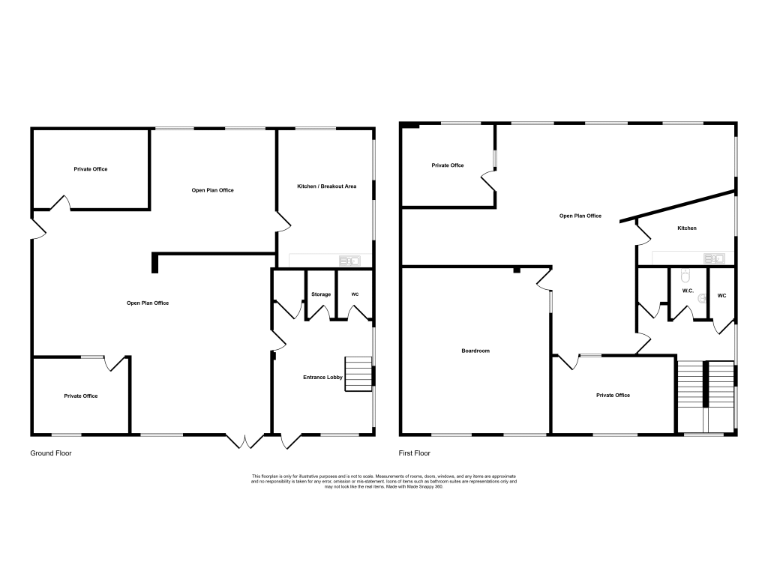
Well-specified multi-storey office by Holmes Chapel station — flexible floor-by-floor options.
4,172 sq ft of fitted office space with boardroom and private offices
A substantial, modern self-contained office building on Whiteside Business Park, directly adjacent to Holmes Chapel station and within 2 miles of Junction 18 of the M6. The 4,172 sq ft floorplate combines large open-plan areas with glazed meeting rooms, private offices and a fitted boardroom, offering immediate occupation or continued rental use.
Specification-led features include air conditioning, perimeter trunking, kitchen/breakout areas, DDA-compliant platform lifts and secure barrier access. The building can be purchased as a whole or occupied/let on a floor-by-floor basis (GF 1,888 sq ft; FF 1,982 sq ft), giving flexibility for an owner-occupier, occupier taking part and letting the rest, or an investor seeking multiple income streams.
Practical positives for staff and visitors are strong: an excellent broadband/mobile signal, very low local crime, nearby town amenities and direct rail services to Manchester and Crewe. Parking is available but limited to up to nine off-street spaces for the whole building, so occupiers relying on car parking should plan accordingly.
Buyers should note some important transactional facts: tenure is not specified in the provided information and should be confirmed, and the property is multi-story which may be a consideration for some occupiers despite DDA lifts. The asking price is £775,000 for the whole building, presenting a clear entry point to a well-specified office asset in a very affluent, well-connected small-town location.
Office for sale in Unit 3, Whiteside Business Park, Station Road, Holmes Chapel, CW4 — £485,000 • 1 bed • 1 bath • 2607 ft²
Office for sale in 5 The Clocktower, Manor Lane, Holmes Chapel, CW4 8DJ, CW4 — £775,000 • 1 bed • 1 bath • 1993 ft²
Office for sale in Drake House, Gadbrook Way, Gadbrook Park, CW9 — £1,425,000 • 1 bed • 1 bath • 10378 ft²
Office for sale in Campion Park, London Road, Holmes Chapel,CW4 8AX, CW4 — £700,000 • 1 bed • 1 bath • 10000 ft²
Office for sale in 1 Verity Court , MIDDLEWICH, Cheshire, CW10 — £470,000 • 1 bed • 1 bath • 2948 ft²
Office for sale in Integrity House, Centre 21, Bridge Lane, Warrington, Cheshire, WA1 — £495,000 • 1 bed • 1 bath • 6404 ft²










































