Fully fitted 2,607 sq ft office by Holmes Chapel station — strong transport links and rental potential.
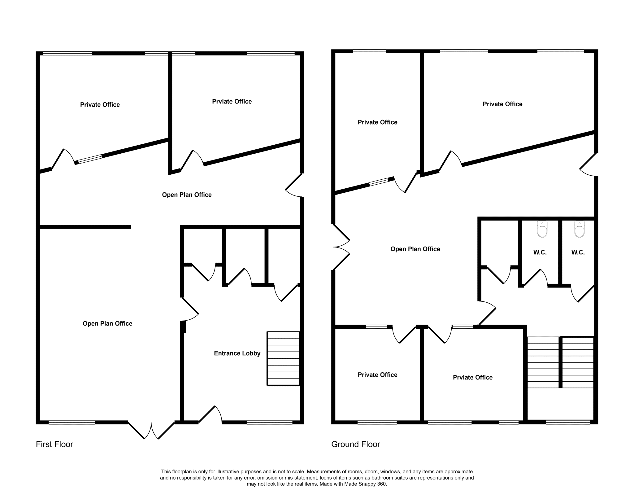
Large self-contained office: 2,607 sq ft across two floors
Fully fitted accommodation with private offices, boardroom and kitchen
DDA compliant with 2 platform lifts and air conditioning
Up to 9 off-street parking spaces; may be limited for full occupancy
Excellent transport: adjacent station and near M6 Junction 18
Secure barrier access, perimeter trunking and cycle bays on site
Tenure unknown — buyers must verify ownership & associated costs
Multi-storey layout may not suit single-floor occupiers
A modern, fully fitted office unit spanning 2,607 sq ft across two floors, located within Whiteside Business Park close to Holmes Chapel station and the M6 (J18). The building offers a mix of open-plan workspace, glazed meeting rooms, private offices and a boardroom, plus kitchen/breakout areas — ready for immediate occupation or letting.
Practical features include secure barrier site access, air conditioning, perimeter trunking, cycle bays and DDA-compliant platform lifts to the upper floor. Up to nine off-street parking spaces are available, and the site benefits from excellent broadband, very low local crime and fast links to Manchester and Crewe by rail.
Key considerations: tenure is unknown and should be confirmed by buyers. Up to nine parking spaces may be limited for some occupiers if the whole building is used; the multi-storey layout means reception and internal movement will suit businesses comfortable with split floors. The property is presented as fully fitted but buyers should inspect finishes and M&E condition before purchase.
This unit will suit owner-occupiers seeking a well-connected, turnkey office near rail and motorway links, or investors targeting a modern, easily marketable office asset in a very affluent small-town location.
Office for sale in Unit 2, Whiteside Business Park, Station Road, Holmes Chapel, CW4 — £775,000 • 1 bed • 1 bath • 4172 ft²
Office for sale in 5 The Clocktower, Manor Lane, Holmes Chapel, CW4 8DJ, CW4 — £775,000 • 1 bed • 1 bath • 1993 ft²
Office for sale in Drake House, Gadbrook Way, Gadbrook Park, CW9 — £1,425,000 • 1 bed • 1 bath • 10378 ft²
Office for sale in 1 Verity Court , MIDDLEWICH, Cheshire, CW10 — £470,000 • 1 bed • 1 bath • 2948 ft²
Office for sale in Campion Park, London Road, Holmes Chapel,CW4 8AX, CW4 — £700,000 • 1 bed • 1 bath • 10000 ft²
Office for sale in Integrity House, Centre 21, Bridge Lane, Warrington, Cheshire, WA1 — £495,000 • 1 bed • 1 bath • 6404 ft²


































