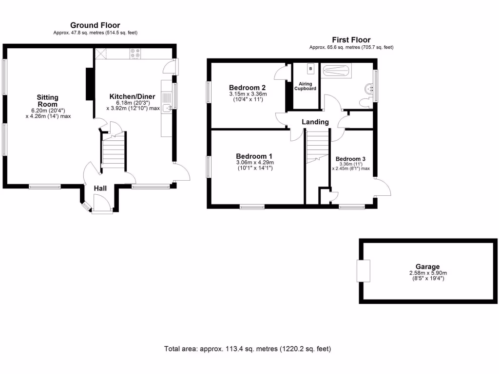
Bright three-bedroom house with garage, driveway and large private garden.
End-of-terrace on a quiet no-through road
This attractively updated three-bedroom end-of-terrace sits on a pleasant no-through road at the edge of Burwell, offering a spacious, light-filled home for growing families. The triple-aspect sitting room and generous kitchen/dining area create easy, sociable ground-floor living with direct access to a large, enclosed rear garden and patio.
Practical features include a detached single garage, long driveway for off-road parking, large airing/storage cupboard and a separate cloakroom. The house has been newly renovated and is presented in good order, so it should suit buyers wanting a move-in-ready family home with scope for personalising over time.
Downsides to note: there is a single shower room only on the first floor, and the EPC rating is currently to be confirmed. Broadband options vary locally — basic speeds available but faster connections are possible depending on provider. Overall this property offers a comfortable family layout in a quiet village setting with easy road links to Cambridge and Newmarket.
3 bedroom semi-detached house for sale in Orchard Way, Burwell, Cambridge, CB25 — £300,000 • 3 bed • 1 bath • 786 ft²
3 bedroom semi-detached house for sale in Montford Close, Burwell, Cambridge, CB25 — £295,000 • 3 bed • 1 bath • 775 ft²
3 bedroom detached house for sale in Burwell, Cambridgeshire, CB25 — £595,000 • 3 bed • 3 bath • 1835 ft²
4 bedroom detached house for sale in Appletree Grove, Burwell, CB25 — £425,000 • 4 bed • 2 bath • 1045 ft²
3 bedroom semi-detached house for sale in Hawthorn Way, Burwell, CB25 — £375,000 • 3 bed • 1 bath • 1004 ft²
5 bedroom detached house for sale in Silver Street, Burwell, Cambridge, CB25 — £950,000 • 5 bed • 3 bath • 3000 ft²














































































