Bright period property with garden and extension scope near Gladstone Park.
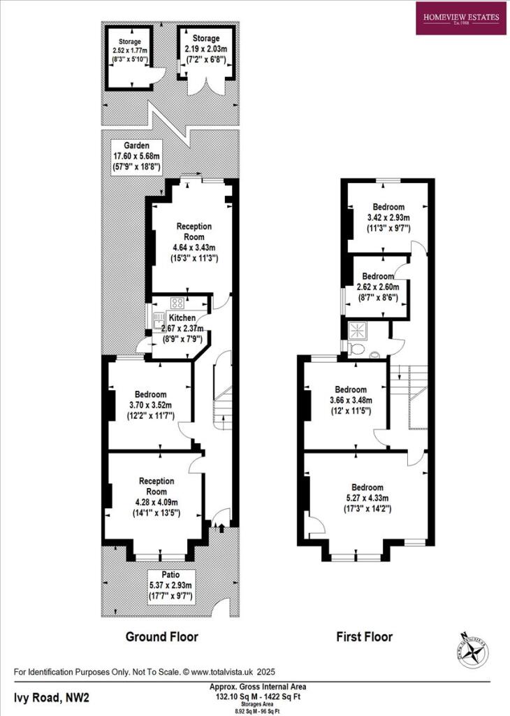
Over 1,422 sq ft of internal living space
Victorian period features: high ceilings and bay windows
Four bedrooms but only one family bathroom
Private rear garden; small plot size
Side-return extension potential (STPP) and loft conversion potential
Solid brick walls; assumed no wall insulation
EPC D; energy-efficiency improvements likely needed
Council Tax Band E — above-average running costs
Set over 1,422 sq ft, this Victorian mid-terrace offers generous living space and a private rear garden on a quiet residential street close to Gladstone Park. High ceilings, original mouldings and large bay windows create bright reception rooms with authentic period character. The property presents clear potential to enlarge the ground-floor kitchen via a side-return extension (STPP) and to add extra living space with a loft conversion (subject to permissions).
Accommodation includes four first-floor bedrooms served by a single family bathroom, so space is best for families prepared to modernise or adapt the layout. The house is solid brick with no known cavity insulation; double glazing is fitted but installation date is unknown and the EPC is rated D. These are tangible upgrade opportunities that will improve comfort and running costs.
Practical details: freehold tenure, council tax band E and mains gas central heating with boiler and radiators. The small plot limits garden depth but the outdoor space is private and usable for family activities. Local amenities include shops, cafés, good primary and secondary schools (several rated Good), and excellent transport links via Cricklewood National Rail and Willesden Green Jubilee Line.
This property suits a family or buyers seeking a period house with scope to add value through sympathetic refurbishment. Expect straightforward renovation works rather than structural overhaul; however, factor in insulation, heating efficiency improvements and potential reconfiguration to modernise the single bathroom and adjust room uses.
4 bedroom terraced house for sale in Villiers Road, Willesden Green, NW2 — £950,000 • 4 bed • 2 bath • 1631 ft²
4 bedroom terraced house for sale in Mulgrave Road, NW10 — £975,000 • 4 bed • 2 bath • 1467 ft²
4 bedroom terraced house for sale in Churchill Road, Willesden Green, London, NW2 — £650,000 • 4 bed • 2 bath • 1267 ft²
5 bedroom terraced house for sale in Olive Road, Cricklewood, NW2 — £1,175,000 • 5 bed • 2 bath • 1807 ft²
3 bedroom terraced house for sale in Cobbold Road, Willesden Green, NW10 — £550,000 • 3 bed • 2 bath • 990 ft²
3 bedroom terraced house for sale in Fleetwood Road, London, NW10 — £850,000 • 3 bed • 1 bath • 1110 ft²










































