**Standout Features:**
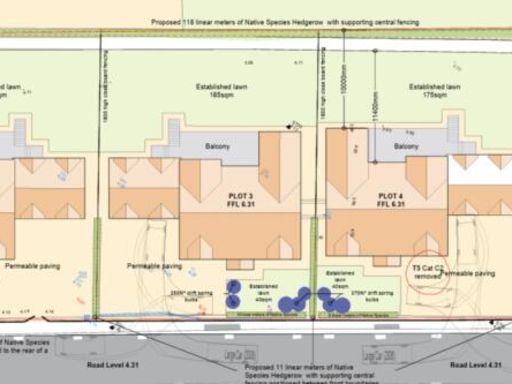
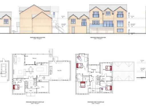
- 0.84-acre parcel of land with full planning permission (24/01567/FUL) for five residential dwellings.
- Located in the scenic village of Sykehouse with strong community values and amenities.
- Development opportunity for bespoke housing in a serene rural setting.
- Close to reputable schools and basic amenities.
- Estimated Gross Development Value (GDV) of £4,000,000, appealing for investors.
**Property Summary:**
Unlock the potential of rural living with this expansive 0.84-acre development site in the charming village of Sykehouse, Goole. With full planning permission already in place for five residential properties, this is an unparalleled opportunity for developers and self-builders to create a distinctive residential community.
Nestled in a tranquil area renowned for its scenic beauty and tight-knit community, the land offers a peaceful lifestyle while maintaining accessibility to nearby towns and essential services. Conveniently located near several reputable schools, including Pollington-Balne Church of England Primary School and The Snaith School, it’s ideal for families looking to settle in a nurturing environment.
While the current site includes two dwellings that will need to be demolished, the land is ready for transformative potential, with a contamination report already satisfied. Local amenities such as a pub, church, and playground contribute to the community charm, making this an attractive location for future homeowners.
This property, priced at £1,000,000, presents a substantial investment opportunity with an estimated GDV of £4 million. Act quickly; parcels like this in such desirable locations don’t last long. Embrace a future filled with possibilities—transform this land into a thriving residential enclave tailored to your vision!
Land for sale in Prime Residential Development Site, Irwin Road, Blyton, DN21 — £385,000 • 1 bed • 1 bath
Land for sale in Wakefield, WF3 — £230,000 • 1 bed • 1 bath • 8407 ft²
3 bedroom detached house for sale in Church Hill, Royston, Barnsley, S71 — £120,000 • 3 bed • 2 bath
Commercial property for sale in Prime Residential Development Site, Irwin Road, Blyton, DN21 — £385,000 • 1 bed • 1 bath
Plot for sale in Rotherham Road, Barnsley, S71 — £575,000 • 1 bed • 1 bath
Land for sale in Luddington Road, Garthorpe, Nr Scunthorpe, DN17 4RU, DN17 — £165,000 • 1 bed • 1 bath • 2531 ft²














































