**Standout Features:**
- Prime building plot with open countryside views
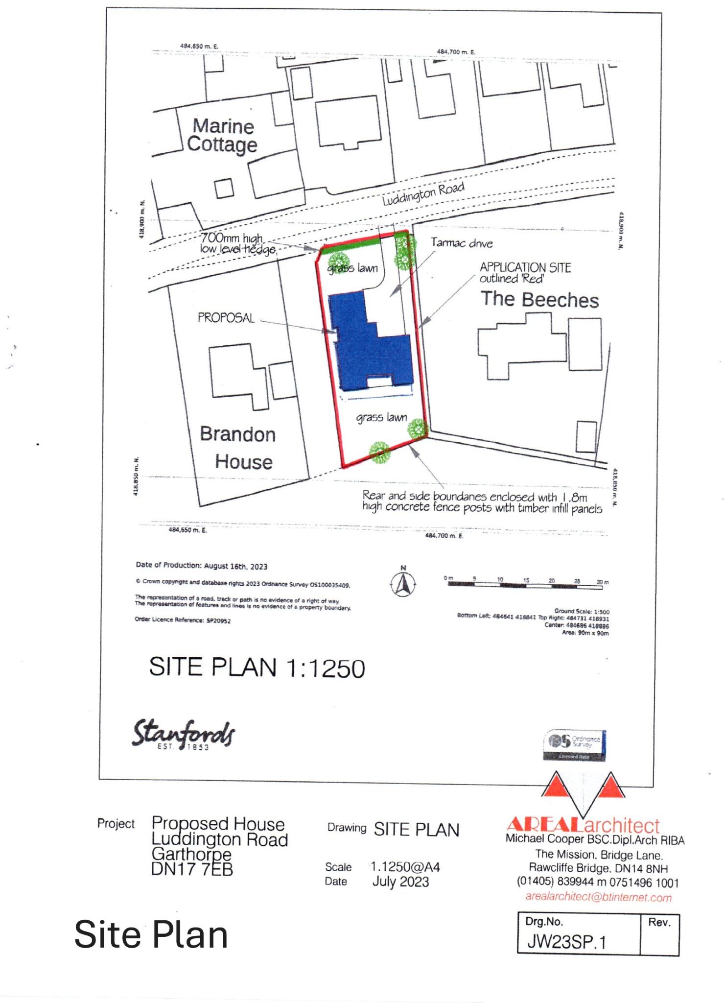
- Approved plans for a spacious 4-bedroom, 4-bathroom detached house with an integral garage
- Strip foundations already laid, streamlining construction
- Lawful access to mains water, electricity, and drainage
- Conveniently located near Goole and Scunthorpe with easy access to M18 and M62 motorways
- Chain free and freehold tenure
**Potential Considerations:**
- Rural setting may limit some urban amenities
- Interested buyers should verify connection services with local authorities
**Summary:**
Discover this prime building plot located on Luddington Road in the desirable rural village of Garthorpe. Spanning approximately 2531 square feet, this sizeable land investment comes with full planning permission to construct a spacious 4-bedroom, 4-bathroom detached home with an integral garage—ideal for self-build enthusiasts. With strip foundations already laid, this property is ready for immediate development, making it a rare opportunity in a scenic landscape.
Enjoy the tranquility of rural life while being conveniently situated near Goole and Scunthorpe, with direct access to major roadways. Your dream home awaits in a community with esteemed local schools and a low crime rate, perfect for families seeking a peaceful yet connected lifestyle. Don’t miss out—this opportunity won’t last long!
Land for sale in Stone Lane, Burringham , DN17 — £100,000 • 1 bed • 1 bath
Plot for sale in Building Plot adjacent to Ealand Methodist Church, New Trent Street, DN17 4JJ, DN17 — £150,000 • 1 bed • 1 bath
Plot for sale in BUILDING PLOT - Adj 67 Wharf Road, Crowle, DN17 4HZ, DN17 — £110,000 • 1 bed • 1 bath
Land for sale in Stone Lane, Scunthorpe, DN17 — £105,000 • 1 bed • 1 bath
Land for sale in Stone Lane, Scunthorpe, DN17 — £105,000 • 1 bed • 1 bath
Land for sale in Stone Lane, Burringham , DN17 — £100,000 • 1 bed • 1 bath






























