**Standout Features:**
- Newly refurbished office space in Brickfield Business Centre
- Open plan layout with spacious design
- Modern amenities including suspended ceilings and LED lighting
- New Panasonic air conditioning system for comfort
- Well-equipped kitchen and WC facilities
- Private secure car park with electric gate
- Landscaped grounds for a pleasant environment
- Excellent transport links with nearby bus stop and Northwich Railway Station
**Summary:**
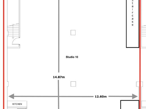
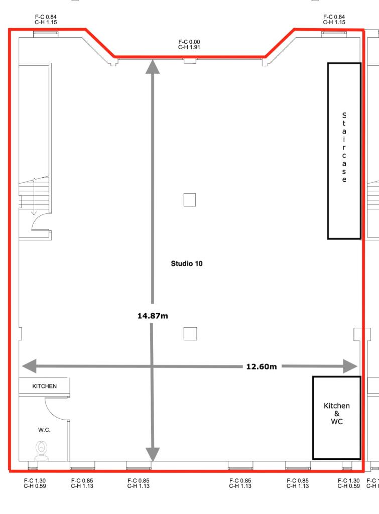
Discover an exceptional opportunity at Brickfield Business Centre, a newly refurbished office space offering approximately 12,000 sq ft of open plan design. This modern facility is adorned with new suspended ceilings, LED lighting, and a top-of-the-line Panasonic air conditioning system, ensuring a comfortable and professional working environment. With the convenience of private secure parking and beautifully landscaped grounds, this property stands out in Northwich’s bustling business district.
Ideal for businesses of all sizes, its proximity to public transport, thriving retail parks, and local amenities enhances its appeal. While the area has above-average crime rates, the secure parking and modern design provide peace of mind, making it a great investment or operational base. Don’t miss this remarkable opportunity to secure a prime office space ready for your business vision—act fast, as this unique offering won't last long!
Office for sale in Brickfield Business Centre, 60 Manchester Road, Northwich, CW9 7LS, CW9 — POA • 1 bed • 1 bath • 12000 ft²
Office for sale in Unit 7, Brunel Court, Rudheath Way, Northwich,CW9 — £245,000 • 1 bed • 1 bath • 1358 ft²
Office for sale in Unit 5, Brunel Court, Rudheath Way, Rudheath, Northwich, Cheshire, CW9 — £185,000 • 1 bed • 1 bath • 1546 ft²
Office for sale in Unit 3, Whiteside Business Park, Station Road, Holmes Chapel, CW4 — £485,000 • 1 bed • 1 bath • 2607 ft²
End of terrace house for sale in COMMERCIAL PROPERTY, London Road, Northwich, CW9 — £195,000 • 1 bed • 2 bath • 1521 ft²
Office for sale in Unit 2, Whiteside Business Park, Station Road, Holmes Chapel, CW4 — £775,000 • 1 bed • 1 bath • 4172 ft²














































