Spacious family home with large garden close to schools and stations.
Victorian mid-terrace with high ceilings and bay windows
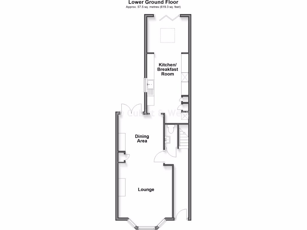
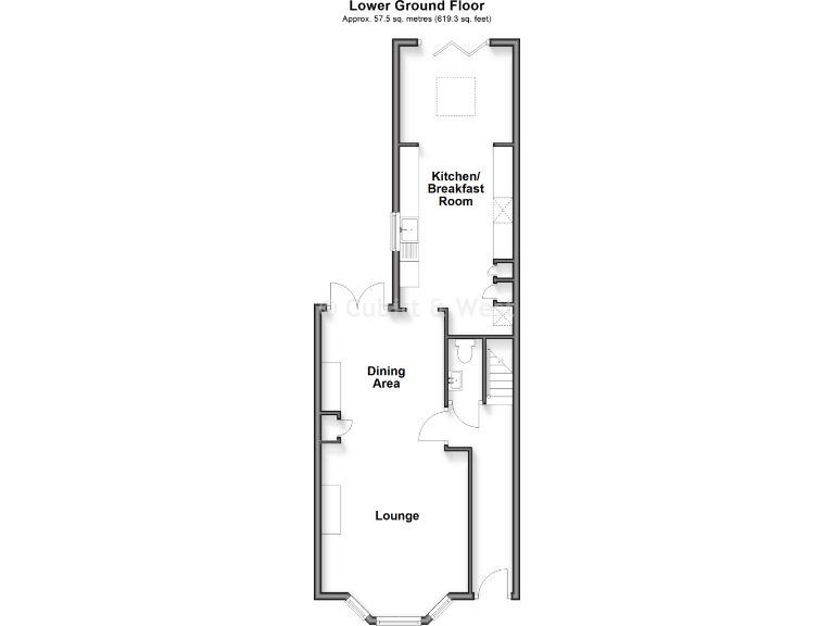
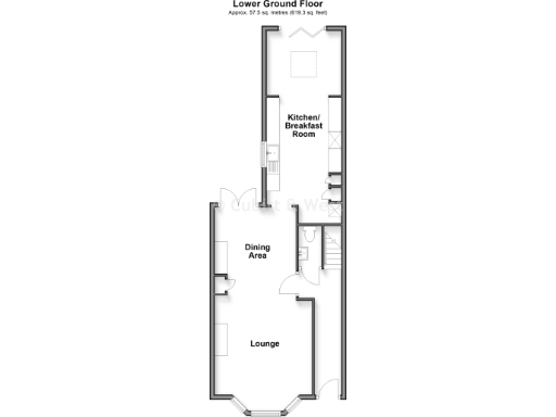
Extended kitchen/breakfast room — 23'0 x 9'2, great for family dining
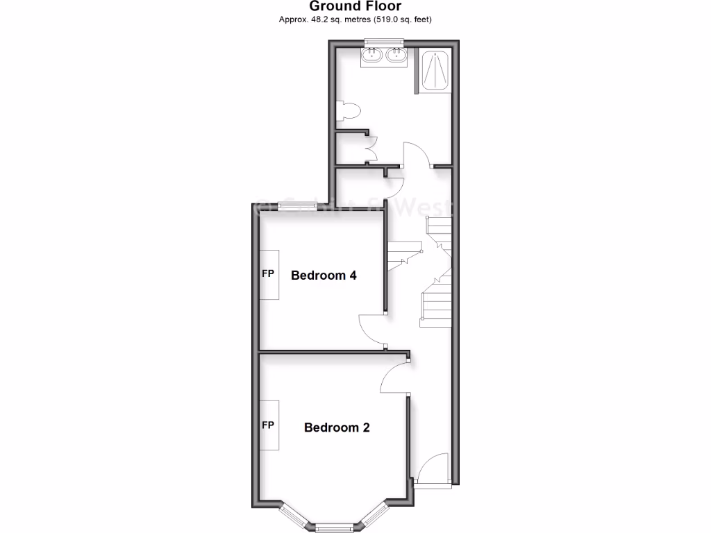
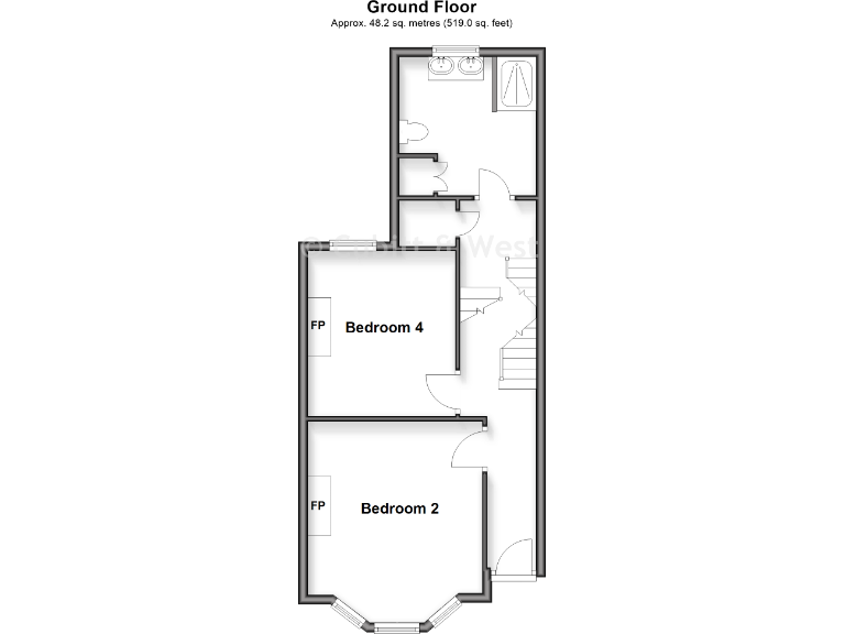
Four bedrooms plus separate office, good room proportions
Large, sunny rear garden — rare for central Brighton
Walking distance to two train stations and local shops
Solid brick walls assumed with no insulation — retrofit likely needed
Double glazing installed before 2002; thermal upgrades advisable
Council tax above average; plot size is relatively small
A spacious Victorian mid-terrace arranged over three floors, this four-bedroom home combines period character with versatile family living. High ceilings, bay windows and arched brickwork give strong curb appeal, while an extended kitchen/breakfast room creates a generous ground-floor hub for daily life and entertaining.
The property sits in a highly qualified, very affluent part of BN1, moments from two train stations, excellent local schools and Brighton seafront. A large, sunny rear garden provides outdoor space rare for a central location, and the room sizes suit a growing family or homeworking needs (separate office included).
Buyers should note a few practical points: the house is solid-brick with no built-in wall insulation (assumed) and double glazing fitted before 2002, so there is scope — and cost — to improve thermal performance. Council tax is above average and the plot is relatively small for the area. Any purchaser should verify planning and building-regulation compliance for the extended kitchen and other alterations.
Overall this home offers immediate family-ready space with future-improvement potential in a sought-after Brighton location, appealing to buyers who want character, proximity to amenities and a substantial garden within walking distance of the seafront.
4 bedroom terraced house for sale in Bates Road - BN1 — £775,000 • 4 bed • 2 bath • 1270 ft²
4 bedroom terraced house for sale in Havelock Road, Brighton, East Sussex, BN1 — £850,000 • 4 bed • 2 bath • 1280 ft²
3 bedroom terraced house for sale in Chester Terrace, BN1 — £800,000 • 3 bed • 1 bath • 1135 ft²
4 bedroom terraced house for sale in Hythe Road, BN1 — £820,000 • 4 bed • 2 bath • 1314 ft²
4 bedroom terraced house for sale in Hollingbury Road, Brighton, East Sussex, BN1 — £600,000 • 4 bed • 1 bath • 1561 ft²
4 bedroom terraced house for sale in Roundhill Crescent, Brighton, BN2 — £760,000 • 4 bed • 1 bath • 1492 ft²






































































