BN1 7JB - 4 bed spacious victorian terrace in Hollingbury Road, BN1 7…

View on Property Piper

4 bedroom terraced house for sale in Hollingbury Road, Brighton, East Sussex, BN1

Summary - 63 HOLLINGBURY ROAD BRIGHTON BN1 7JB

4 bed 1 bath Terraced

Sunny rear garden, close to station and town — ideal for growing families.
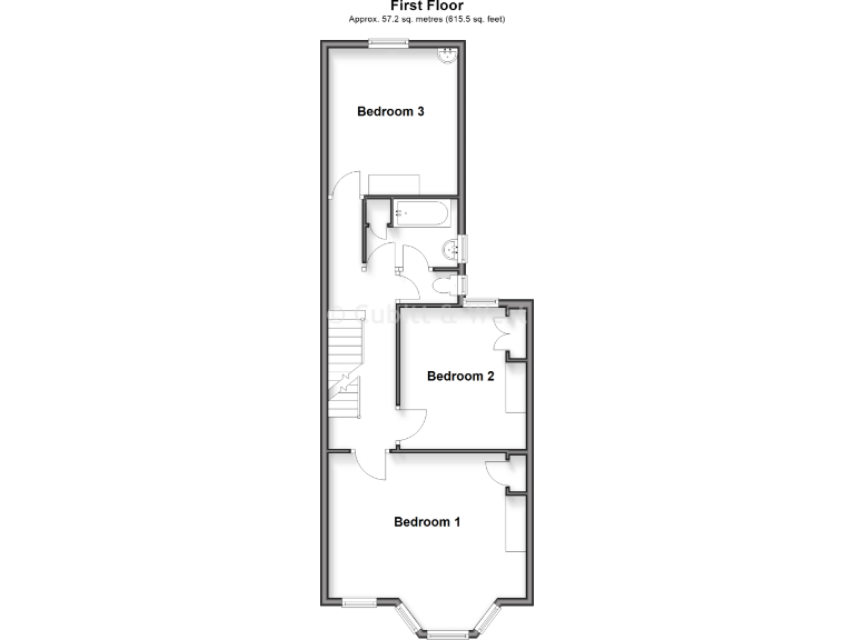
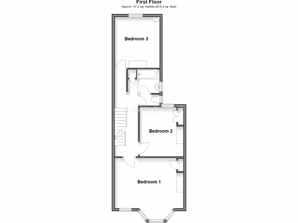
Four bedrooms across three floors, about 1,561 sq ft
This mid-terrace Victorian house offers four good-sized bedrooms across three floors and about 1,561 sq ft of space, making it well suited to a growing family or someone needing home-office and guest rooms. The open-plan lounge/diner with double doors opens onto a sunny, private rear patio garden — a handy outdoor room for summer evenings. The property is chain free and freehold with easy access to Brighton station, local shops and a range of good schools nearby.

Internally the house retains period character and a generous principal bedroom; the layout provides flexible living and entertaining space. Practical benefits include mains gas central heating, double glazing already installed (pre-2002) and a modest council tax band. Local area amenities are strong and the neighbourhood mixes students and professionals.

Buyers should note a few material points. Construction dates to 1900–1929 with solid brick walls and assumed lack of modern wall insulation, so upgrading insulation could be beneficial. The listing materials reference multiple bathing facilities, but recorded bathrooms in the data are one — please verify the exact bathroom count and condition. Double glazing is older and some modernisation is likely needed throughout.

Overall this is a spacious, well-located family house with period charm and clear scope to improve energy efficiency and modern fittings. It will appeal to families seeking space near central Brighton, and to buyers prepared to invest modestly to update services and finishes to current standards.

Property Details

Image Descriptions

Floorplan Description

Rooms

Textual Property Features

Target Audience

AI Tags

Detected Visual Features

EPC Details

Nearby Schools

Nearest Bars And Restaurants

,,,,}

Nearest General Shops

,,}

Nearest Grocery shops

,,}

Nearest Supermarkets

,,}

Nearest Religious buildings

,,}

Nearest Medical buildings

,,,}

Nearest Leisure Facilities

,,,,}

Nearest Tourist attractions

,,}

Nearest Train stations

,,,,}

Nearest Bus stations and stops

,,,,}

Nearest Hotels

,,}

Tags

Local Market Stats

AirBnB Data

Similar Properties

Meta

High Res Images

Compatible Images

Low res Images

Thumbnails

Raw Images

High Res Floorplan Images

Compatible Floorplan Images

Low res Floorplan Images

FloorplanImages Thumbnail

Raw Floorplan Images