Private courtyard one-bedroom, steps from the beach — ideal first home or rental project..
- Private entrance with front and rear courtyard gardens
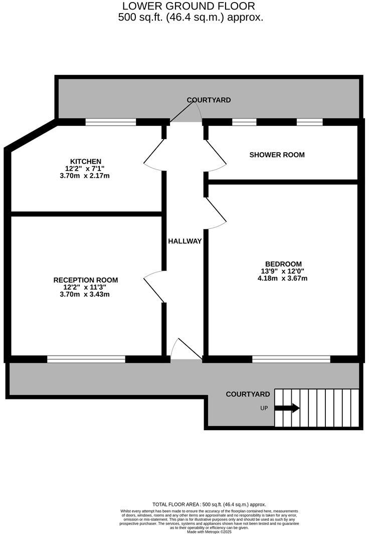
- Approximately 500 sq ft lower-ground one-bedroom flat
- Short walk to beach and St. Leonards shops and station
- Period solid-brick building (pre-1900); limited insulation assumed
- Leasehold: 89 years remaining; ground rent £100
- Compact rooms; would benefit from modernisation to add value
- Lower-ground position means reduced natural light
- Local area: very deprived with higher crime levels
This lower-ground one-bedroom flat offers a private entrance and small front and rear courtyard gardens just a short walk from St. Leonards’ seafront and independent shops. At about 500 sq ft the layout suits a single occupant or couple seeking a seaside base or rental let; nearby St. Leonards mainline station provides direct links to London in around 1 hour 20 minutes.
The building is a period end-terrace of solid brick construction (pre-1900) and the interior presents modest, well-lit living spaces to the front with exposed feature brickwork. The separate fitted kitchen and compact shower room are functional, but the finish is basic and the flat would benefit from updating to unlock stronger rental yields or resale value.
Practical points to note: the property is leasehold with 89 years remaining and a small ground rent of £100. It sits on a lower-ground level so natural light is reduced compared with upper floors. The local area is described as very deprived with higher-than-average crime levels, which may affect family buyers and some investors; council tax is very low.
Overall this flat will appeal most to first-time buyers wanting an affordable seaside home or landlords seeking a compact rental in a sought-after coastal location — provided buyers are comfortable with a period property needing some modernisation and are aware of the local social and safety considerations.
1 bedroom flat for sale in Southwater Road, St. Leonards-On-Sea, TN37 — £175,000 • 1 bed • 1 bath • 473 ft²
1 bedroom flat for sale in Stockleigh Road, St. Leonards-On-Sea, TN38 — £160,000 • 1 bed • 1 bath • 730 ft²
1 bedroom flat for sale in London Road, St. Leonards-On-Sea, TN37 — £170,000 • 1 bed • 1 bath • 625 ft²
2 bedroom flat for sale in Marina, St. Leonards-On-Sea, TN38 — £225,000 • 2 bed • 1 bath • 536 ft²
2 bedroom apartment for sale in Warrior Gardens, St. Leonards-On-Sea, TN37 — £285,000 • 2 bed • 1 bath • 591 ft²
1 bedroom flat for sale in Stockleigh Road, St. Leonards, TN38 0JP, TN38 — £140,000 • 1 bed • 1 bath • 355 ft²






















































