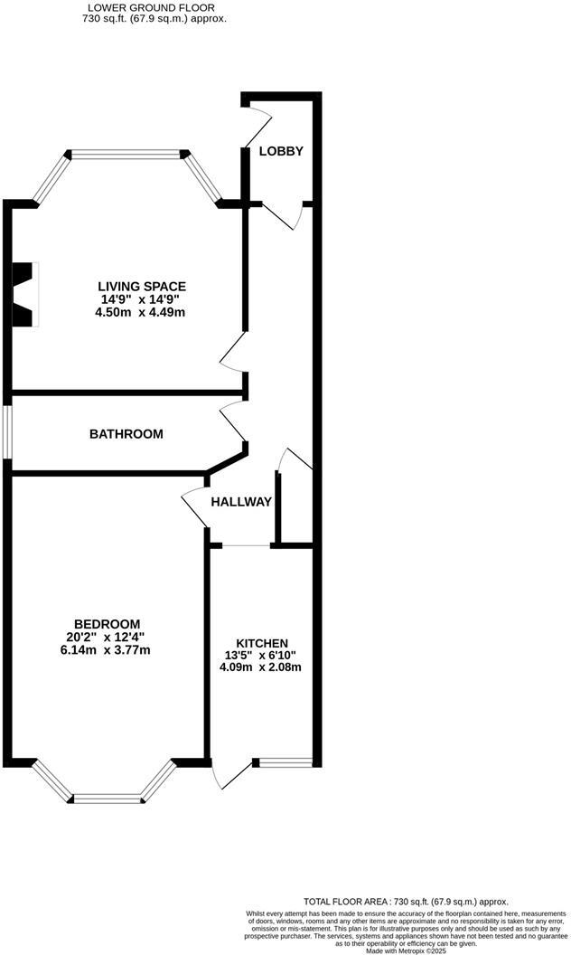
**Standout Features:**
- Spacious one-bedroom garden apartment
- Private entrance with courtyard garden
- Victorian-style bay window in living room
- Large double bedroom with ample natural light
- No onward chain; ready for immediate move-in
- Central location in St. Leonards, close to amenities and transport
**Potential Concerns:**
- Requires modernization; dated decor throughout
- Electrical heating, no insulation reported
- Above-average crime rate in the area
- Broadband speeds classified as slow
- Deprivation level in the local area is notable
Discover a spacious one-bedroom garden apartment located in the heart of St. Leonards. With an impressive layout that includes a generous bay-fronted living room and a well-proportioned double bedroom, this property offers a blank canvas to make your own. Accessed via a private entrance, enjoy your own courtyard garden—an exclusive retreat perfect for relaxation. Ideal for first-time buyers or investors seeking a seaside retreat, this property benefits from immediate availability with no onward chain.
While the apartment provides a unique opportunity for personalization and enhancement, it does require modernization, with some dated decor and basic kitchen features, promising potential for those looking to inject their style. Situated close to local shops, restaurants, and the beach, along with great transport links to London, this property offers both convenience and comfort. Don’t miss this chance to claim your space in a sought-after location—opportunities like this don’t last long!
1 bedroom flat for sale in Southwater Road, St. Leonards-On-Sea, TN37 — £175,000 • 1 bed • 1 bath • 473 ft²
2 bedroom flat for sale in Ellenslea Road, St. Leonards-On-Sea, TN37 — £175,000 • 2 bed • 1 bath • 671 ft²
1 bedroom flat for sale in Highlands Gardens, St. Leonards-On-Sea, TN38 — £170,000 • 1 bed • 1 bath • 693 ft²
1 bedroom flat for sale in Carisbrooke Road, St. Leonards-On-Sea, TN38 — £180,000 • 1 bed • 1 bath • 458 ft²
1 bedroom flat for sale in Southwater Road, St. Leonards-On-Sea, TN37 — £140,000 • 1 bed • 1 bath • 451 ft²
1 bedroom flat for sale in Southwater Road, St. Leonards-On-Sea, TN37 — £200,000 • 1 bed • 1 bath • 417 ft²










































