BN44 3QG - 4 bedroom detached house for sale in Hills Road, Steyning,…

View on Property Piper

4 bedroom detached house for sale in Hills Road, Steyning, West Sussex, BN44 3QG, BN44

Summary - 26 Hills Road BN44 3QG

4 bed 2 bath Detached

Detached four-bedroom house on quiet cul-de-sac
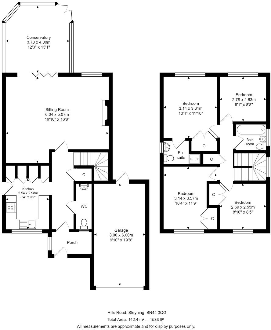
A well-located detached four-bedroom family home on a quiet cul-de-sac, with a south-facing rear garden and pleasant downland glimpses from the first floor. The house offers comfortable, traditional living space: an L-shaped sitting room with a wood-burning stove opening to a double-glazed conservatory, plus a modern kitchen fitted with granite worktops and integrated appliances.

Practical family features include an en-suite to the main bedroom, a separate family bathroom, gas central heating to radiators, replacement double glazing, attached garage and ample off-road parking. The plot is a decent size for gardening or safe outdoor play, and the town’s schools, shops and leisure facilities are all within half a mile — handy for school runs and everyday life.

Notable factual points to consider: the property dates from the late 1960s/early 1970s, so some parts may benefit from updating or ongoing maintenance. The double glazing’s installation date is not known, and council tax is above average. There is no flood risk. Overall this is a solid family home in an affluent, low-crime neighbourhood close to the South Downs and local amenities.

Property Details

Image Descriptions

Floorplan Description

Rooms

Textual Property Features

Detected Visual Features

EPC Details

Nearby Schools

Nearest Bars And Restaurants

,,,,}

Nearest General Shops

,,}

Nearest Grocery shops

,,}

Nearest Supermarkets

,,}

Nearest Religious buildings

,,}

Nearest Medical buildings

,,,}

Nearest Leisure Facilities

,,,,}

Nearest Tourist attractions

,,}

Nearest Train stations

,,,,}

Nearest Bus stations and stops

,,,,}

Nearest Hotels

,,}

Tags

Local Market Stats

AirBnB Data

Similar Properties

Meta

High Res Images

Compatible Images

Low res Images

Thumbnails

Raw Images

High Res Floorplan Images

Compatible Floorplan Images

Low res Floorplan Images

FloorplanImages Thumbnail

Raw Floorplan Images