Two double bedrooms, garage and private garden with easy rail links for commuters.
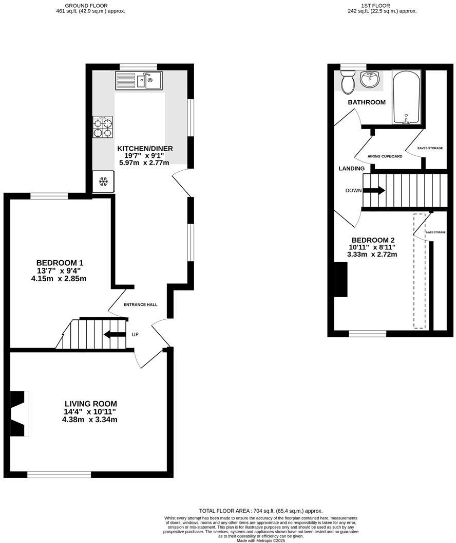
- Two double bedrooms, main bedroom on ground floor
- Social kitchen/diner with direct garden access
- Detached garage plus driveway for two vehicles
- Well-maintained front and rear gardens, patio area
- EPC rating D (58); potential to improve efficiency
- Located in a cul-de-sac near rail links and shops
- Area records higher-than-average local deprivation and crime
- Freehold; council tax band B (£1,883.49)
Set at the end of a quiet close, this semi-detached chalet-style home offers practical two-bedroom living with a private garden, garage and driveway for two cars. The ground-floor main bedroom and a social kitchen/diner opening to the garden suit a relaxed everyday routine; a second double bedroom and bathroom occupy the first-floor landing. The property is presented in good order throughout and benefits from double glazing, gas central heating and useful eaves and under-stairs storage.
Outside, well-tended front and rear gardens provide low-maintenance beds, lawn and a patio area ideal for sitting out. The detached garage and generous driveway remove on-street parking concerns and the position close to local shops, schools and Stonehouse station makes commuting straightforward.
Practical points to note: the EPC is D (58) and the council tax sits in band B. The home sits within an area showing higher local deprivation and recorded crime levels than average — buyers should factor neighbourhood considerations into their plans. Broadband availability ranges from basic to ultrafast depending on package; mobile signal is excellent.
Overall this property will suit downsizers seeking a manageable home with outdoor space, or a small family wanting straightforward access to local amenities. There is also scope for modest updating or personalisation to improve energy efficiency and add value.
2 bedroom semi-detached house for sale in Ryelands Road, Stonehouse, GL10 — £280,000 • 2 bed • 1 bath • 685 ft²
2 bedroom semi-detached bungalow for sale in Ryelands Road, Stonehouse, GL10 — £249,950 • 2 bed • 1 bath • 539 ft²
2 bedroom semi-detached house for sale in Midland Road, Stonehouse, GL10 — £269,950 • 2 bed • 1 bath • 982 ft²
2 bedroom bungalow for sale in Melbourne Drive, Stonehouse, Gloucestershire, GL10 — £350,000 • 2 bed • 1 bath • 642 ft²
3 bedroom semi-detached house for sale in Rylands Close, Stonehouse, GL10 — £335,000 • 3 bed • 1 bath • 786 ft²
2 bedroom terraced house for sale in College View, Stonehouse, GL10 — £275,000 • 2 bed • 1 bath • 419 ft²






















































































