GL10 2DQ - 2 bed spacious two bedroom semi in Midland Road, GL10 2DQ

View on Property Piper

2 bedroom semi-detached house for sale in Midland Road, Stonehouse, GL10

Summary - 57 MIDLAND ROAD STONEHOUSE GL10 2DQ

2 bed 1 bath Semi-Detached

Chain-free two-bedroom semi with garden, parking potential and scope to add value.
Two double bedrooms with flexible, generous living accommodation throughout
Large enclosed rear garden with pergola and substantial shed
Block-paved forecourt for several cars; kerb-drop required and permission needed
Chain-free freehold; immediate move possible
Rear extension is non-standard modular construction (25-year warranty)
EPC rating D63; council tax band A keeps running costs low
Local area: good schools and transport, but higher crime and local deprivation
Broadband average; excellent mobile signal in the area
This extended two-bedroom semi-detached home on Midland Road offers generous, versatile living across approximately 982 sq ft. The layout suits first-time buyers or downsizers seeking ready-to-live-in accommodation with scope to add value. Chain-free freehold tenure and off-street parking potential make it straightforward to move into.

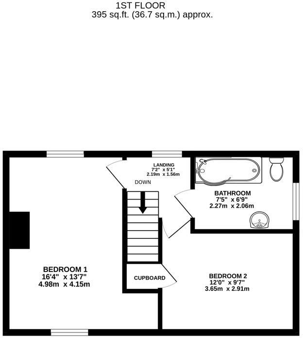
On the ground floor there is a living room with a feature fireplace, light kitchen/diner with French doors to the garden, utility and cloakroom. Two double bedrooms and a family bathroom sit on the first floor. The rear garden is well-established with flower borders, a pergola feature and a large shed — good private outdoor space for the size of the property.

Practical benefits include a block-paved forecourt offering space for several vehicles; however a kerb-drop is required and needs highways approval. The rear extension is non-standard (modular metal boxes with brick slips) but comes with a 25-year warranty — buyers should note this construction difference when assessing future works. EPC D63 and council tax band A keep running costs modest.

The immediate area provides easy access to local shops, primary and secondary schools, regular rail links and the M5 (J12). Broadband and mobile signals are adequate, though the neighbourhood records higher crime and relative area deprivation — buyers looking for long-term investment or family stability should factor local context into their plans.

Property Details

Brochure Descriptions

Image Descriptions

Floorplan Description

Rooms

Textual Property Features

Target Audience

AI Tags

Detected Visual Features

EPC Details

Nearby Schools

Nearest Bars And Restaurants

,,,,}

Nearest General Shops

,,}

Nearest Grocery shops

,,}

Nearest Supermarkets

,,}

Nearest Religious buildings

,,}

Nearest Medical buildings

,,,}

Nearest Leisure Facilities

,,,,}

Nearest Tourist attractions

,,}

Nearest Train stations

,,,,}

Nearest Bus stations and stops

,,,,}

Nearest Hotels

,,}

Tags

Local Market Stats

AirBnB Data

Similar Properties

Meta

High Res Images

Compatible Images

Low res Images

Thumbnails

Raw Images

High Res Floorplan Images

Compatible Floorplan Images

Low res Floorplan Images

FloorplanImages Thumbnail

Raw Floorplan Images