Affordable, low-maintenance apartment ideal for first-time buyers or investors.
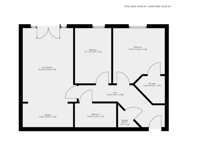
- Second-floor two-bedroom flat with allocated off-street parking
- Master bedroom includes an en-suite bathroom
- Open-plan lounge/diner maximises compact living space
- Approx 57.01 sqm (614 sq ft); overall size is small
- EPC rating C; energy potential unchanged
- Leasehold with circa 134 years remaining
- Some kitchen cabinetry damage; needs cosmetic updating
- Local area: higher crime and higher deprivation levels
This second-floor, two-bedroom flat in Bedworth offers a compact, low-maintenance home with immediate availability and no upward chain. The layout includes an open-plan lounge/diner, a master bedroom with en-suite, and an allocated off-street parking space — practical features for a first-time buyer or buy-to-let purchaser. The apartment sits in a modern red-brick block, built in the mid-2000s, with UPVC double glazing and an EPC rating of C.
The accommodation totals approximately 57.01 sqm (around 614 sq ft), so space is economical rather than generous. The property shows some signs of wear in the kitchen cabinetry and will benefit from cosmetic updating to reach its full potential. Heating is recorded as electric room heaters in some details, while the brochure also references central gas heating — this should be clarified at viewing.
Leasehold details are straightforward with around 134 years remaining, and council tax is described as cheap. The immediate area provides good broadband and mobile signal, decent local schools nearby, and allocated parking, though local crime rates and area deprivation statistics are higher than average. Buyers should weigh the accessible price against the need for some refurbishment and the neighbourhood profile.
2 bedroom apartment for sale in Nuneaton Road, Bedworth, Warwickshire, CV12 — £110,000 • 2 bed • 2 bath • 629 ft²
2 bedroom flat for sale in Nuneaton Road, Bedworth, Warwickshire, CV12 — £110,000 • 2 bed • 1 bath • 652 ft²
2 bedroom property for sale in Henton Court, Coventry, CV6 — £130,000 • 2 bed • 2 bath • 539 ft²
2 bedroom apartment for sale in Hamilton Court, St. Nicholas Street, Coventry, CV1 — £140,000 • 2 bed • 1 bath • 655 ft²
2 bedroom flat for sale in Vernons Mews, Black-A-Tree Road, Nuneaton, CV10 8DZ, CV10 — £125,000 • 2 bed • 1 bath • 604 ft²
2 bedroom flat for sale in Hilditch Way, Nuneaton, CV11 — £230,000 • 2 bed • 2 bath • 795 ft²










































