**Standout Features:**
- **Planning Permission Granted** for conversion of a traditional stone barn into a three-bedroom dwelling.
- Part of a charming collective of four barns with two already complete.
- Idyllic **rural setting** with beautiful countryside views.
- Potential for further development with an adjoining barn (subject to planning).
- Offers a **chain-free purchase** and freehold tenure.
**Downsides:**
- Requires **renovation** to bring to completion.
- **Slow broadband speeds** and average mobile signal.
- Located in a **deprived area**, which may affect resale value.
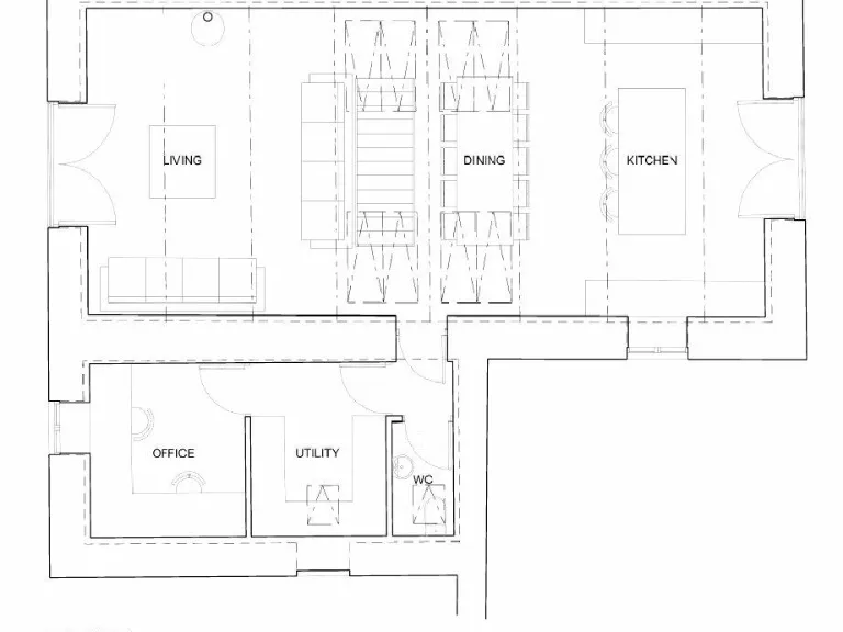
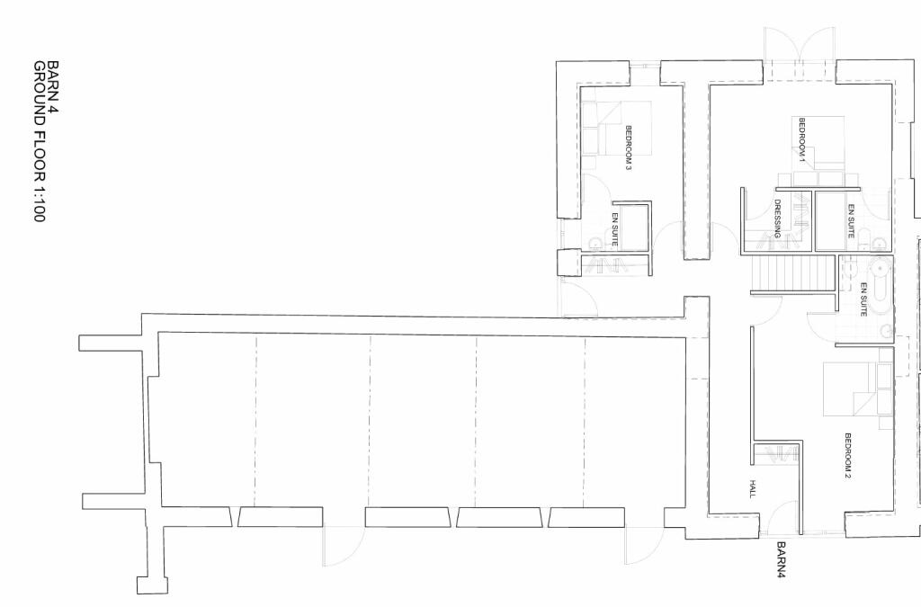
This unique property presents an exceptional opportunity to create a bespoke three-bedroom home in a tranquil rural location, perfect for families or those seeking a serene retreat. The planned layout includes three en-suite bedrooms and an open-plan kitchen/dining/living area, allowing for modern living in a charming stone barn setting. The adjoining barn provides additional potential for expansion, ensuring flexibility for future renovations or guest accommodations.
Located just outside Cookbury, the property is well-positioned for accessing local amenities, with Holsworthy's shops, leisure facilities, and the stunning North Cornish coastline only a short drive away. Those with a vision for rural living will appreciate the extensive nature that surrounds this unique piece of land. Act quickly; properties in this peaceful enclave with such unmatched development potential do not stay on the market for long!
Land for sale in Petrockstowe, Okehampton, EX20 — £275,000 • 1 bed • 1 bath
Land for sale in Holsworthy, EX22 — £200,000 • 4 bed • 2 bath • 2324 ft²
Detached house for sale in Cann Orchard, Stratton, Bude, Cornwall, EX23 — £350,000 • 1 bed • 1 bath
Land for sale in Petrockstowe, Okehampton, EX20 — £130,000 • 1 bed • 1 bath
4 bedroom detached house for sale in Bradford, Holsworthy, Devon, EX22 — £550,000 • 4 bed • 4 bath • 2131 ft²
Plot for sale in Marhamchurch, Bude, Cornwall, EX23 — £250,000 • 1 bed • 1 bath • 1179 ft²










































