Rare ring‑fenced 604-acre mixed farm with farmhouse, buildings and solar income..
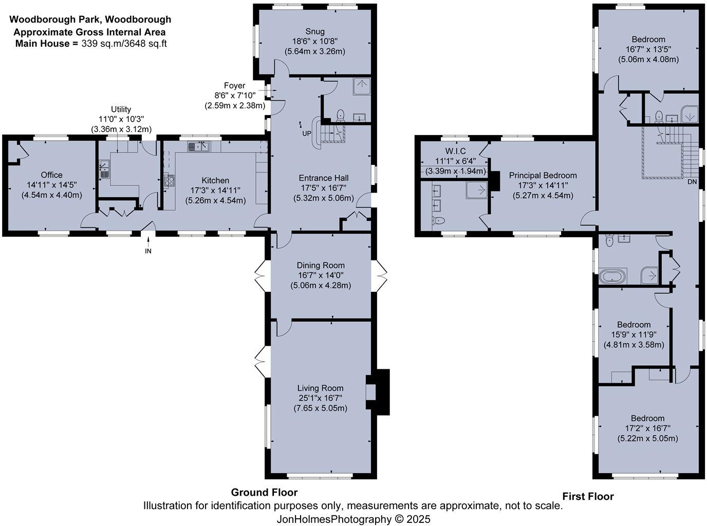
Modern 4-bed farmhouse with underfloor heating and large garden
About 604.56 acres: arable, grassland and woodland
154kW roof and 10kW ground solar arrays; c. £45,000 income
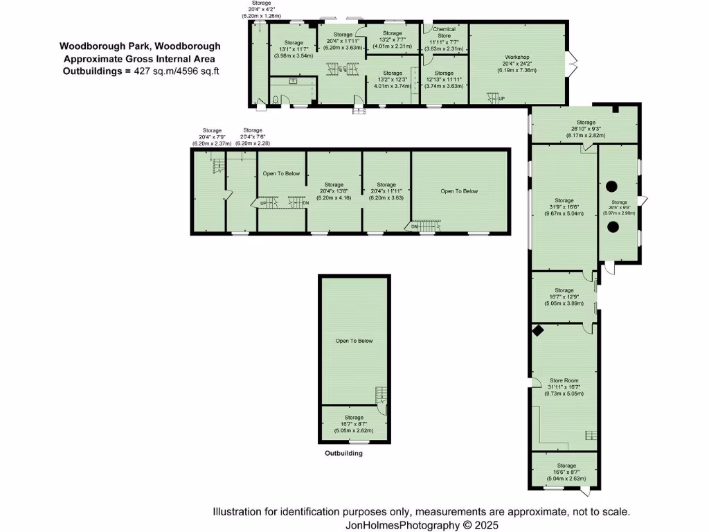
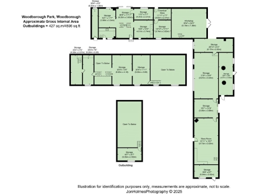
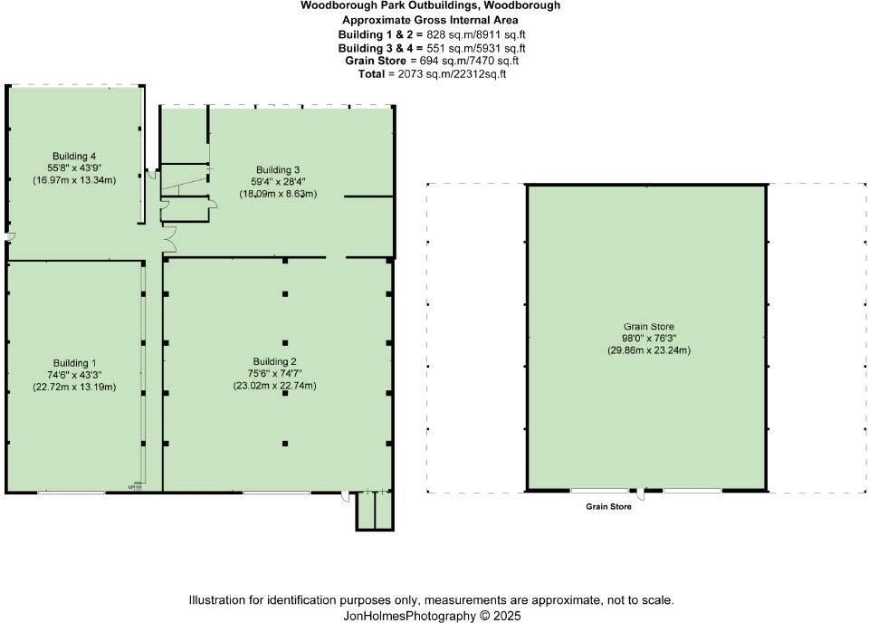
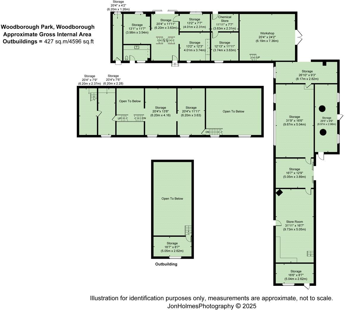
Traditional buildings (4,596 sq.ft.) potential STP; services connected
Asbestos-containing materials present in some farm buildings (management plan)
Vendors retain 330kW wind turbine with access and operational rights
12-month leaseback on farmhouse; existing grazing licences and holdover
20% overage on non-equestrian development value uplift for 20 years
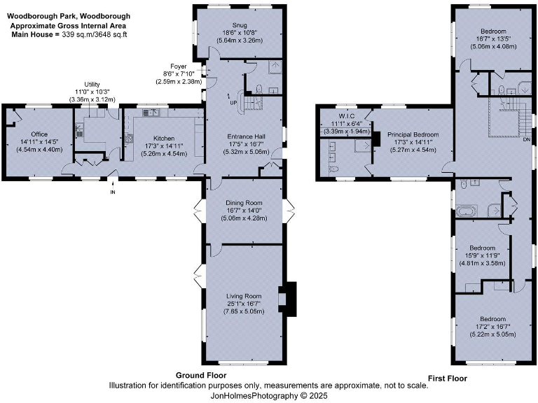
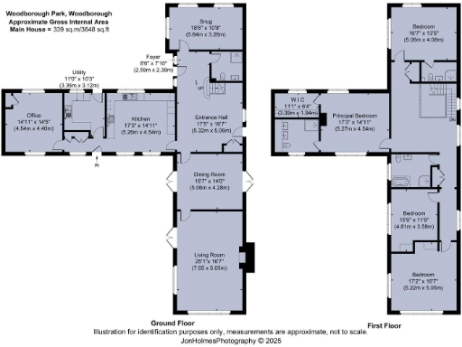
Set across about 604.56 acres, Woodborough Park combines a modern four-bedroom farmhouse with extensive traditional and modern farm buildings, productive arable land, permanent grassland and woodland. The farmhouse (built 2005/06) offers generous accommodation, underfloor heating, double glazing and a large south-facing patio with wide valley views; there is scope to extend the living space and to adapt the traditional buildings subject to planning. The estate already produces diversified income from roof- and ground-mounted solar arrays (c. £45,000 in the last 12 months).
The holding is run as a fully equipped mixed farm: modern portal-frame buildings, a 1,200-tonne grain store, and ring-fenced productive fields (Grade 2/3). Significant environmental stewardship work has been undertaken, including circa 10,000 native trees and conservation agreements; the site has been used as a sustainable agriculture knowledge hub. Access is via two gated driveways and a long tarmac approach, with extensive parking and a recently built quad garage with 3-phase power.
Material considerations are set out clearly. Certain buildings contain asbestos-containing materials (management plan available) and the vendors retain a 330kW wind turbine and its immediate site, together with associated access and operational rights. The solar FiT contracts expire in 2035 and 2036; income levels should be verified. The sale is subject to a 12-month tenancy leaseback of the farmhouse and specified grazing agreements, holdover for crops and stored items to agreed dates, and a 20% development overage for 20 years on non-equestrian planning uplifts.
This property will suit agricultural buyers, lifestyle purchasers, investors and conservation-minded buyers seeking a substantial, well-managed estate close to Nottingham. Prospective purchasers should review the data room for detailed cropping, tenancy, rights, scheme obligations, and the asbestos management plan before viewing.
4 bedroom detached house for sale in Woodborough, Nottinghamshire, NG14 — £7,000,000 • 4 bed • 4 bath • 3648 ft²
Land for sale in Woodborough, Nottinghamshire, NG14 — £130,000 • 1 bed • 1 bath
Land for sale in Woodborough, Nottinghamshire, NG14 — £250,000 • 1 bed • 1 bath • 850 ft²
5 bedroom detached house for sale in Lowdham Lane, Woodborough, NG14 — £1,470,000 • 5 bed • 4 bath • 3250 ft²
4 bedroom detached house for sale in Kirklington Road, Eakring, Newark, NG22 — £885,000 • 4 bed • 3 bath • 3070 ft²
4 bedroom cottage for sale in Greaves Lane, Edingley, NG22 — £1,000,000 • 4 bed • 5 bath • 2002 ft²










































































































































