Large plots, strong GDV and easy A120 access for developers and investors.
Planning permission granted for both Plot A and Plot B
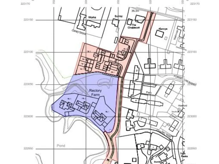
An exclusive, freehold development opportunity on the edge of Bradwell, split into two complementary plots. Plot B comprises a trio of expansive, waterside detached homes with direct pond frontage and potential gated access; Plot A offers a smaller mix from a bungalow and terrace to two detached houses. Planning permission has been granted (refs 20_01897_OUT and 21_01772_OUT) and reserved matters are dealt with so construction can commence on completion of purchase.
The site sits in a quiet hamlet setting with large plots, open countryside views and good onward transport links via the nearby A120 to Braintree, Colchester and Stansted. Predicted combined GDV is approximately £6.45m, making the scheme attractive to developers or investors seeking a rural, high-value product with strong privacy and lakeside appeal. Flood risk is recorded as none.
Buyers should note this is a development site rather than a completed estate: some details described (gated entrance, estate fencing to waterside) are expectations rather than built features. Site delivery will require standard construction management, compliance with planning conditions and connection of services. Council tax and some service details are not provided. The location suits purchasers seeking low-crime, affluent countryside living while valuing seclusion and lakeside plots.
Land for sale in Rectory Meadow, Bradwell, Braintree, Essex, CM77 — £1,900,000 • 1 bed • 1 bath
Land for sale in Horseman Side, Brentwood, CM14 — £850,000 • 1 bed • 1 bath
Land for sale in Hawkspur Green, Little Bardfield, Braintree, CM7 — £450,000 • 6 bed • 4 bath • 3725 ft²
Land for sale in Main Road, Bicknacre, Chelmsford, Essex, CM3 — £550,000 • 1 bed • 1 bath • 2600 ft²
Plot for sale in Great Hallingbury, Bishop's Stortford, CM22 — £875,000 • 1 bed • 1 bath • 1800 ft²
Plot for sale in Little Braxted, CM8 — £800,000 • 1 bed • 1 bath • 1399 ft²






















