Rare village plot with planning consent for two 3/4-bed homes and mains services installed.
Planning permission granted for two 3/4-bed homes, ~1,300 sq ft each
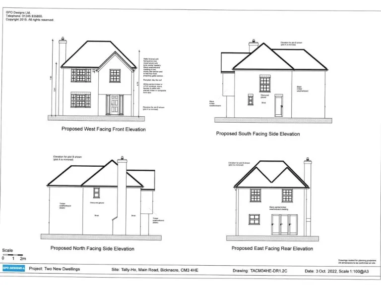
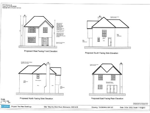
A rare development plot in sought-after Bicknacre with full mains services and planning permission for two detached three/four-bedroom homes (ref: 22/01459/FUL). Each proposed house is approximately 1,300 sq ft, positioned on a very large, triangular plot that delivers generous private gardens and attractive woodland views to the rear. The site sits on Main Road with good access to the A130/A12, local shops and village amenities.
The existing detached house is modest in footprint (one bedroom, one bathroom) and sits well back from the road within mature boundary planting. The plot is immediately buildable under the granted consent, making this suitable for a small-scale developer, builder or purchaser seeking a self-build opportunity with fast broadband and excellent mobile signal already available.
Notable considerations: a reservation agreement is required, council tax is above average for the area, and the existing dwelling and any retained structures will require modernization or demolition in line with the planning consent. The immediate locality is very affluent and low-crime, with a predominately retirement/self-sufficient demographic and nearby schools, woodland walks and village pubs.
In short, this is a development-ready, rare large plot on the village fringe offering immediate planning certainty for two large family homes and strong local appeal. Buyers should review planning documents and the reservation terms before committing.
Residential development for sale in Bicknacre Road, CM3 — POA • 1 bed • 1 bath
5 bedroom detached house for sale in Hawkswood Road, Downham, Billericay, Essex, CM11 — £1,800,000 • 5 bed • 3 bath
Land for sale in Land North of Church Road, Wickham Bishops, CM8 — £7,500,000 • 1 bed • 1 bath
Land for sale in Horseman Side, Brentwood, CM14 — £850,000 • 1 bed • 1 bath
Plot for sale in Little Braxted, CM8 — £800,000 • 1 bed • 1 bath • 1399 ft²
3 bedroom semi-detached house for sale in Ludgrove, Latchingdon, Chelmsford, Essex, CM3 — £475,000 • 3 bed • 1 bath • 915 ft²














































