South-facing garden, large garage and school‑catchment appeal for renovators.
Circa 1,309 sq ft living space; 1,729 sq ft including large garage
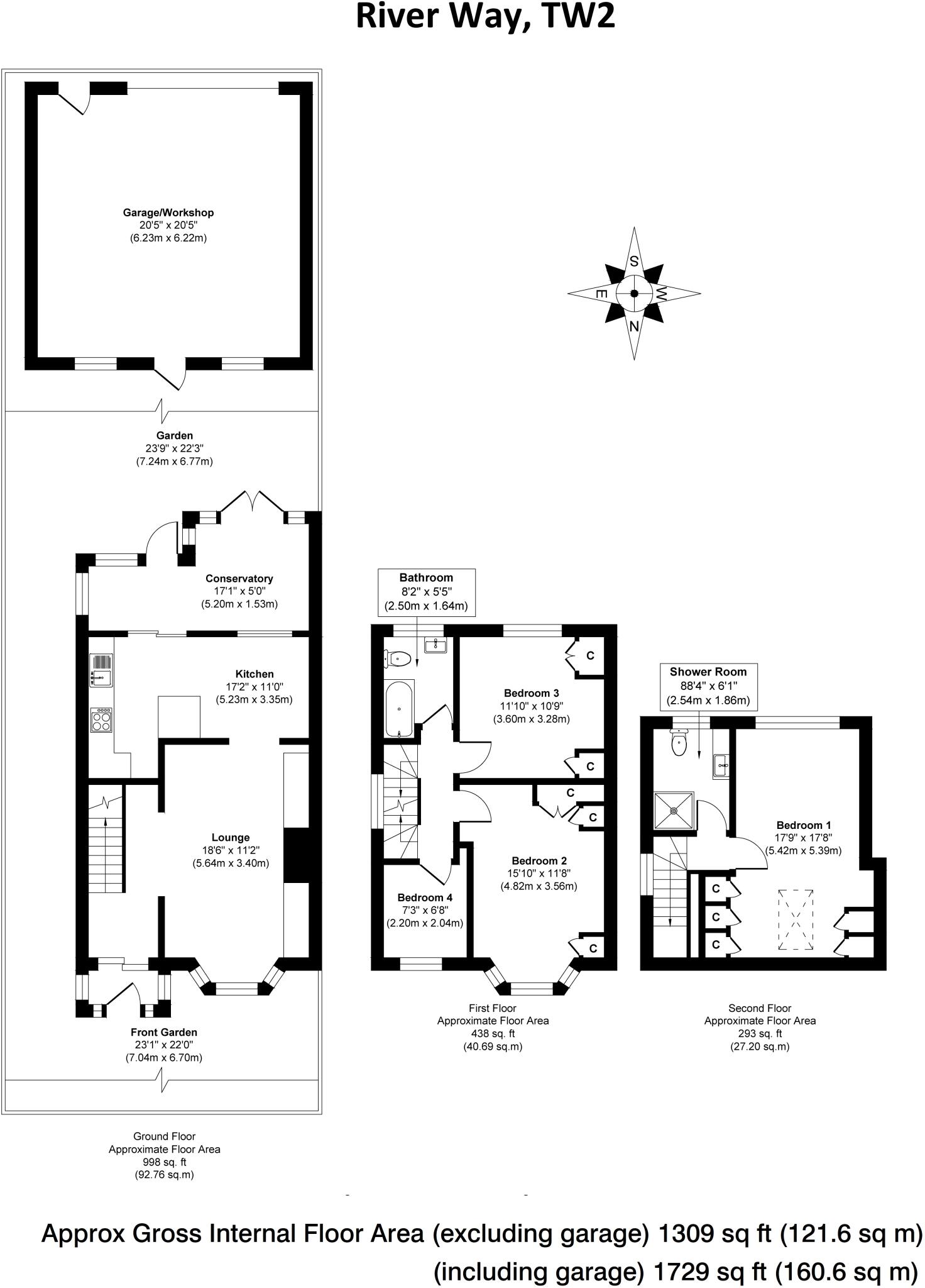
A substantial mid‑century semi‑detached family house in Twickenham, set over three floors with a loft conversion and a large attached garage/workshop. The property offers 1,309 sq ft of living space (1,729 sq ft including the circa 420 sq ft garage), a south‑facing rear garden with gated side access, and immediate access to Crane Park and popular local schools.
The house is liveable but requires updating throughout; cosmetic and system works will be needed to modernise finishes and improve thermal performance (solid brick walls with no assumed insulation). Positive practical features include double glazing, a recently replaced boiler and appliances, mains gas heating, off‑street parking/driveway and substantial garage space suitable as a workshop or conversion subject to planning.
There is clear potential to extend or reconfigure the layout (subject to planning and building regs) to increase value and modern family living space. Buyers should note there is no onward chain, freehold tenure, above‑average council tax and an area crime rate above the local average — factor repair and security improvements into budgets.
Location strengths include under 0.2 miles to Crane Park, around 0.6–0.8 miles to several well‑rated primary and secondary schools, and quick access to the A316 for routes into central London. Broadband and mobile signals are strong, and the neighbourhood is predominantly professional families in an affluent context.
4 bedroom semi-detached house for sale in Rivermeads Avenue, Twickenham, TW2 — £800,000 • 4 bed • 2 bath • 1224 ft²
3 bedroom semi-detached house for sale in Rivermeads Avenue, Twickenham, TW2 — £595,000 • 3 bed • 1 bath • 1034 ft²
3 bedroom semi-detached house for sale in Rivermeads Avenue, Twickenham, TW2 — £625,000 • 3 bed • 1 bath • 1145 ft²
4 bedroom terraced house for sale in Lincoln Avenue, Twickenham, TW2 — £725,000 • 4 bed • 2 bath • 1153 ft²
3 bedroom terraced house for sale in Fulwell Park Avenue, Twickenham, TW2 — £650,000 • 3 bed • 1 bath • 1171 ft²
4 bedroom semi-detached house for sale in Court Close, Twickenham, TW2 — £899,950 • 4 bed • 3 bath • 1648 ft²






















































