Part Q consent for five homes with Moyns Park panoramic views.
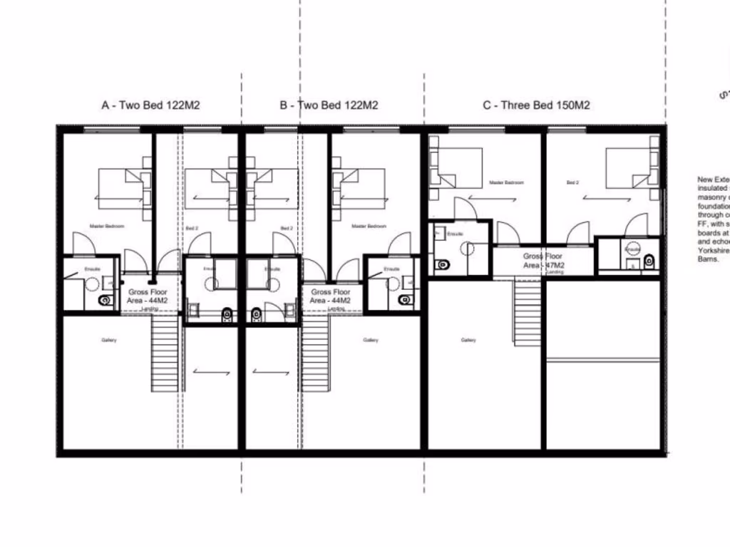
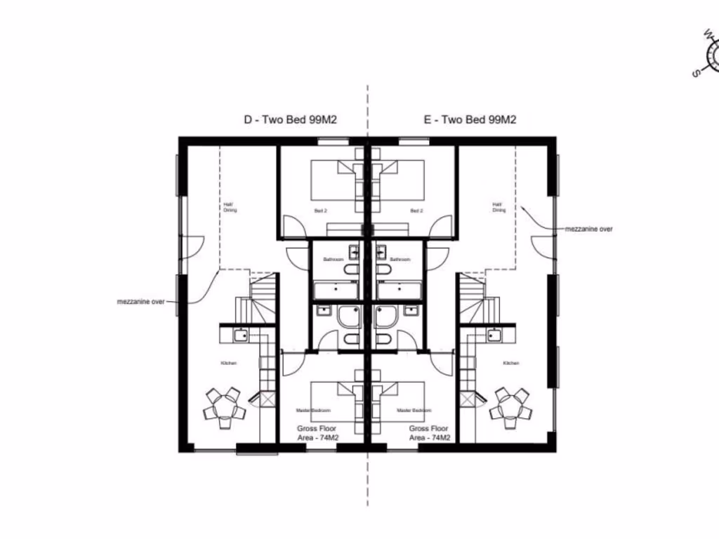
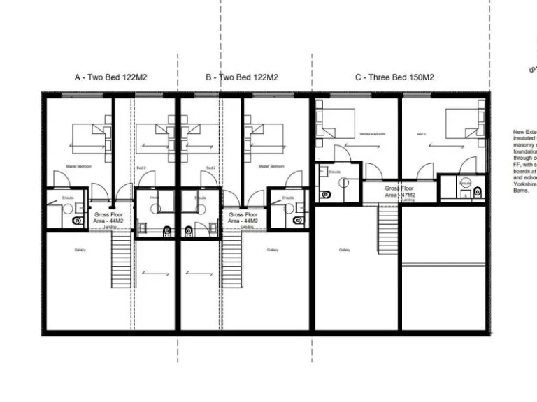
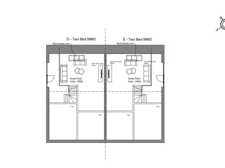
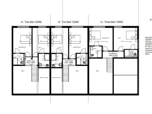
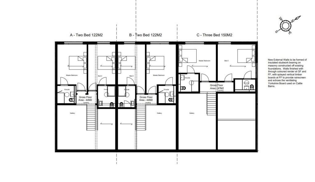
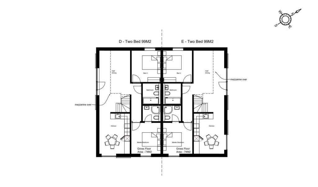
Part Q consent for five dwellings (four 2-bed, one 3-bed)
A rare rural development plot with Part Q consent to convert two agricultural barns into five dwellings (four 2-bed, one 3-bed). Set on approximately 0.66 acres at Whitehouse Farm, the scheme enjoys panoramic views across Moyns Park and open countryside from the village edge.
The consent (Braintree District Council Ref: 25/00050/COUPA) provides a clear route to deliver five homes with parking and private gardens. The site suit developers, self-builders or investor-builders seeking a boutique rural scheme with potential to amend layouts subject to planning (STPP).
The barns are currently agricultural/derelict and will require full conversion works and services confirmation. Access is via a shared private drive; utilities and appliances have not been tested and buyers should allow for service connections, remedial works and conversion costs in their budgets.
Location benefits include low local crime, fast broadband, nearby primary schools rated Good and a tranquil edge-of-village setting popular with rural white-collar workers. Freehold title, no identified flood risk and clear scope to deliver distinctive countryside homes.
Barn for sale in Great Maplestead, Halstead, Essex, CO9 — £450,000 • 1 bed • 1 bath
Land for sale in Development Opportunity, Great Bardfield, CM7 — £1,000,000 • 1 bed • 1 bath • 4400 ft²
Plot for sale in Bardfield Centre, Great Bardfield, Braintree, Essex, CM7 — £1,000,000 • 1 bed • 1 bath • 4400 ft²
Plot for sale in Bardfield Centre, Great Bardfield, Braintree, Essex, CM7 — £1,000,000 • 1 bed • 1 bath • 4400 ft²
Barn for sale in Great Maplestead, Halstead, Essex, CO9 — £330,000 • 1 bed • 1 bath
6 bedroom detached house for sale in Braintree Road, Panfield, Braintree, Essex, CM7 — £600,000 • 6 bed • 3 bath • 3319 ft²


































































