Full planning granted for four homes in scenic Essex village.
- Full planning for four dwellings across barn, office conversion and new build
- Grade II listed barn; conservation consents required and restrictive conditions
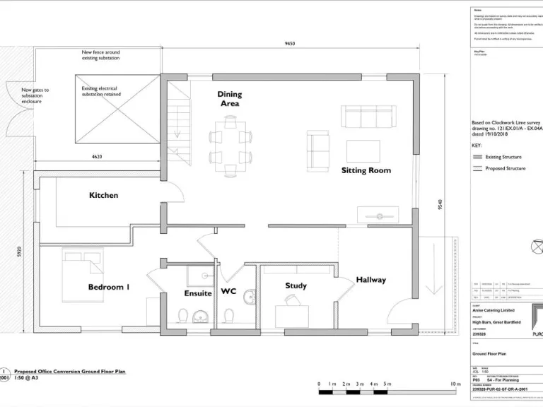
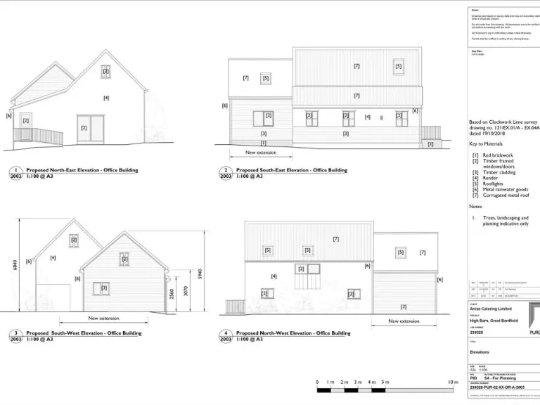
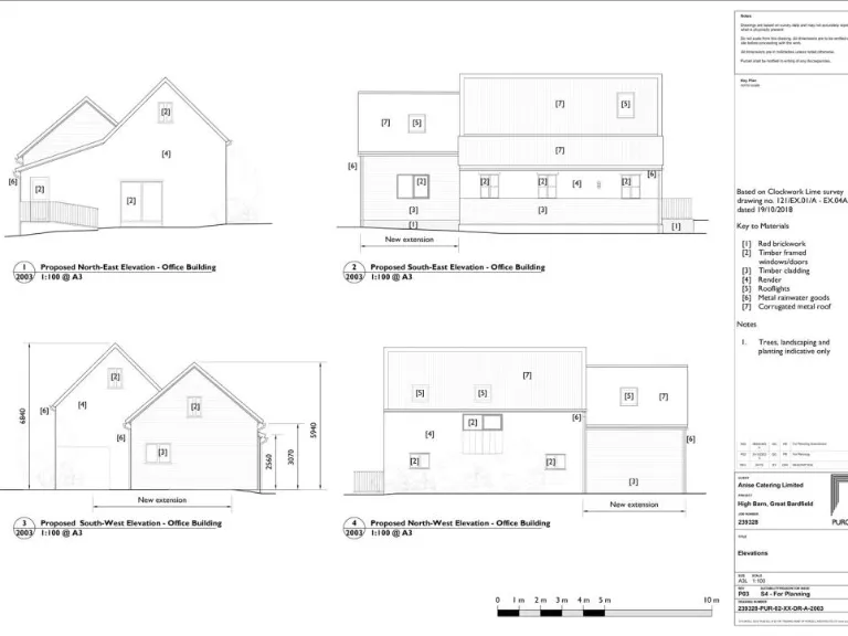
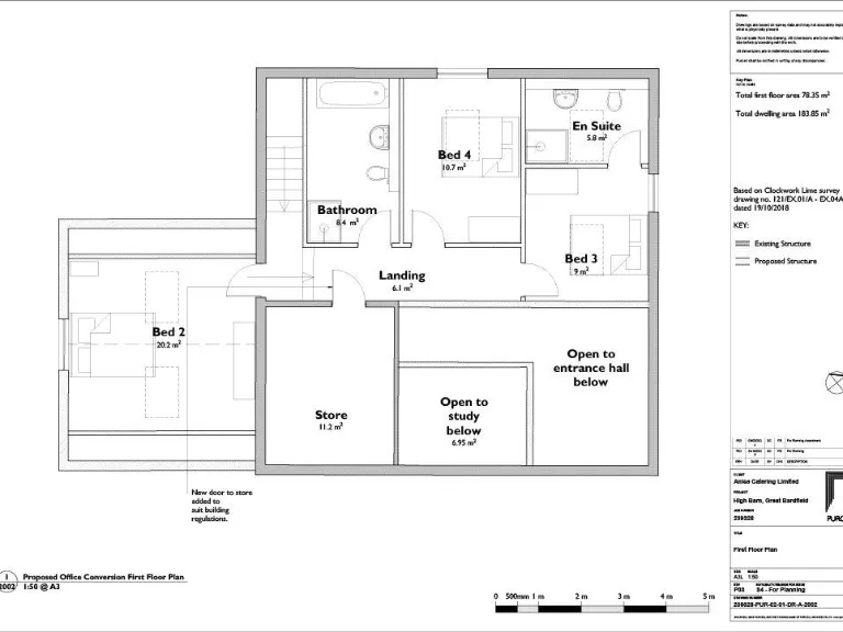
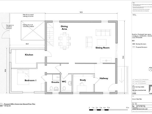
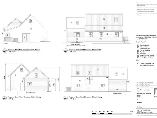
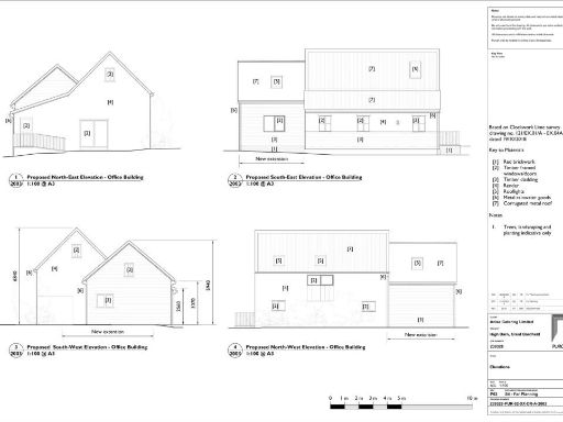
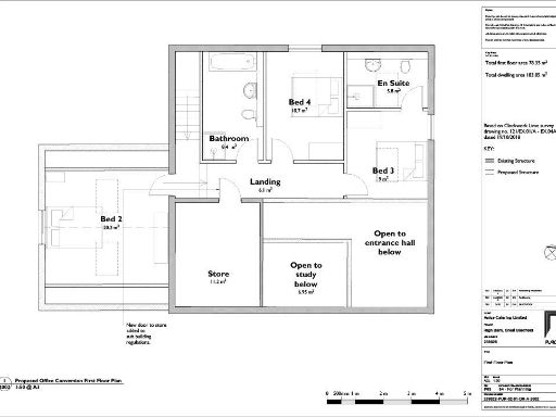
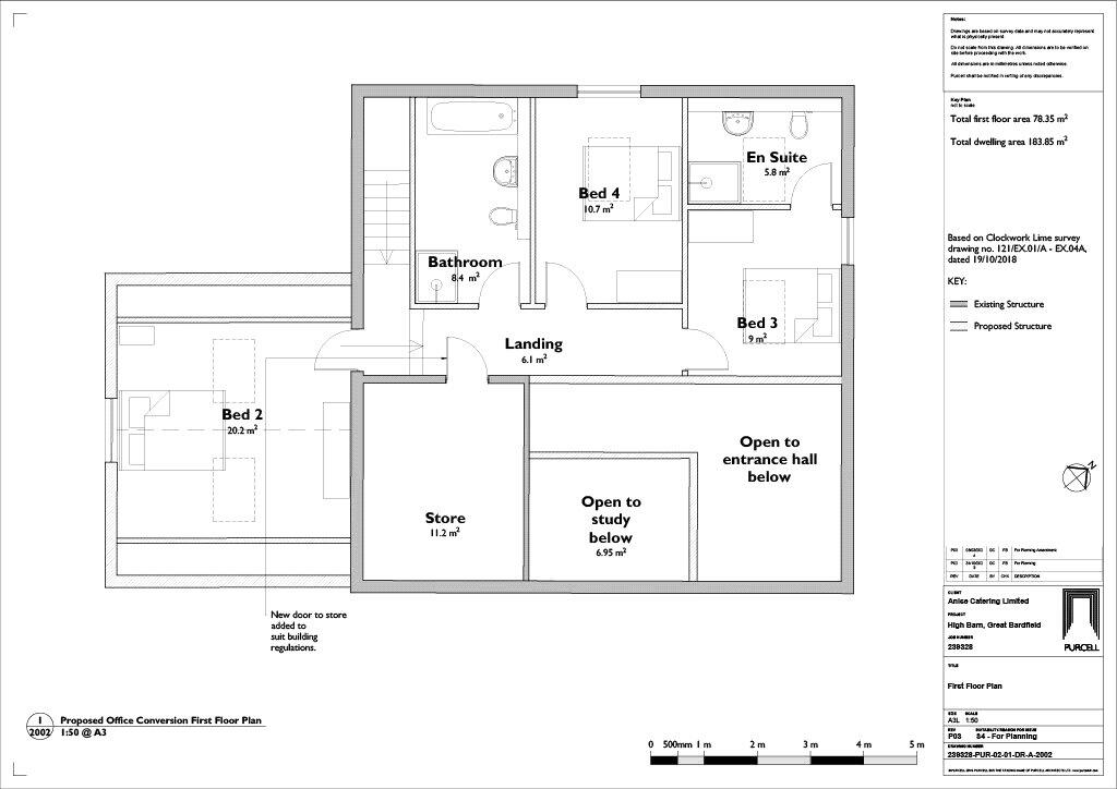
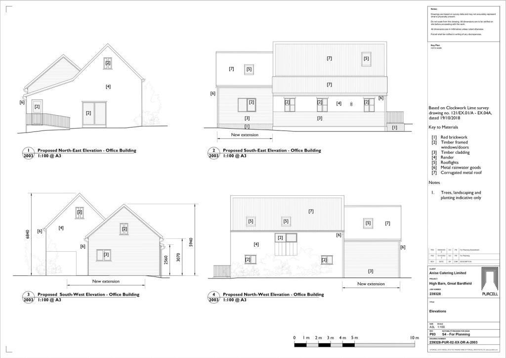
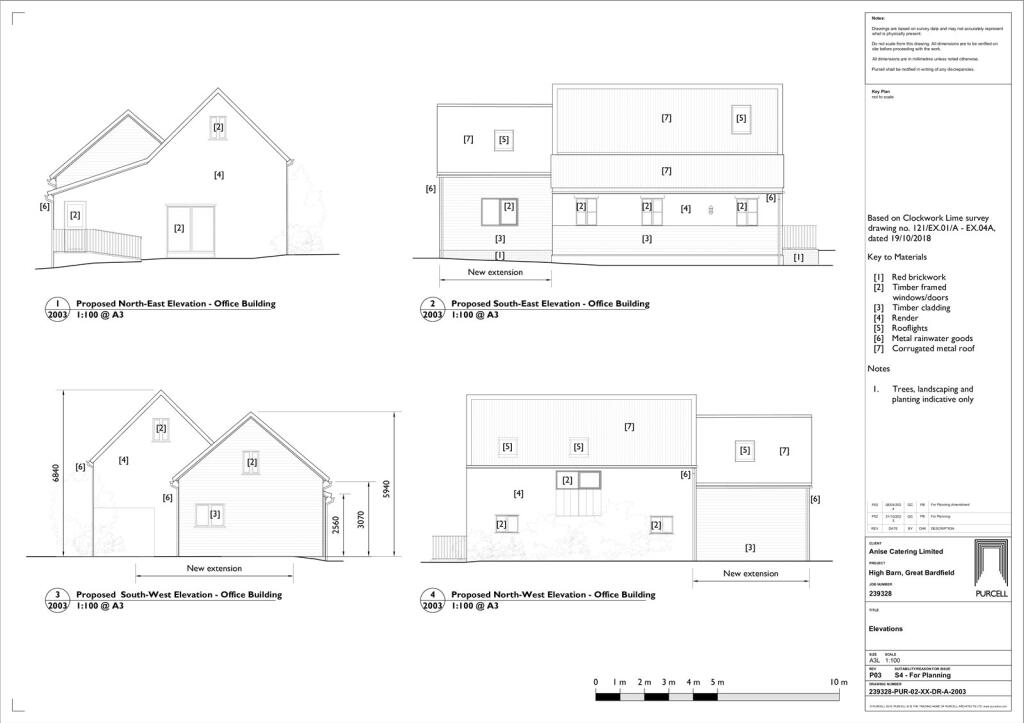
- Office conversion permitted: existing 2,000 sq ft to become four‑bed home
- New build plot: 1,762 sq ft four‑bed dwelling included in consent
- Barn totals 4,400 sq ft to split into three large homes
- Garage, garden and decent plot area; countryside views
- Substation retention and driveway/access variations on file
- Excellent mobile signal, average broadband; low flood and crime risk
A rare development plot in a picturesque Essex village with full planning permission for four dwellings. Braintree Council approvals cover conversion of an existing 2,000 sq ft office into an extended four‑bed home, a new build 1,762 sq ft four‑bed house, and the 4,400 sq ft Grade II listed barn split into three homes (two 4‑beds, one 5‑bed). The site includes a garage, garden and a decent plot area with countryside views.
This opportunity suits developers or investor‑builders seeking a permitted rural scheme. The planning history is extensive (applications and variations recorded), including retention of an on‑site substation and alterations to driveway/access. Mobile signal is excellent and local crime is low; broadband is average. The village setting is affluent with good local primary schools and attractive surroundings.
Buyers should note the barn’s Grade II listed status: conversions will require listed‑building compliance and may add time, cost and restrictions. Landscaping is needed in parts and some external works are covered by the variations; utilities include an existing substation that has been the subject of retention permission.
In short: substantial, well‑permitted development in a sought‑after rural location, but expect listed‑building constraints and additional costs tied to conservation compliance and site finishing.
Land for sale in Development Opportunity, Great Bardfield, CM7 — £1,000,000 • 1 bed • 1 bath • 4400 ft²
Plot for sale in Bardfield Centre, Great Bardfield, Braintree, Essex, CM7 — £995,000 • 1 bed • 1 bath • 1762 ft²
Land for sale in Bardfield Centre, Great Bardfield, Braintree, Essex, CM7 — £995,000 • 1 bed • 1 bath • 1762 ft²
6 bedroom detached house for sale in Braintree Road, Panfield, Braintree, Essex, CM7 — £600,000 • 6 bed • 3 bath • 3319 ft²
Land for sale in Rotten End, Wethersfield, Braintree, CM7 — £325,000 • 1 bed • 1 bath • 1643 ft²
Barn for sale in Great Maplestead, Halstead, Essex, CO9 — £450,000 • 1 bed • 1 bath


















































































