Large village plot with approvals for conversions and a new four-bed build.
Grade II listed 4,400 sq ft barn with consent for two dwellings
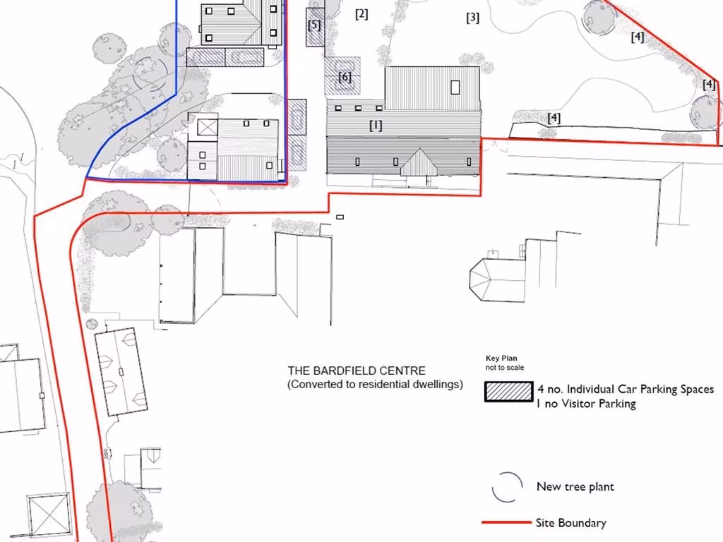
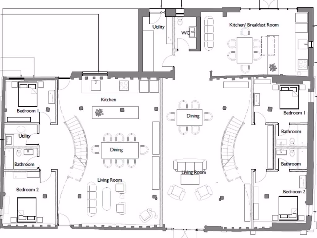
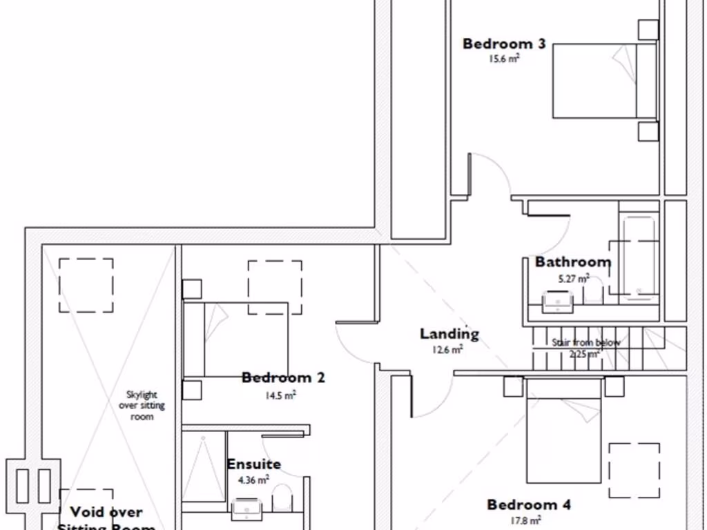
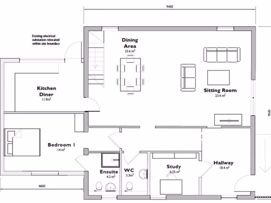
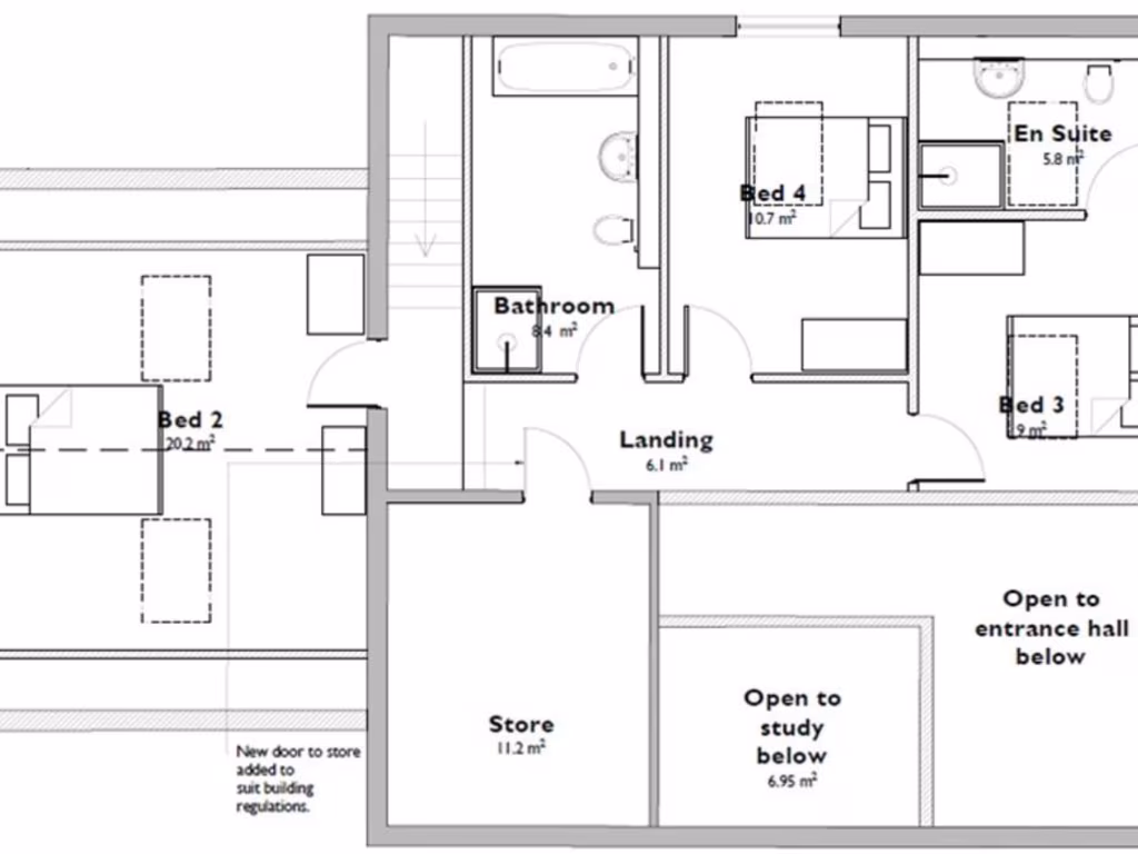
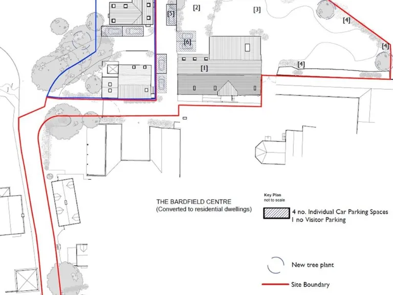
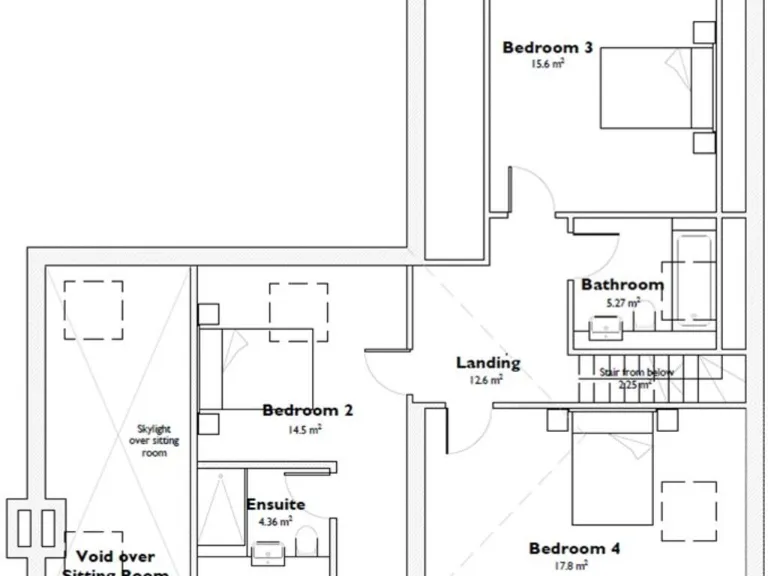
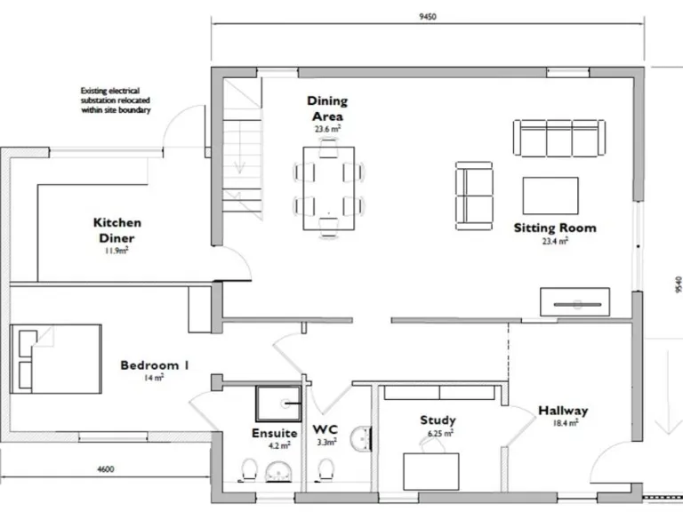
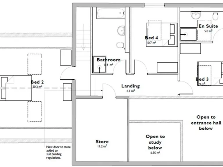
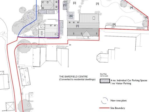
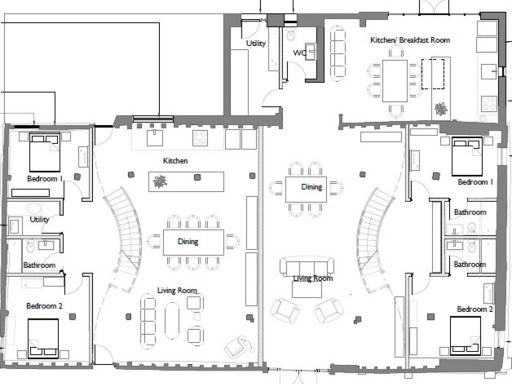
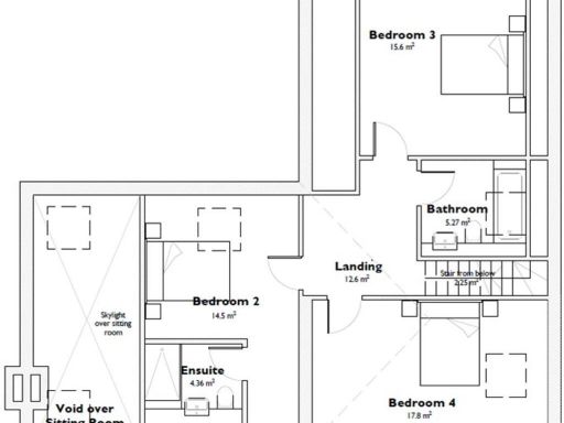
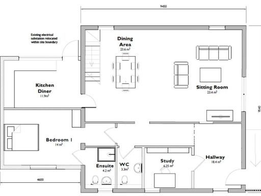
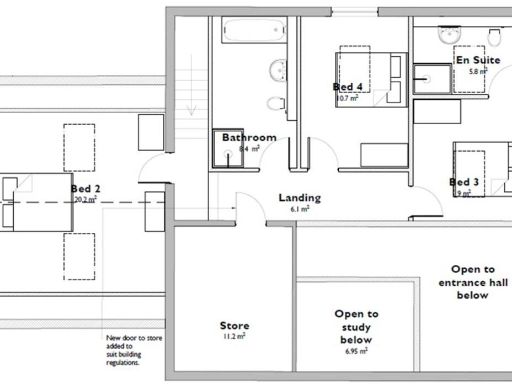
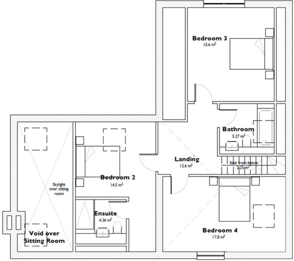
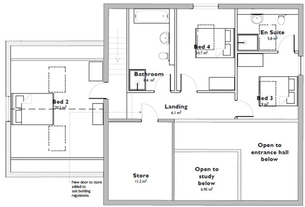
A rare development parcel in Great Bardfield with planning in place to create three conversions and one new-build home. The principal asset is a Grade II listed 4,400 sq ft barn with consent to form two dwellings, alongside permission to convert a 2,000 sq ft office into a four-bed house and to build a further 1,762 sq ft detached four-bedroom home. The site occupies a very large plot in a quiet, affluent village setting with low crime and good primary schools close by.
This opportunity suits a developer or investor wanting a permitted scheme rather than initiating a fresh planning application. Positive planning history includes consent for driveway/access variations and retention of a substation, reducing some immediate obstacles. Excellent mobile signal and freehold tenure add practical value; broadband speeds are average and should be considered when marketing finished units.
Material constraints are clear and significant: the main barn is Grade II listed, which will impose conservation constraints, specialist consenting and likely higher build costs. The retention of a substation on site and previously applied access variations will require careful coordination with utilities and the local authority. Interested parties should allow for detailed surveys, listed-building expertise, and potential archaeological or conservation conditions attached to the approvals.
In short: an attractive permitted development with strong rural appeal and clear commercial potential, but one that demands experienced project management, specialist consultants and realistic cost allowances for listed-building conversion and site-specific constraints.
Land for sale in Bardfield Centre, Great Bardfield, Braintree, Essex, CM7 — £995,000 • 1 bed • 1 bath • 1762 ft²
Plot for sale in Bardfield Centre, Great Bardfield, Braintree, Essex, CM7 — £995,000 • 1 bed • 1 bath • 1762 ft²
Plot for sale in Bardfield Centre, Great Bardfield, Braintree, Essex, CM7 — £975,000 • 1 bed • 1 bath • 2000 ft²
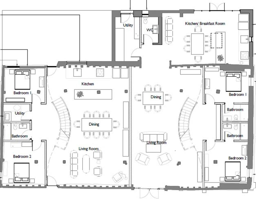
6 bedroom detached house for sale in Braintree Road, Panfield, Braintree, Essex, CM7 — £600,000 • 6 bed • 3 bath • 3319 ft²
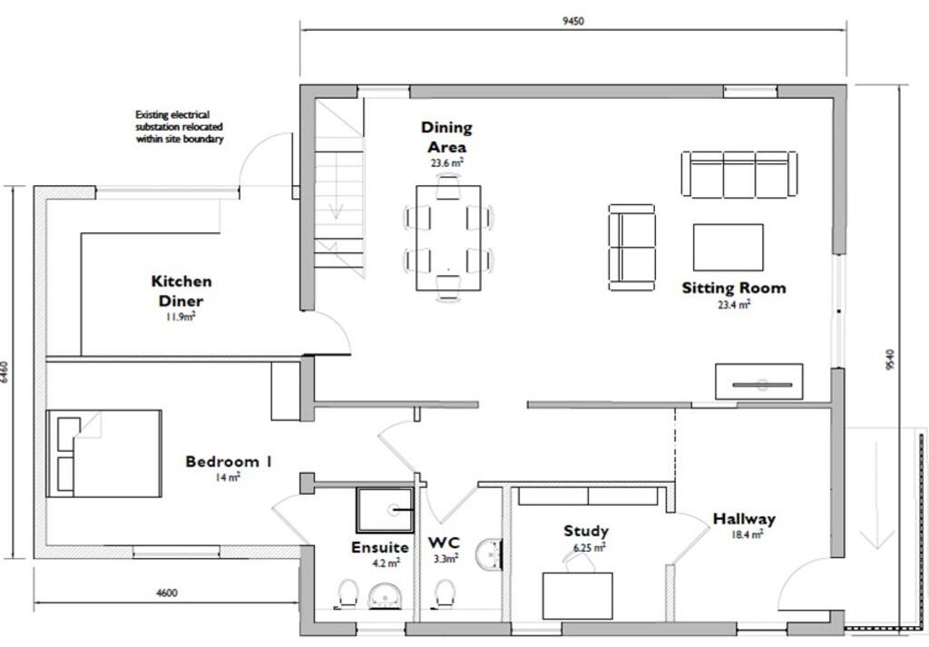
Plot for sale in Finkle Green Birdbrook, Halstead, CO9 — £400,000 • 1 bed • 1 bath
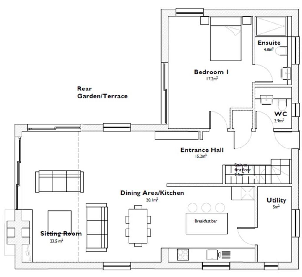
Barn for sale in Great Maplestead, Halstead, Essex, CO9 — £450,000 • 1 bed • 1 bath


































































































































