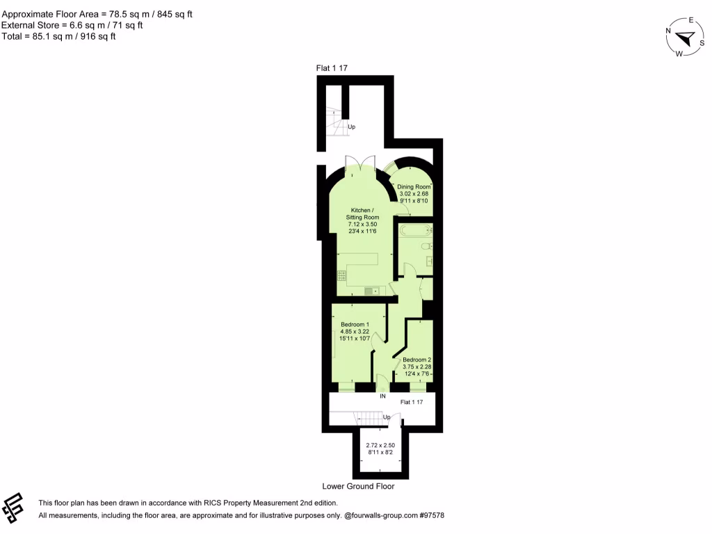
Spacious period two-bed with private terrace and contemporary fittings.
Central Cheltenham location — under 150 metres to the High Street
Set in the heart of Cheltenham, this two-bedroom apartment sits within an elegant Grade II listed Regency building just moments from the High Street. The conversion retains original Georgian character — high ceilings, sash windows and period cornicing — while offering contemporary comforts such as Quartz worktops, integrated Bosch and CDA appliances, and luxury timber-effect flooring.
The apartment extends to about 845 sq ft and includes a private patio terrace and a flexible dining room or study, useful for home-working. Practical points: the long lease (circa 999 years) and a share of freehold provide ownership stability, and residents can apply for on-street parking permits. Broadband and mobile signal are excellent, supporting modern living and remote work.
Be aware this is a listed building, which can constrain alterations and increase repair costs. The stone walls are likely uninsulated, so further thermal improvements will be limited by the listing and may affect energy performance; the current EPC is C. The property is leasehold, local crime levels are reported as very high, and some apartments in the block may differ from the photos provided.
For buyers seeking a stylish central base with period charm and contemporary finishes, this apartment offers a rare combination of space and town-centre convenience. Those wanting significant structural changes or full modernisation should factor in listed-building permissions and potential costs.
2 bedroom apartment for sale in 2, 17 Berkeley Place, Cheltenham, Gloucestershire, GL52 — £295,000 • 2 bed • 1 bath • 761 ft²
1 bedroom apartment for sale in Flat 8, 19 Berkeley Place, Cheltenham, Gloucestershire, GL52 — £175,000 • 1 bed • 1 bath • 388 ft²
1 bedroom apartment for sale in Flat 2, 21 Berkeley Place, Cheltenham, Gloucestershire, GL52 — £250,000 • 1 bed • 1 bath • 673 ft²
1 bedroom apartment for sale in 4, 21 Berkeley Place, Cheltenham, Gloucestershire, GL52 — £255,000 • 1 bed • 1 bath • 574 ft²
1 bedroom apartment for sale in Flat 6, 19 Berkeley Place, Cheltenham, Gloucestershire, GL52 — £225,000 • 1 bed • 1 bath • 479 ft²
1 bedroom flat for sale in Cheltenham, Gloucestershire, GL52 — £225,000 • 1 bed • 1 bath • 489 ft²






































