SO53 4BY - 1 bed large industrial unit in School Close, SO53 4BY

View on Property Piper

Light industrial facility for sale in School Close, Chandler's Ford, Eastleigh, Hampshire, SO53

Summary - UNIT 2, SCHOOL CLOSE SO53 4BY

1 bed 1 bath Light Industrial

Spacious warehouse with quality offices and solar savings, close to M3.
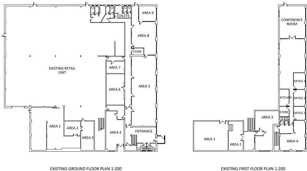
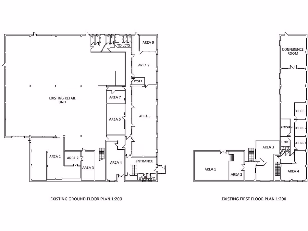
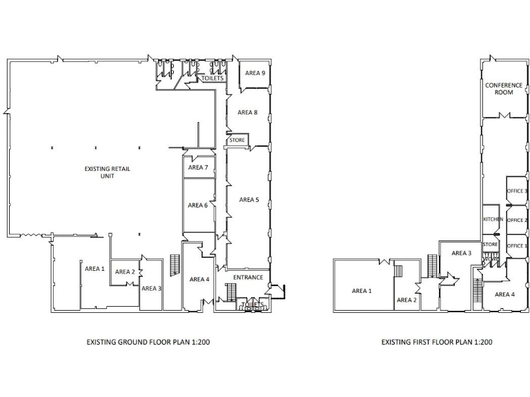
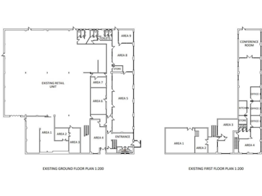
- Large combined GIA 16,698 sq ft (warehouse 10,818 sq ft; offices 5,880 sq ft)
- Freehold guide price £1,800,000; or quoting rent £135,000 pax
- Well-fitted two-storey offices with air conditioning and reception
- 30 kW Solar PV producing up to 30,000 kWh (approx. £9k annual saving)
- Two loading doors, three-phase power and secure gated yard
- Rateable value £127,000 (rates payable ~£70,000 pa)
- EPC D (86); VAT will be applicable to sale/letting
- External appearance plain corrugated cladding; some refurbishment possible
A substantial detached light-industrial unit on the well-established Chandlers Ford Industrial Estate, offered for sale freehold at a guide price of £1,800,000 or to let at a quoting rent of £135,000 pax (six-month rent-free concession may be available). The property combines 10,818 sq ft of workshop/warehouse with 5,880 sq ft of well-fitted two-storey offices, three-phase power, two loading doors and secure gated yard access — practical for continuing trade, distribution or an owner-occupier operation.

The office accommodation is in good order with air conditioning, carpeting, blinds and suspended ceilings; the industrial area provides open-plan workspace, low-level lighting, gas blowers and downdraft fans. A 30 kW solar PV installation typically generates up to 30,000 kWh annually, materially reducing electricity spend (estimated savings circa £9,000 pa). Externally there is gated yard access adjacent to loading doors and on-site parking to the front.

Key occupational costs and constraints are clear: a current rateable value of £127,000 (rates payable circa £70,000) and an EPC rating of D (86). The quoted prices are subject to VAT. The property is well placed for road and rail links — under 2 miles from M3 junctions and close to the local train station and Southampton — making it attractive for businesses needing regional distribution or a secure operational base.

Suitable for investors seeking a sizable industrial asset or companies wanting substantial warehouse and office floor area, the building presents immediate operational capability with scope for further value enhancement through external refurbishment or estate reconfiguration. Buyers should allow for ongoing estate-style maintenance and consider business rates and VAT in their cashflow modelling.

Property Details

Brochure Descriptions

Image Descriptions

Floorplan Description

Rooms

Textual Property Features

Target Audience

AI Tags

Detected Visual Features

Nearby Schools

Nearest Bars And Restaurants

,,,,}

Nearest General Shops

,,}

Nearest Grocery shops

,,}

Nearest Supermarkets

,,}

Nearest Religious buildings

,,}

Nearest Medical buildings

,,,}

Nearest Airports

}

Nearest Leisure Facilities

,,,,}

Nearest Tourist attractions

,,}

Nearest Train stations

,,,,}

Nearest Bus stations and stops

,,,,}

Nearest Hotels

,,}

Tags

Local Market Stats

Similar Properties

Meta

High Res Images

Compatible Images

Low res Images

Thumbnails

Raw Images

High Res Floorplan Images

Compatible Floorplan Images

Low res Floorplan Images

FloorplanImages Thumbnail

Raw Floorplan Images