Share-equity opportunity for first-time buyers offering low-maintenance suburban living and private garden.
Built 2023 — modern specification and finishes
Long lease (990 years) and shared-ownership 40% purchase option
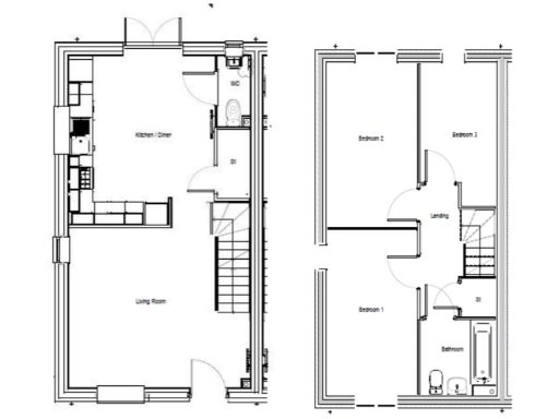
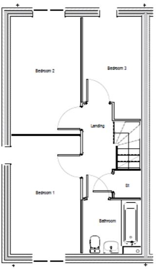
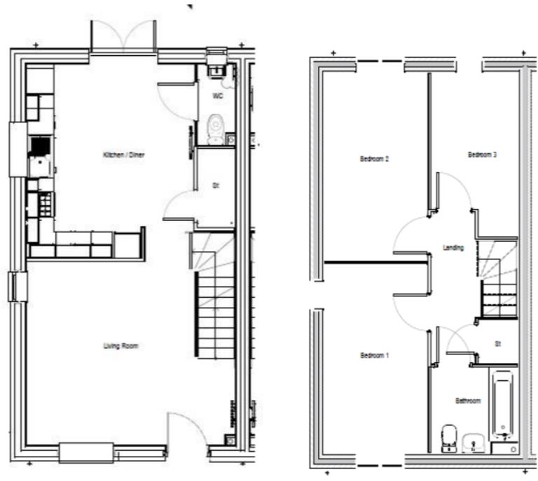
Approx 904 sq ft; compact three-bedroom layout
Small enclosed rear garden — low maintenance but modest size
Allocated off-street parking included
One family bathroom only; no en-suite
Monthly rent (£481.25) plus service charge (£29.82) applies
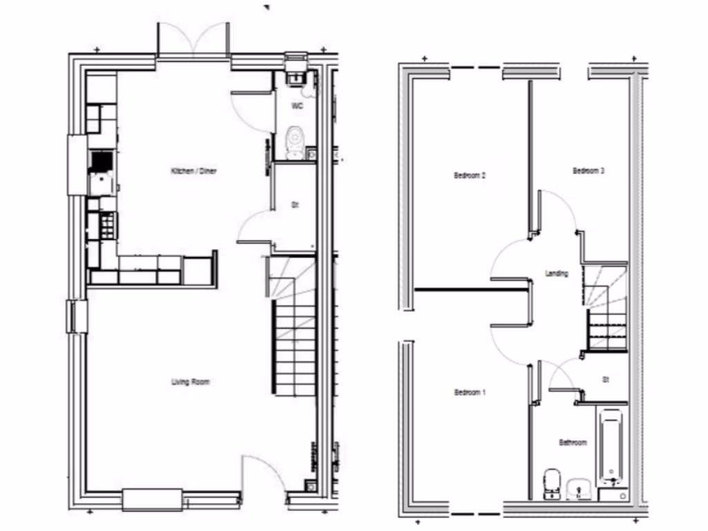
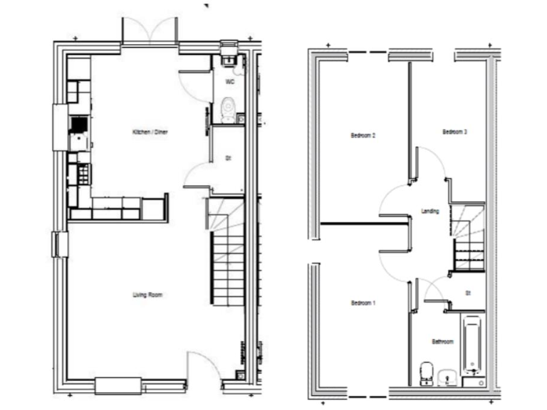
This 2023-built, three-bedroom end-of-terrace offers practical, low-maintenance living on a long lease (990 years).
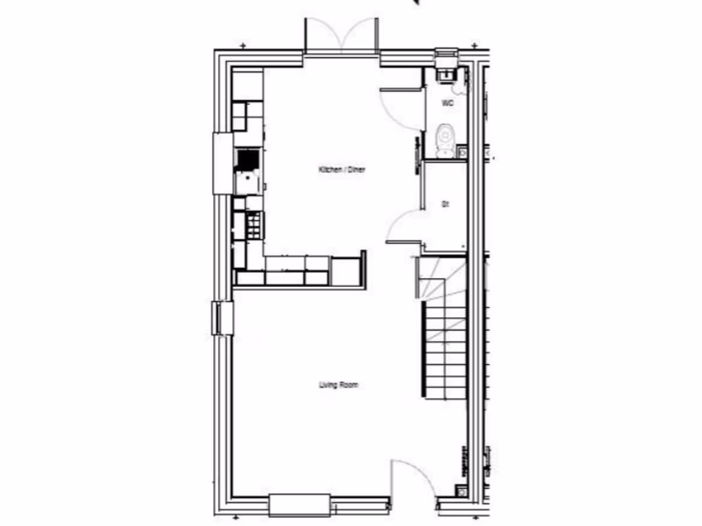
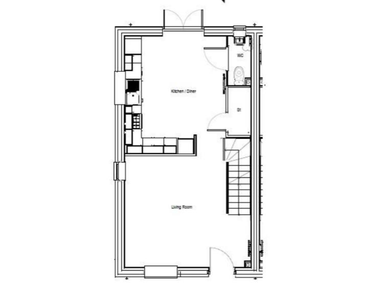
Designed for shared-equity purchasers, the ground floor provides an open-plan kitchen/diner with rear access to a small enclosed garden, separate living room, and a convenient downstairs cloakroom. Upstairs has a principal bedroom, two further bedrooms and a family bathroom — a compact but well-zoned layout suited to first-time buyers or buy-to-let investors.
Practical running costs are competitive: mains gas boiler and radiators, fast broadband, and an affordable council tax band C. Service charge and rent apply under the shared-ownership arrangement (monthly rent and service charge noted), so buyers should budget for ongoing payments in addition to mortgage costs.
Notable limitations are the modest internal footprint (approximately 904 sq ft) and small rear garden, and only one bathroom for three bedrooms. The property is leasehold and sold as a 40% share (£140,000) with a monthly rent; suitability depends on shared-ownership eligibility and long-term plans. Overall, this is a modern, low-upkeep home close to Chippenham amenities and good commuter links, offering an accessible route onto the property ladder.
3 bedroom house for sale in Foundry Lane, Chippenham, Wiltshire, SN15 — £86,250 • 3 bed • 1 bath • 641 ft²
2 bedroom apartment for sale in Gainey Gardens, Chippenham, Wiltshire, SN15 — £100,000 • 2 bed • 1 bath • 626 ft²
2 bedroom flat for sale in Foundry Lane, Chippenham, Wiltshire, SN15 — £57,500 • 2 bed • 1 bath • 530 ft²
2 bedroom house for sale in Foundry Lane, Chippenham, Wiltshire, SN15 — £71,250 • 2 bed • 1 bath • 614 ft²
2 bedroom ground floor flat for sale in Foundry Lane, Chippenham, SN15 — £115,000 • 2 bed • 2 bath • 654 ft²
1 bedroom flat for sale in Foundry Lane, Chippenham, Wiltshire, SN15 — £46,250 • 1 bed • 1 bath • 440 ft²










































































