Low‑deposit starter home a short walk from Chippenham station and local amenities.
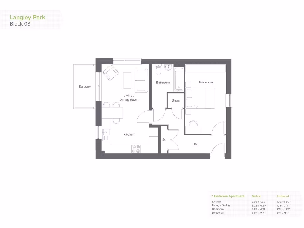
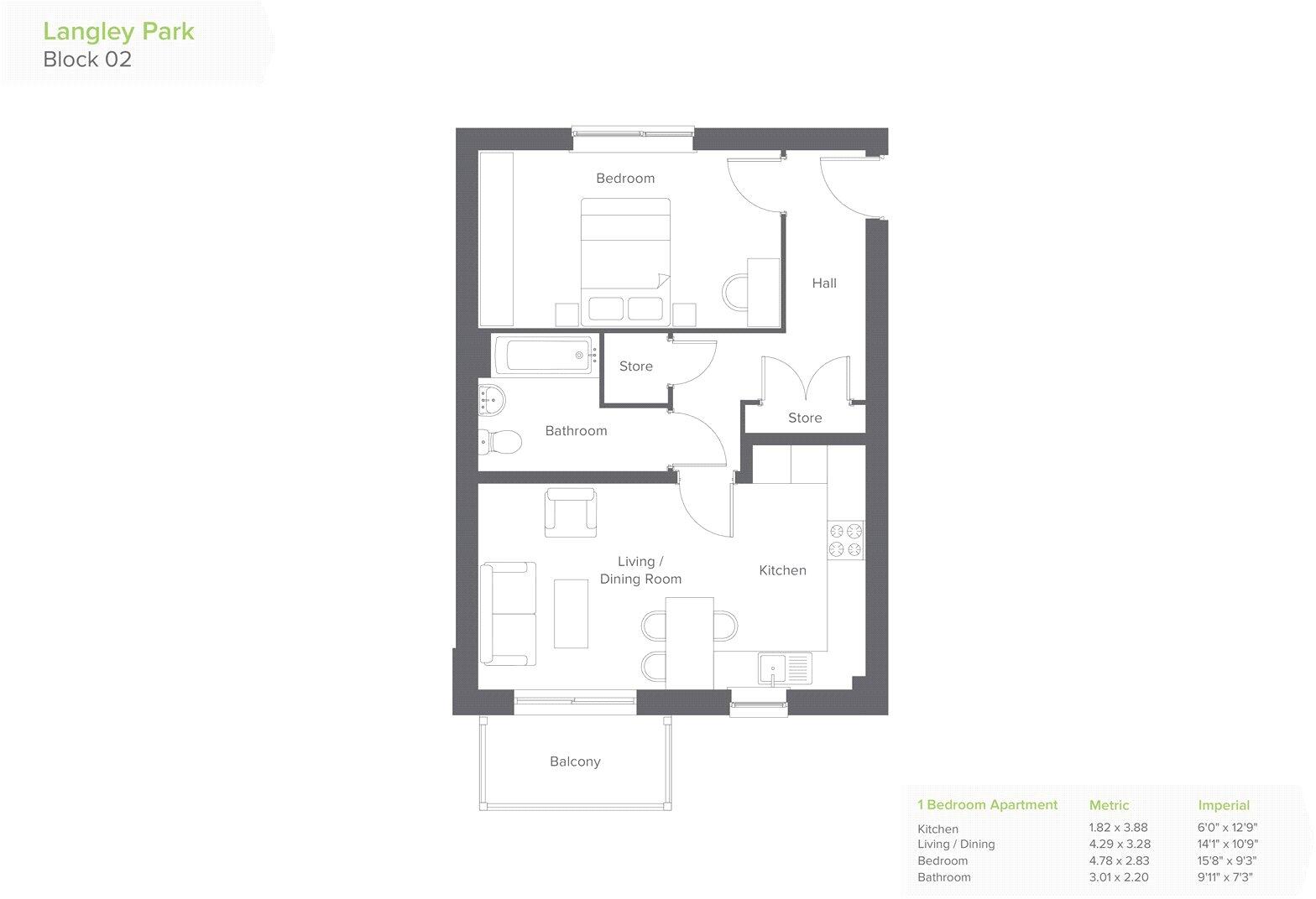
- One-bedroom new-build flat, circa 440 sq ft
- Shared ownership example: 25% share price £46,250
- Rent on unowned share approx £317.97 pcm
- Allocated off-street parking included
- Balcony and open-plan kitchen/living space
- Very slow local broadband speeds
- Estate charge and conveyancing fees likely; TBC
- Excellent mobile signal; no flood risk
This one-bedroom new-build shared ownership flat offers a compact, energy-efficient home in central Chippenham. At about 440 sq ft it includes an open-plan living/kitchen, balcony, allocated off-street parking and contemporary finishes suited to first-time buyers or downsizers seeking low upfront cost. A 25% share example price is £46,250 (full value £185,000). The unowned share would currently attract an estimated rent of £317.97 pcm; an estate charge is TBC.
The location is a strong practical selling point: roughly a three-minute walk to Chippenham station with direct services to Bath Spa (15 minutes) and Bristol Temple Meads (30 minutes). Good local schools and nearby parks give the area everyday convenience and outdoor space. Broadband performance is reported as very slow; mobile signal is excellent.
Buyers should note this is a shared ownership purchase with additional legal and leasehold-related costs likely. Total living area is modest and the flat suits single occupants or couples rather than those needing larger room sizes. The development is modern and low-risk for flooding, but potential purchasers should confirm exact service charges, parking terms, and staircasing conditions before committing.
1 bedroom flat for sale in Foundry Lane, Chippenham, Wiltshire, SN15 — £92,500 • 1 bed • 1 bath • 448 ft²
2 bedroom flat for sale in Foundry Lane, Chippenham, Wiltshire, SN15 — £115,000 • 2 bed • 1 bath • 500 ft²
2 bedroom flat for sale in Langley Park, Chippenham, Wiltshire, SN15 — £57,500 • 2 bed • 1 bath • 530 ft²
3 bedroom house for sale in Langley Park, Chippenham, Wiltshire, SN15 — £86,250 • 3 bed • 1 bath • 641 ft²
2 bedroom house for sale in Foundry Lane, Chippenham, Wiltshire, SN15 — £71,250 • 2 bed • 1 bath • 614 ft²
3 bedroom house for sale in Foundry Lane, Chippenham, Wiltshire, SN15 — £172,500 • 3 bed • 1 bath • 641 ft²






















