Town-centre conversion site with submitted plans and vacant possession.
Georgian double-fronted facade with period character potential
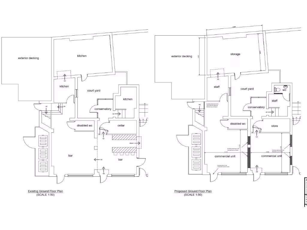
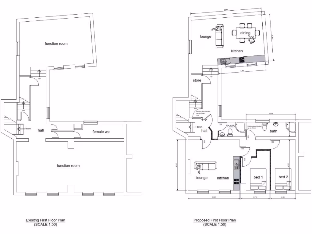
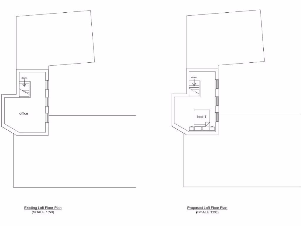
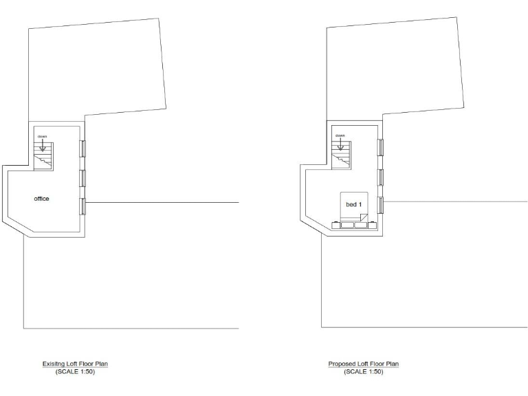
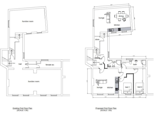
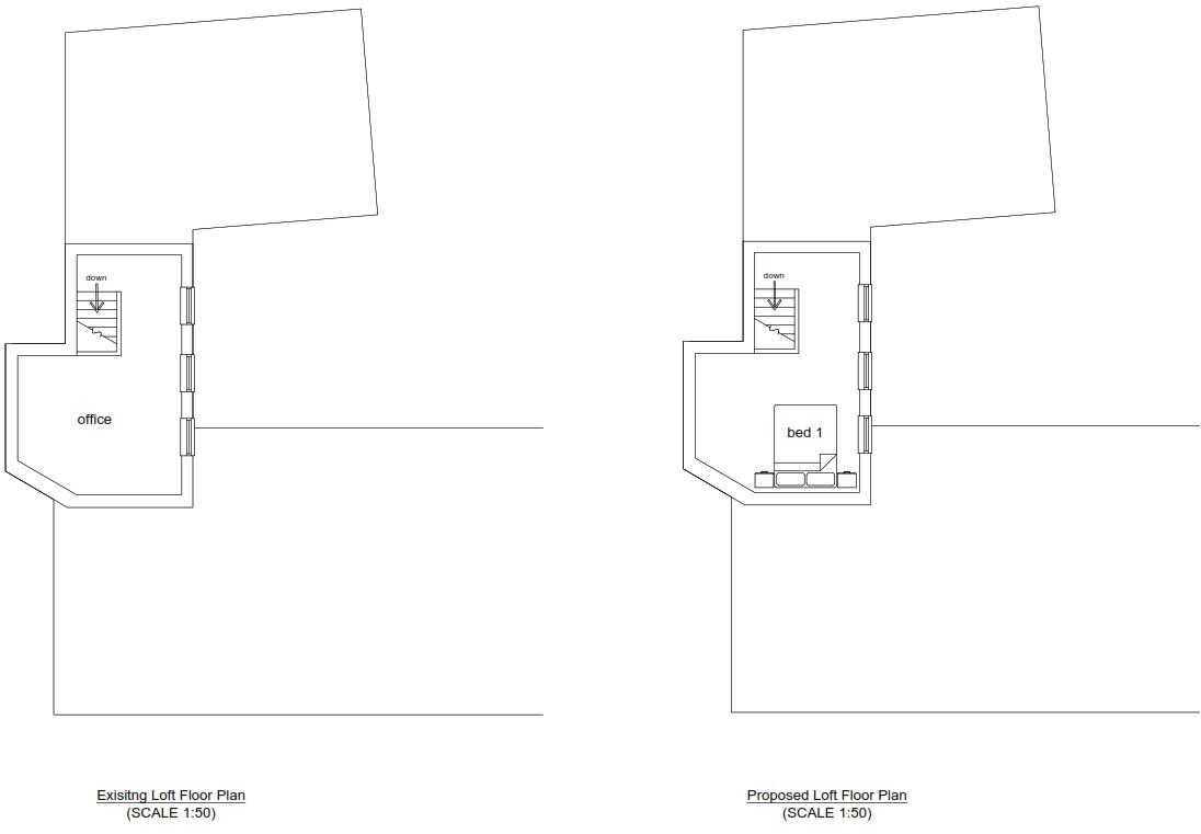
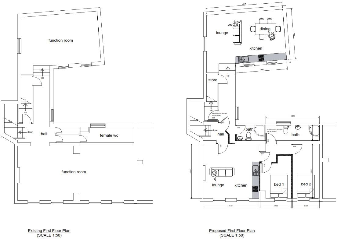
A substantial two-storey Georgian-fronted commercial building on Millgate with scope for conversion into mixed-use units. The seller has submitted plans to create two ground-floor retail/commercial units and two flats above (one 1-bed, one 2-bed), offering clear redevelopment potential in a town-centre position close to The Grand Arcade.
The property is vacant and has multiple access points — two front entrances, a side entrance and rear access — plus an attached two-storey barn to the rear. The interior shows industrial/late-20th-century fittings and dated finishes; the building will require modernization and fit-out to realise the proposed scheme.
Important considerations: the site sits within a conservation area (not listed), plans have been submitted but not confirmed, and the sale will proceed by online auction with immediate deposit and purchaser fees. The lot attracts an administration fee (2.5% inc. VAT, minimum £2,500) and other disbursements listed in the legal pack. Buyers must comply with anti-money-laundering ID and funding checks.
For an investor or developer comfortable with auction purchase procedures, this block offers location-led upside from conversion to mixed-use units, proximity to recent town-centre regeneration projects, fast broadband and excellent mobile signal. For owner-occupiers or first-time buyers, modest plot size, the conservation-area controls and required refurbishment are material factors to consider.
High street retail property for sale in 25, 79 & 29 Library Street, Wigan, Greater Manchester WN1 1NN, WN1 — £195,000 • 1 bed • 1 bath • 790 ft²
Leisure facility for sale in 13-15 Millgate , Wigan, WN1 — £300,000 • 1 bed • 1 bath • 2358 ft²
Commercial property for sale in Market Place, Wigan, WN1 — £126,000 • 1 bed • 1 bath • 2123 ft²
Commercial property for sale in 12 Wallgate, Wigan, WN1 — £300,000 • 1 bed • 1 bath • 1223 ft²
Commercial property for sale in Westfield Street, St. Helens, WA10 — £195,000 • 1 bed • 1 bath • 1185 ft²
Leisure facility for sale in 35-45 King Street, Wigan, Greater Manchester, WN1 — £400,000 • 1 bed • 1 bath • 22927 ft²














































