Rare Grade II landmark with mixed-use income and vacant upper floors for conversion.
- Grade II listed Victorian corner building with strong period character
- Freehold; prominent junction position in Wigan town centre
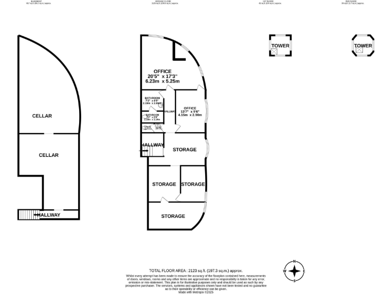
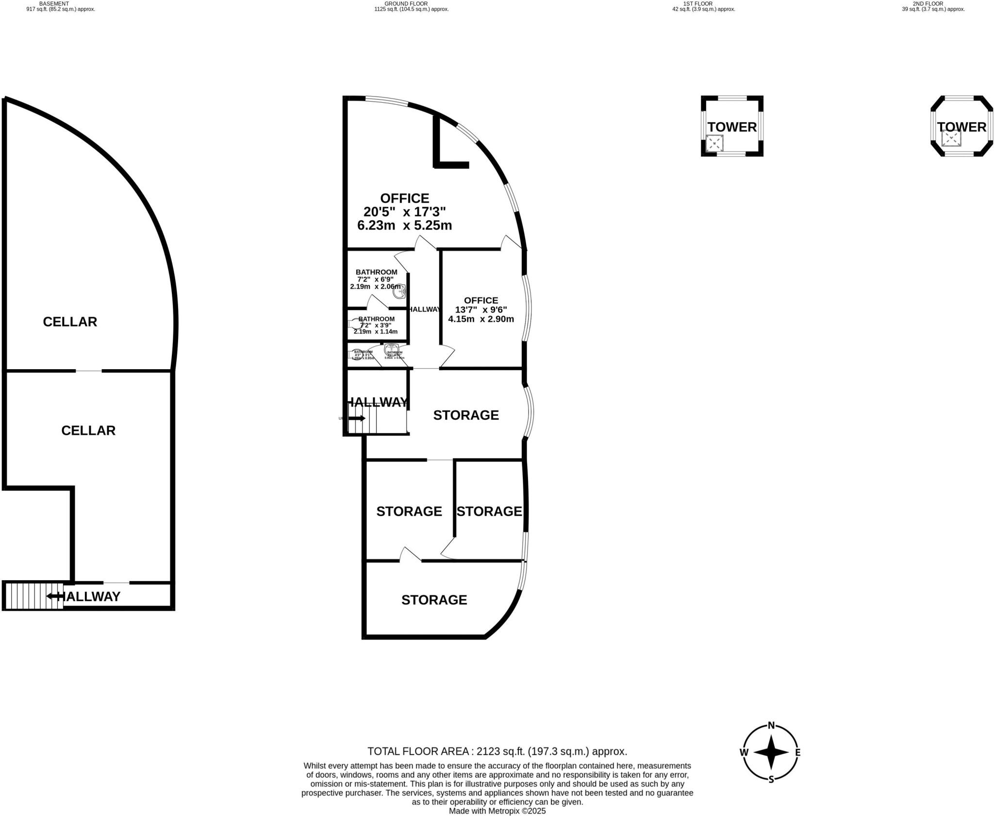
- Total size c.2,123 sq ft across four floors, approx 15 rooms
- Ground and 1st floor sold on 999-year lease at peppercorn rent
- 3rd floor and basement vacant — scope for conversion or income
- Listed status restricts works; Listed Building Consent likely required
- Located near major stations and major £135m Wigan Galleries redevelopment
- Area very deprived; impacts retail demand but offers value-add potential
A prominent Grade II listed corner building occupying a central position in Wigan town centre, this substantial mixed-use property offers immediate presence and long-term upside. The ground and first floors are let on a 999-year lease at a peppercorn rent, while the third floor and basement are vacant and ready for redevelopment or reconfiguration. High ceilings, a striking domed turret and period brickwork give the building strong character and visual appeal.
This is an investor-focused opportunity: excellent footfall location close to both Wigan Wallgate and Wigan North Western stations, Mesnes Park and the planned Wigan Galleries redevelopment. The vacant upper floor and large basement provide scope for serviced offices, additional retail, leisure uses or residential conversion, subject to planning consent. Fast broadband and excellent mobile signal support modern commercial uses.
Buyers should note the property’s listed status will require Listed Building Consent for many alterations and could restrict change of use or external works. The ground/first-floor long lease at a peppercorn rent means immediate rental income from that part is effectively minimal. The local area shows high deprivation which can affect retail demand but also creates redevelopment and value-add potential for the right investor.
Overall this is a rare central freehold with tangible reuse potential and strong civic presence. It will suit a buyer prepared to manage a listed asset and navigate planning constraints to unlock rental growth or alternative uses.
Commercial property for sale in 12 Wallgate, Wigan, WN1 — £300,000 • 1 bed • 1 bath • 1223 ft²
Commercial property for sale in 12 Wallgate, Wigan, Greater Manchester WN1 1JE, WN1 — £240,000 • 1 bed • 1 bath
Commercial property for sale in Library Street, Wigan, Lancashire, WN1 — £250,000 • 1 bed • 1 bath • 2541 ft²
High street retail property for sale in 25, 79 & 29 Library Street, Wigan, Greater Manchester WN1 1NN, WN1 — £195,000 • 1 bed • 1 bath • 790 ft²
Leisure facility for sale in 13-15 Millgate , Wigan, WN1 — £300,000 • 1 bed • 1 bath • 2358 ft²
Commercial property for sale in 13-15 Millgate, Wigan, Greater Manchester WN1 1YB, WN1 — £220,000 • 1 bed • 1 bath






























































































