Self-build or convert in a well-connected Gedling location with early concept plans.
Freehold corner plot with two-storey brick outbuilding and attached garage
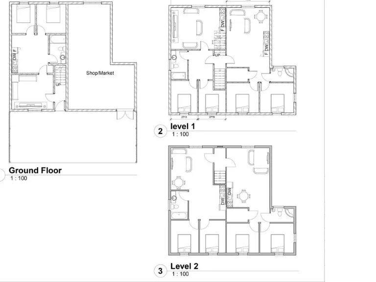
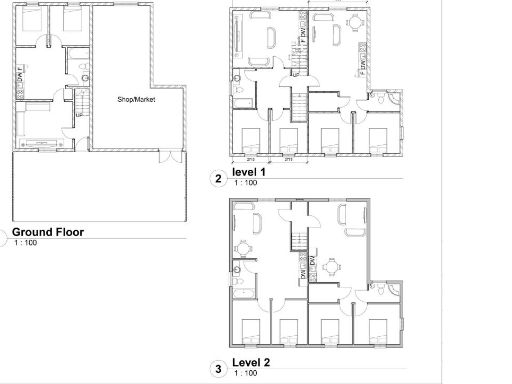
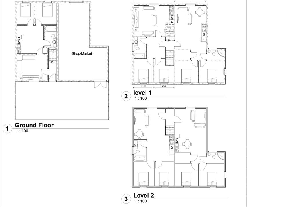
This rare corner plot in Gedling comes with a substantial two-storey brick outbuilding and attached garage, offering clear potential for residential redevelopment subject to planning. The building’s traditional brick construction and full-height ceilings give flexible internal space suited to conversion into multiple units or a bespoke self-build home. Early concept plans are available to illustrate possible layouts for homes or flats, helpful for initial feasibility work.
Important practical points: no formal planning has been submitted or approved, so any scheme will require consultation with the local authority and your own surveys. The site has a dropped kerb and off-street parking to the front, and is offered freehold and chain free, which simplifies purchase timing. The plot is in a well-connected part of Gedling with strong local amenities, frequent transport links and generally low crime.
For developers or self-builders the plot is a straightforward, brownfield-style opportunity in a comfortable, affluent neighbourhood. Early-stage concepts show multi-dwelling potential and the generous internal volumes could reduce structural rebuild costs. However, interested parties should factor in planning risk, conversion costs and any repair work to the existing roof and structure revealed on inspection.
This listing suits an experienced buyer seeking a short-walk location to schools and shops, and who is prepared to progress planning, surveys and conversions themselves. It is not sold with permissions in place, so it will appeal most to buyers who can manage a development process and accept the associated time and cost commitments.
Land for sale in Shelford Road, Gedling, Nottinghamshire, NG4 4JJ, NG4 — £90,000 • 1 bed • 1 bath
Land for sale in Marshall Street, Sherwood, Nottingham, NG5 — £300,000 • 1 bed • 1 bath • 9203 ft²
Land for sale in Clumber Avenue, Mapperley, Nottingham, NG3 — £275,000 • 1 bed • 1 bath • 6232 ft²
Land for sale in 128 Church Street, Eastwood, Nottingham, NG16 — £100,000 • 1 bed • 1 bath • 2585 ft²
Land for sale in 235a Radford Road, Nottingham, Nottinghamshire, NG7 5GU, NG7 — £160,000 • 1 bed • 1 bath • 6534 ft²
Land for sale in Annesley Road, Hucknall, NG15 — £200,000 • 1 bed • 1 bath














































































