Stylish family living near parks, culture and quick transport links.
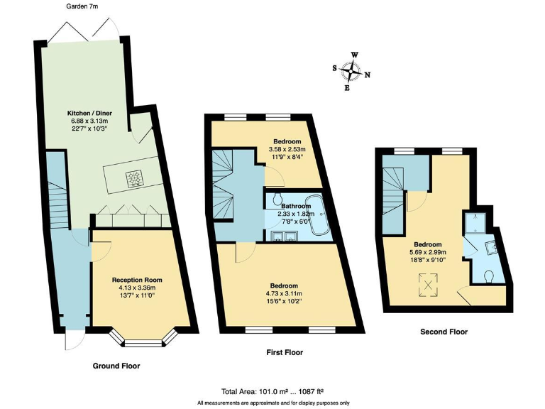
Victorian mid-terrace arranged over three floors and a loft conversion
Extended open-plan kitchen/diner with high ceilings and patio doors
Three bedrooms, including loft master with en-suite and storage
West-facing rear garden, small to average size (low-maintenance)
Presented in good decorative order; contemporary fittings throughout
Solid brick walls assumed without insulation — potential upgrade costs
Freehold, mains gas boiler and radiators, double glazing post-2002
Lively local area, strong transport links; area classed as deprived
Tucked between Lloyd Park and Blackhorse Road, this Victorian mid-terrace blends original detail with a contemporary extended kitchen/diner and a converted loft bedroom. The house is presented in good decorative order across three floors and makes efficient use of 1,087 sq ft for family living.
The ground-floor extension creates a bright open-plan kitchen/living area with high ceilings and patio doors to a west-facing garden. Two well-proportioned bedrooms sit on the first floor alongside a family bathroom; the converted loft provides a master bedroom with an en-suite and bespoke storage.
Practical points are straightforward: the property is freehold with mains gas central heating, double glazing installed since 2002, and fast broadband/mobile signal. The plot is modest and the terrace sits on an on-street residential road in a lively, multicultural part of Walthamstow with excellent local amenities and transport links.
Important considerations: the house sits on solid brick walls (original build) and is assumed to have no cavity insulation; further thermal improvements may be possible but could require investment. The local area is classified as deprived with average crime levels — buyers should weigh location benefits against these local social indicators.
3 bedroom terraced house for sale in Luton Road, Walthamstow, London, E17 — £775,000 • 3 bed • 2 bath • 1111 ft²
3 bedroom house for sale in Pasquier Road, Walthamstow, E17 — £800,000 • 3 bed • 1 bath • 1120 ft²
4 bedroom terraced house for sale in Ruby Road, Walthamstow, London, E17 — £995,000 • 4 bed • 2 bath • 1201 ft²
4 bedroom terraced house for sale in Borwick Avenue, Walthamstow, E17 — £925,000 • 4 bed • 2 bath • 1360 ft²
3 bedroom end of terrace house for sale in Borwick Avenue, Walthamstow, London, E17 — £725,000 • 3 bed • 1 bath • 904 ft²
3 bedroom terraced house for sale in Chingford Road, Walthamstow, London, E17 — £600,000 • 3 bed • 2 bath • 976 ft²






























































































